Chancellors says ..
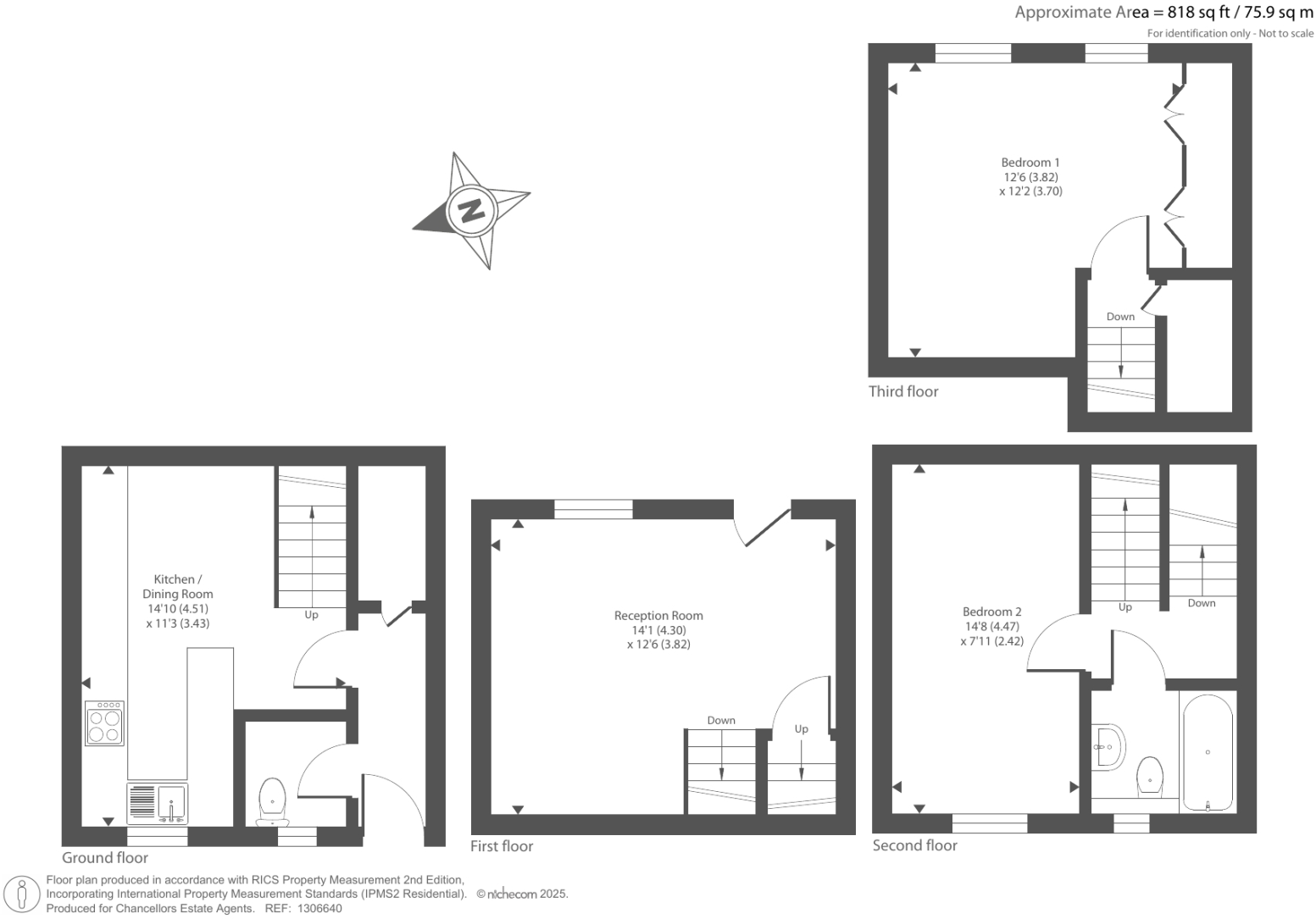
A well presented two bedroom home, off set of the road offering ample driveway parking and private rear garden. The accommodation is split leveled and comprises fitted kitchen, reception room, two well proportioned bedrooms and family bathroom. Offered to market with no onward chain.
Property Oracle says ..
Therefore, we give this property 7 / 10. *Disclaimer: This is our option and does constitute a recommendation or financial advice. Do your own research. *
- Price
- 8
- Condition
- 6
- Location
- 7
- Land
- 7
- Bedrooms
- 2
- Bathrooms
- 1
- Sqft (est)
- 818.00
The heatmap indicates the level of crime in the area. The color of the heatmap indicates the crime severity and recency.
Metrics Year-on-Year
- Average area value
- 359,000.00 £Decreased by 8.94 %
- Est sale value
- 302,660.00 £Decreased by 10.84 %
- Average area rental value
- 1,456.00 £/moDecreased by 14.05 %
- Est letting value
- 818.00 £/moUnchanged by 0.00 %
- Est rental Yield
- 4.87 %Decreased by 5.62 %
- Crime Rate
- 15.00 %Unchanged by 0.00 %
from 394,250.00 £
from 339,470.00 £
from 1,694.00 £/mo
from 818.00 £/mo
from 5.16 %
from 15.00 %
Agent Activity
Chancellors created the listing.
Nearby Schools
| Name | Type | Ofsted | Distance |
|---|---|---|---|
| Barton Park Primary School | Free Schools | 0.57 KM | |
| St Andrew'S Church Of England Primary School | Voluntary Controlled School | Good | 0.93 KM |
| Headington Quarry Foundation Stage School | Local Authority Nursery School | Outstanding | 1.04 KM |
| Bayards Hill School | Academy Sponsor Led | Requires improvement | 1.05 KM |
| Windmill Primary School | Community School | Outstanding | 1.16 KM |
Images
Nearby Streets
| Name | Average Price | Average Sqft | Distance |
|---|---|---|---|
| Wick Close | £ 0 | 0 | 0.00 KM |
| Overdale Close | £ 0 | 0 | 0.00 KM |
| The Willows | £ 0 | 0 | 0.00 KM |
| Blackthorn Close | £ 0 | 0 | 0.00 KM |
| Hounsfield Crescent | £ 0 | 0 | 0.00 KM |
Nearby Transport
| Name | NLC | TLC | Distance |
|---|---|---|---|
| Oxford | 3115 | OXF | 7.55 KM |
| Islip | 3110 | ISP | 7.71 KM |
| Oxford Parkway | 3121 | OXP | 8.97 KM |
| Radley | 3118 | RAD | 9.80 KM |
Nearby Listings
| Address | Price | Type | Score | Distance |
|---|---|---|---|---|
| Barton, Oxford, OX3 | £ 350,000 | BUY | 7 / 10 | 0.00 KM |
| Barton Village Road, Headington | £ 475,000 | BUY | Unknown | 0.11 KM |
| The Steeples, Headington, OX3 | £ 580,000 | BUY | 6 / 10 | 0.12 KM |
| The Steeples, Headington, OX3 | £ 650,000 | BUY | Unknown | 0.12 KM |
| The Steeples, Headington, OX3 | £ 600,000 | BUY | Unknown | 0.12 KM |
Nearby Properties
| Address | Price | Distance |
|---|---|---|
| 36 Barton Village Road | £ 289,000 | 0.11 KM |
| 73 Barton Road | £ 426,875 | 0.12 KM |
| 122 Barton Road | £ 188,000 | 0.12 KM |
| 50 Barton Road | £ 190,000 | 0.12 KM |
| 80 Barton Road | £ 257,500 | 0.12 KM |