Singleton Drive, Bingham
By HAMMOND Property Services
£ 199,995
Reviews
4 out of 5 stars
HAMMOND Property Services says ..
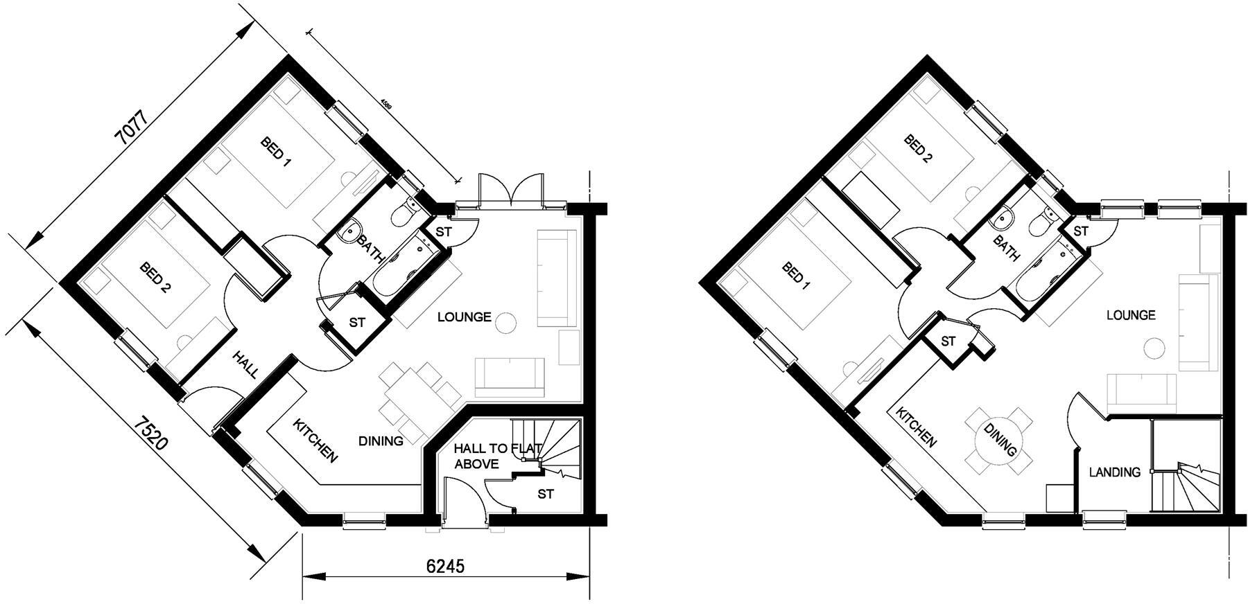
This immaculately presented two bedroom ground floor apartment (59 sq.m. / 6350 sq.ft) created by David Wilson Homes, and known as The Belstead, is located a short walk from Bingham's Market Square and offers both a garden and two parking spaces.. The accommodation is based around the en...
Property Oracle says ..
Therefore, we give this property 8 / 10. *Disclaimer: This is our option and does constitute a recommendation or financial advice. Do your own research. *
- Price
- 9
- Condition
- 9
- Location
- 8
- Land
- 6
- Bedrooms
- 2
- Bathrooms
- 1
- Sqft (est)
- 1,221.49
The heatmap indicates the level of crime in the area. The color of the heatmap indicates the crime severity and recency.
Metrics Year-on-Year
- Average area value
- 320,000.00 £Decreased by 18.40 %
- Est sale value
- 472,716.63 £Increased by 41.24 %
- Average area rental value
- 1,400.00 £/moIncreased by 55.56 %
- Est letting value
- 1,221.49 £/mo
- Est rental Yield
- 5.25 %Increased by 90.91 %
- Crime Rate
- 58.00 %Unchanged by 0.00 %
from 392,175.00 £
from 334,688.26 £
from 900.00 £/mo
from 0.00 £/mo
from 2.75 %
from 58.00 %
Agent Activity
HAMMOND Property Services created the listing.
Nearby Schools
| Name | Type | Ofsted | Distance |
|---|---|---|---|
| Bingham Children'S Centre | Children's Centre | 0.12 KM | |
| Cotgrave Children'S Centre | Children's Centre | 0.17 KM | |
| Robert Miles Junior School | Academy Converter | Good | 0.17 KM |
| Toot Hill School | Academy Converter | Outstanding | 0.38 KM |
| Robert Miles Infant School | Academy Converter | 0.49 KM |
Images
Nearby Streets
| Name | Average Price | Average Sqft | Distance |
|---|---|---|---|
| Eaton Place | £ 600,000 | 0 | 0.00 KM |
| Moorbridge Road East | £ 0 | 0 | 0.00 KM |
| Church Close | £ 0 | 0 | 0.00 KM |
| Pinfold | £ 0 | 0 | 0.00 KM |
| East Grove | £ 0 | 0 | 0.00 KM |
Nearby Transport
| Name | NLC | TLC | Distance |
|---|---|---|---|
| Bingham | 6235 | BIN | 0.28 KM |
| Aslockton | 6233 | ALK | 6.07 KM |
| Lowdham | 6202 | LOW | 7.85 KM |
| Thurgarton | 6203 | THU | 8.61 KM |
| Radcliffe (Nottinghamshire) | 6242 | RDF | 9.34 KM |
Nearby Listings
| Address | Price | Type | Score | Distance |
|---|---|---|---|---|
| Singleton Drive, Bingham | £ 199,995 | BUY | 8 / 10 | 0.00 KM |
| Newgate Street, Bingham | £ 260,000 | BUY | 6 / 10 | 0.10 KM |
| Moor Lane, Bingham | £ 300,000 | BUY | 7 / 10 | 0.13 KM |
| Green Court, Moor Lane, Bingham | £ 175,000 | BUY | 7 / 10 | 0.15 KM |
| The Paddock, NG13 | £ 275,000 | BUY | Unknown | 0.18 KM |
Nearby Properties
| Address | Price | Distance |
|---|---|---|
| 5 Moor Lane | £ 235,000 | 0.15 KM |
| 3 Moor Lane | £ 197,000 | 0.15 KM |
| 19 The Paddock | £ 130,000 | 0.18 KM |
| 3 The Paddock | £ 140,000 | 0.18 KM |
| 14 The Paddock | £ 256,000 | 0.18 KM |