42 Trondra Place, Glasgow, G34
PA

42 Trondra Place, Glasgow, G34

By Pacitti Jones

£ 219,995

Reviews

3 out of 5 stars

Pacitti Jones says ..

A significantly extended three/four-bedroom semi-detached villa, with ample off-street parking and a southerly-facing rear garden, set within an established location close to excellent amenities and road links. EPC - B

Property Oracle says ..

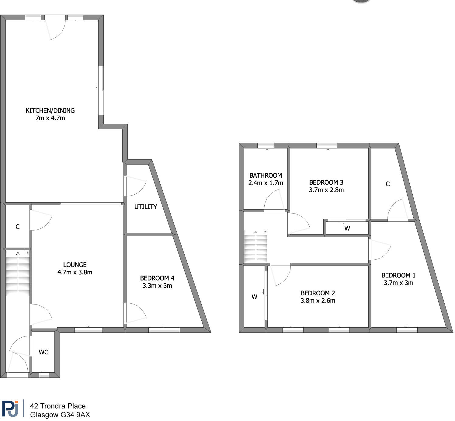
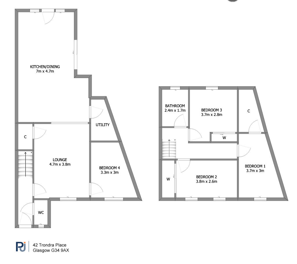
42 Trondra Place is a semi-detached property located in Baillieston, Glasgow. The house offers four bedrooms and two bathrooms, making it suitable for families. The property benefits from its proximity to transportation links, including the Garrowhill train station. The interior is generally well-maintained, with a modern kitchen and bathroom, although some areas could benefit from updating. The property includes front and rear gardens, with a decked area in the rear. The asking price of £219,995 appears reasonable compared to the average property prices in the area, potentially offering good value for money. Overall, this property presents a solid opportunity for prospective buyers seeking a family home in a convenient location.

Therefore, we give this property 6 / 10. *Disclaimer: This is our option and does constitute a recommendation or financial advice. Do your own research. *

Price
7
Condition
7
Location
6
Land
6
Bedrooms
4
Bathrooms
2
Sqft (est)
1,034.20

The heatmap indicates the level of crime in the area. The color of the heatmap indicates the crime severity and recency.

Metrics Year-on-Year

Average area value
231,869.00 £
Increased by 1.11 %
from 229,316.00 £
Est sale value
274,063.00 £
Increased by 4.74 %
from 261,652.60 £
Average area rental value
798.00 £/mo
Increased by 1.53 %
from 786.00 £/mo
Est letting value
0.00 £/mo
from 0.00 £/mo
Est rental Yield
4.13 %
Increased by 0.49 %
from 4.11 %
Crime Rate
0.00 %
from 0.00 %

Agent Activity

  • Pacitti Jones created the listing.

Images

202511031551297.jpg 202511031544068.jpg 202511031544067.jpg 202511031544069.jpg 202511031544066.jpg 202511031544065.jpg 2025110315460713.jpg 202511031551294.jpg 2025110315460714.jpg 202511031551293.jpg 202511031544063.jpg 202511031544064.jpg 2025110315440614.jpg 202511031546073.jpg 202511031551291.jpg 2025110315460715.jpg 202511031551290.jpg 202511031551292.jpg 2025110315440610.jpg 202511031546075.jpg 202511031546074.jpg 202511031546078.jpg 202511031546070.jpg 2025110315440613.jpg 2025110315440615.jpg 202511031546077.jpg 202511031546079.jpg 2025110315460712.jpg 202511031546076.jpg 202511031546071.jpg 202511031546072.jpg 202511031551295.jpg 202511031551296.jpg 202511031544062.jpg 202511031551298.jpg 202511031544060.jpg 2025110315460710.jpg 2025110315460711.jpg 202511031544061.jpg

Nearby Streets

NameAverage PriceAverage SqftDistance
Wardie Place £ 000.00 KM
Stepford Place £ 175,00000.00 KM
West Hallhill Farm Road £ 205,00000.00 KM
Wardie Road £ 000.00 KM
Auchinlea Road £ 000.00 KM

Nearby Transport

NameNLCTLCDistance
Garrowhill9904GAR1.00 KM
Easterhouse9894EST2.51 KM
Mount Vernon9779MTV2.71 KM
Baillieston9763BIO2.80 KM
Stepps9842SPS3.14 KM

Nearby Listings

AddressPriceTypeScoreDistance
42 Trondra Place, Glasgow, G34 £ 219,995BUY6 / 100.00 KM
Plot 1, Land at Stepford Road, Glasgow , G334NH £ 6,000BUYUnknown0.38 KM
Plot 3, Land at Stepford Road, Glasgow, G334NH £ 6,000BUY6 / 100.38 KM
Plot 7, Land at Stepford Road, Glasgow, G334NH £ 6,000BUYUnknown0.38 KM
Plot 2, Land at Stepford Road, Glasgow, G334NH £ 6,000BUY6 / 100.38 KM