Grams Road, Walmer, CT14
By Thomas & Partners
£ 795,000
Reviews
3 out of 5 stars
Thomas & Partners says ..
A classic period, detached home, standing in lovely grounds in the heart of the seaside village of Walmer. Tucked away from passing traffic yet, only a minute away from a parade of busy local shops, including pub, restaurant and bus service. The delightful home benefits from a detached annexe and...
Property Oracle says ..
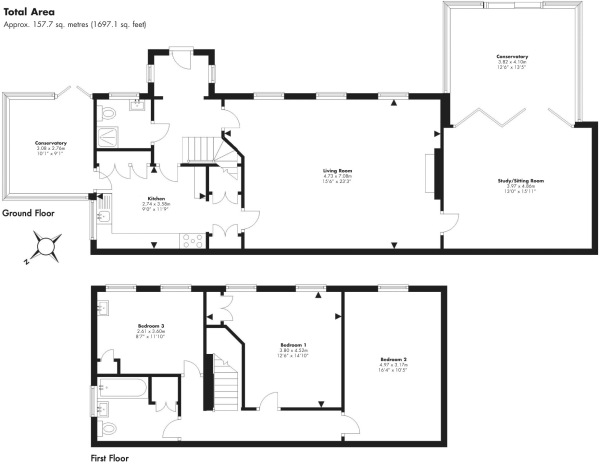
This three-bedroom, two-bathroom detached house in Walmer, Kent, presents a compelling proposition for potential buyers. Situated in the desirable coastal village of Walmer, the property benefits from a convenient location near local shops, restaurants, and a railway station providing links to Deal and beyond. The property itself is a traditional house showcasing brickwork and features a notable conservatory, extending the living space. The extensive garden is a clear asset, offering ample outdoor space, and is partially visible through the provided images. The internal photos present a pleasant atmosphere, though suggest an opportunity for modernisation of certain areas and fittings. The overall impression is that it’s a charming home situated in a desirable location. Further analysis of comparable recently sold properties, as well as a detailed breakdown of square footage for both the house and land, would assist in a more definitive valuation and assessment of the overall list price. The absence of an Ofsted rating for the nearby schools is a notable missing data point, as it would assist in providing a clearer perspective on the family-friendly features of this location.
Therefore, we give this property 6 / 10. *Disclaimer: This is our option and does constitute a recommendation or financial advice. Do your own research. *
- Price
- 7
- Condition
- 6
- Location
- 7
- Land
- 7
- Bedrooms
- 3
- Bathrooms
- 2
- Sqft (est)
- 1,697.10
The heatmap indicates the level of crime in the area. The color of the heatmap indicates the crime severity and recency.
Metrics Year-on-Year
- Average area value
- 438,880.00 £Increased by 10.49 %
- Est sale value
- 761,997.90 £Increased by 19.10 %
- Average area rental value
- 1,343.00 £/moIncreased by 11.73 %
- Est letting value
- 1,697.10 £/moUnchanged by 0.00 %
- Est rental Yield
- 3.67 %Increased by 1.10 %
- Crime Rate
- 7.00 %Unchanged by 0.00 %
Agent Activity
Thomas & Partners marked this listing as sold.
Thomas & Partners created the listing.
Nearby Schools
| Name | Type | Ofsted | Distance |
|---|---|---|---|
| Blossom Children'S Centre | Children's Centre | 0.76 KM | |
| The Downs Church Of England Primary School | Academy Converter | 0.78 KM | |
| Deal Parochial Church Of England Primary School | Academy Converter | 1.51 KM | |
| Goodwin Academy | Academy Sponsor Led | 1.63 KM | |
| Kingsdown And Ringwould Church Of England Primary School | Academy Converter | Outstanding | 1.76 KM |
Images
Nearby Streets
| Name | Average Price | Average Sqft | Distance |
|---|---|---|---|
| St. Mildreds Court | £ 350,000 | 0 | 0.00 KM |
| Sea View Avenue | £ 0 | 0 | 0.00 KM |
| Dorset Gardens | £ 0 | 0 | 0.00 KM |
| Millers Road | £ 450,000 | 0 | 0.00 KM |
| La-Tene | £ 231,500 | 0 | 0.00 KM |
Nearby Transport
| Name | NLC | TLC | Distance |
|---|---|---|---|
| Walmer | 5041 | WAM | 0.91 KM |
| Deal | 5011 | DEA | 2.65 KM |
| Martin Mill | 5040 | MTM | 5.76 KM |
| Sandwich | 5026 | SDW | 9.37 KM |
Nearby Listings
| Address | Price | Type | Score | Distance |
|---|---|---|---|---|
| Grams Road, Walmer, CT14 | £ 795,000 | BUY | 6 / 10 | 0.00 KM |
| Leelands House, Grams Road, Walmer, Kent, CT14 | £ 300,000 | BUY | 7 / 10 | 0.05 KM |
| Grams Road, Walmer, CT14 | £ 300,000 | BUY | 7 / 10 | 0.07 KM |
| Blake Close, Walmer, CT14 | £ 750,000 | BUY | 7 / 10 | 0.10 KM |
| Blake Close, Walmer, Deal, CT14 | £ 800,000 | BUY | 8 / 10 | 0.15 KM |
Nearby Properties
| Address | Price | Distance |
|---|---|---|
| 11 Poets Walk | £ 181,500 | 0.04 KM |
| 15 Poets Walk | £ 148,000 | 0.04 KM |
| 1 Poets Walk | £ 210,000 | 0.04 KM |
| 57 Poets Walk | £ 300,000 | 0.04 KM |
| 31 Poets Walk | £ 127,000 | 0.04 KM |