Lorna Doone House, Lynmouth
By Michael Adey Property
£ 630,000
Reviews
2 out of 5 stars
Michael Adey Property says ..
Well-presented home with income, overlooking the river in Lynmouth, Exmoor's most charming seaside village. The property offers flexible living with eight ensuite bedrooms, car park, south-facing front terrace & a secure rear courtyard with outbuildings. Just a few minutes from the beach
Property Oracle says ..
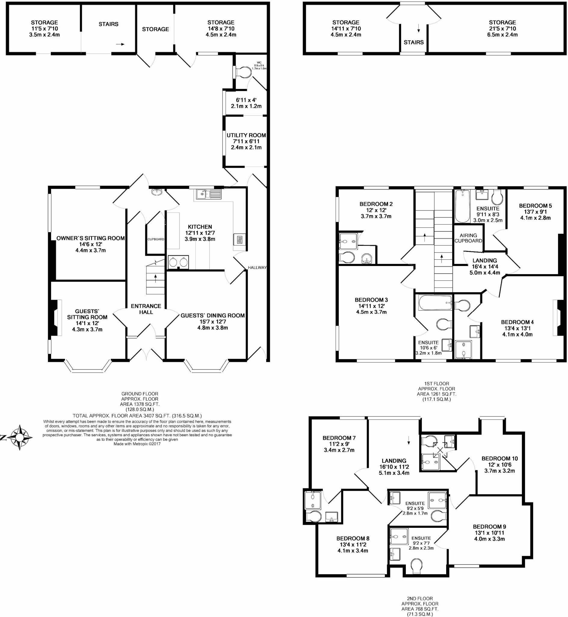
Lorna Doone House is an eight-bedroom, eight-bathroom property located in Lynmouth, North Devon. The property is listed at £630,000 and has 1,776.40 sqft of living space. The average property price in the area is £451,562, with an average size of 1,107 sqft and an average price per sqft of £407. Based on the provided images, the property appears to be in good condition. The interior is well-maintained and presented, suggesting that significant renovations are not immediately necessary. However, a more detailed in-person inspection would be needed to assess the full condition of the property and identify any potential issues not visible in the photos. The property’s location in Lynmouth, a seaside village in Exmoor National Park, is a significant factor. While the immediate plot size is small, the location offers access to scenic coastal views and the amenities of a charming village setting. The proximity to Lynton Church Of England Primary School (0.92 KM) is a positive aspect for families. However, the lack of nearby transportation information provided limits a full assessment of the location’s convenience. Considering the property’s condition, location, and the limited land, the list price of £630,000 appears high compared to the average price per sqft in the area (£407). However, the unique features of the property, such as the number of bedrooms and bathrooms, and its location in a desirable coastal village, could justify a higher price per sqft than the average. A detailed comparison with similar properties in the area, taking into account their size, condition, and features, would be needed to determine a more precise assessment of the property’s value. The lack of plot size information also makes it difficult to fully assess the price.
Therefore, we give this property 5 / 10. *Disclaimer: This is our option and does constitute a recommendation or financial advice. Do your own research. *
- Price
- 6
- Condition
- 8
- Location
- 7
- Land
- 2
- Bedrooms
- 8
- Bathrooms
- 8
- Sqft (est)
- 1,776.40
The heatmap indicates the level of crime in the area. The color of the heatmap indicates the crime severity and recency.
Metrics Year-on-Year
- Average area value
- 661,000.00 £Increased by 29.29 %
- Est sale value
- 962,808.80 £Increased by 47.28 %
- Average area rental value
- 2,410.00 £/moIncreased by 120.90 %
- Est letting value
- 1,776.40 £/mo
- Est rental Yield
- 4.38 %Increased by 71.09 %
- Crime Rate
- 47.00 %Unchanged by 0.00 %
Agent Activity
Michael Adey Property created the listing.
Nearby Schools
| Name | Type | Ofsted | Distance |
|---|---|---|---|
| Lynton Church Of England Primary School | Voluntary Aided School | Good | 0.92 KM |
| Parracombe Church Of England Primary School | Voluntary Controlled School | Good | 9.68 KM |
Images
Nearby Streets
| Name | Average Price | Average Sqft | Distance |
|---|---|---|---|
| Queen Street | £ 0 | 0 | 0.00 KM |
| Cross Street | £ 285,000 | 0 | 0.00 KM |
Nearby Listings
| Address | Price | Type | Score | Distance |
|---|---|---|---|---|
| Lorna Doone House, Lynmouth | £ 630,000 | BUY | 5 / 10 | 0.00 KM |
| Watersmeet Road, Lynmouth | £ 180,000 | BUY | 5 / 10 | 0.05 KM |
| Watersmeet Road, Lynmouth, Devon, EX35 | £ 205,000 | BUY | 5 / 10 | 0.05 KM |
| Watersmeet Road, Lynmouth | £ 180,000 | BUY | 5 / 10 | 0.06 KM |
| 1 Tors Road, Lynmouth, Devon, EX35 | £ 700,000 | BUY | 5 / 10 | 0.07 KM |
Nearby Properties
| Address | Price | Distance |
|---|---|---|
| 15 Tors Road | £ 380,000 | 0.12 KM |
| 10a Tors Road | £ 249,000 | 0.12 KM |
| 7 Tors Road | £ 305,000 | 0.12 KM |
| 22 Tors Road | £ 353,000 | 0.12 KM |
| 23 Watersmeet Road | £ 285,000 | 0.13 KM |