TO
Ipswich, Suffolk
By Town & Village Properties
£ 330,000
Reviews
3 out of 5 stars
Town & Village Properties says ..
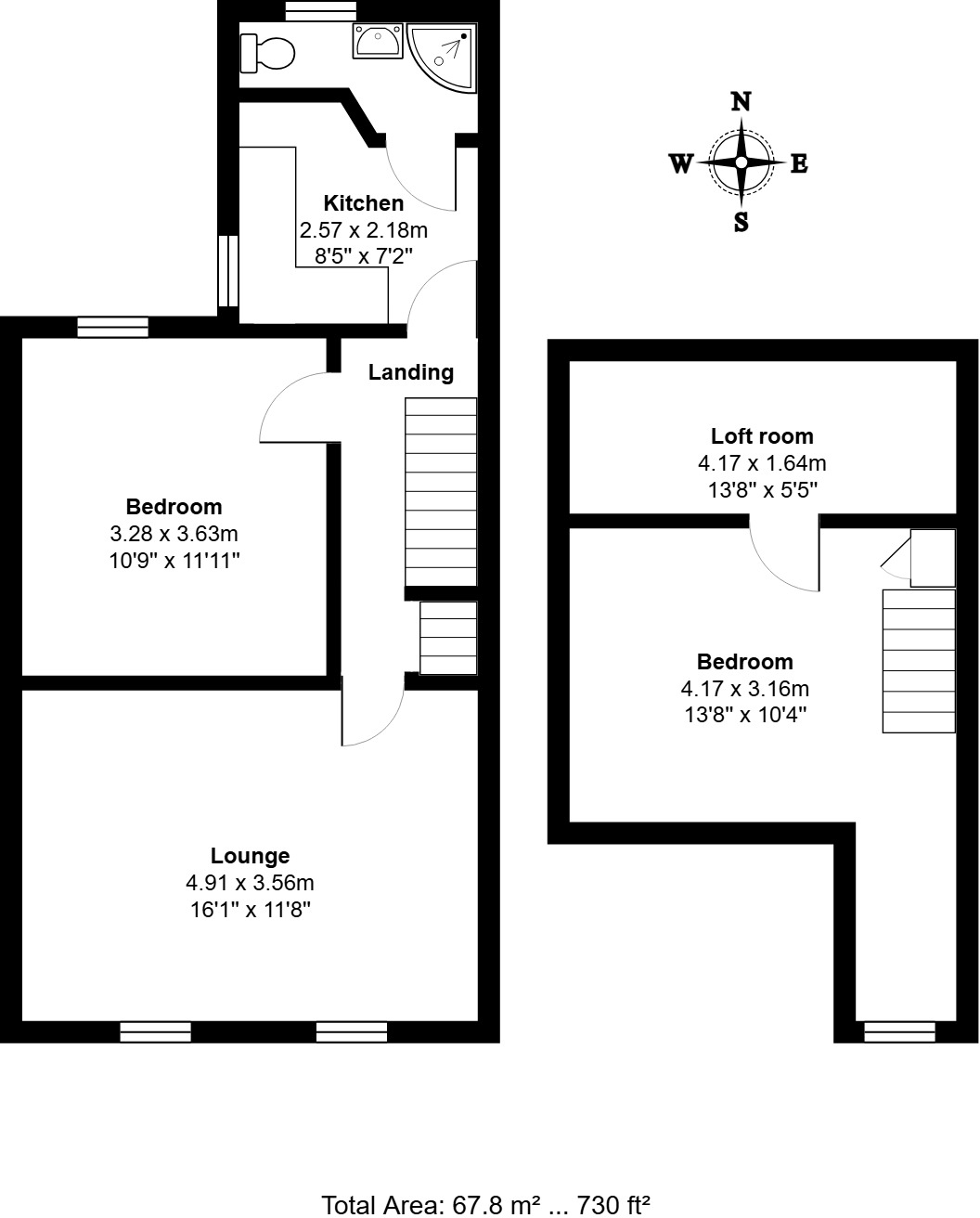
An inviting opportunity to acquire a characterful semi-detached premises, currently comprising a pair of two double bedroom apartments, each with parking & being conveniently placed for the town centre & college.
Property Oracle says ..
Therefore, we give this property 6 / 10. *Disclaimer: This is our option and does constitute a recommendation or financial advice. Do your own research. *
- Price
- 6
- Condition
- 6
- Location
- 7
- Land
- 7
- Bedrooms
- 4
- Bathrooms
- 3
- Sqft (est)
- 729.79
The heatmap indicates the level of crime in the area. The color of the heatmap indicates the crime severity and recency.
Metrics Year-on-Year
- Average area value
- 384,737.00 £Decreased by 1.20 %
- Est sale value
- 297,024.53 £Increased by 15.95 %
- Average area rental value
- 1,963.00 £/moIncreased by 39.81 %
- Est letting value
- 1,459.58 £/moIncreased by 100.00 %
- Est rental Yield
- 6.12 %Increased by 41.34 %
- Crime Rate
- 6.00 %Unchanged by 0.00 %
from 389,410.00 £
from 256,156.29 £
from 1,404.00 £/mo
from 729.79 £/mo
from 4.33 %
from 6.00 %
Agent Activity
Town & Village Properties created the listing.
Nearby Schools
| Name | Type | Ofsted | Distance |
|---|---|---|---|
| Clifford Road Primary School & Nursery | Community School | Good | 0.57 KM |
| St Helen'S Primary School | Academy Converter | Good | 0.61 KM |
| St Mary'S Catholic Primary School, Ipswich | Academy Converter | 0.67 KM | |
| Suffolk New College | Further Education | Requires improvement | 0.74 KM |
| Learning Support, Southern Area Education Office | Miscellaneous | 0.91 KM |
Images
Nearby Streets
| Name | Average Price | Average Sqft | Distance |
|---|---|---|---|
| Nursery Gardens | £ 235,000 | 0 | 0.00 KM |
| Warwick Road | £ 240,000 | 0 | 0.00 KM |
| Bank Road | £ 270,000 | 0 | 0.00 KM |
| Russet Road | £ 0 | 0 | 0.00 KM |
| St. Helens Street | £ 0 | 0 | 0.00 KM |
Nearby Transport
| Name | NLC | TLC | Distance |
|---|---|---|---|
| Derby Road (Ipswich) | 7212 | DBR | 1.50 KM |
| Westerfield | 7226 | WFI | 2.69 KM |
| Ipswich | 7217 | IPS | 3.02 KM |
Nearby Listings
| Address | Price | Type | Score | Distance |
|---|---|---|---|---|
| Ipswich, Suffolk | £ 330,000 | BUY | 6 / 10 | 0.00 KM |
| Nursery Gardens, Ipswich, IP4 | £ 305,000 | BUY | 7 / 10 | 0.05 KM |
| Nursery Gardens, Ipswich, Suffolk | £ 250,000 | BUY | 7 / 10 | 0.05 KM |
| Bartholomew Street, Ipswich | £ 235,000 | BUY | 6 / 10 | 0.06 KM |
| Spring Road, Ipswich, IP4 | £ 330,000 | BUY | Unknown | 0.07 KM |
Nearby Properties
| Address | Price | Distance |
|---|---|---|
| 25 Spring Road | £ 81,000 | 0.00 KM |
| 35a Spring Road | £ 53,600 | 0.00 KM |
| 39 Spring Road | £ 140,000 | 0.00 KM |
| 35b Spring Road | £ 110,000 | 0.00 KM |
| 37b Spring Road | £ 142,900 | 0.00 KM |