High Street, Burton In Lonsdale
By Armitstead Barnett
£ 485,000
Reviews
3 out of 5 stars
Armitstead Barnett says ..
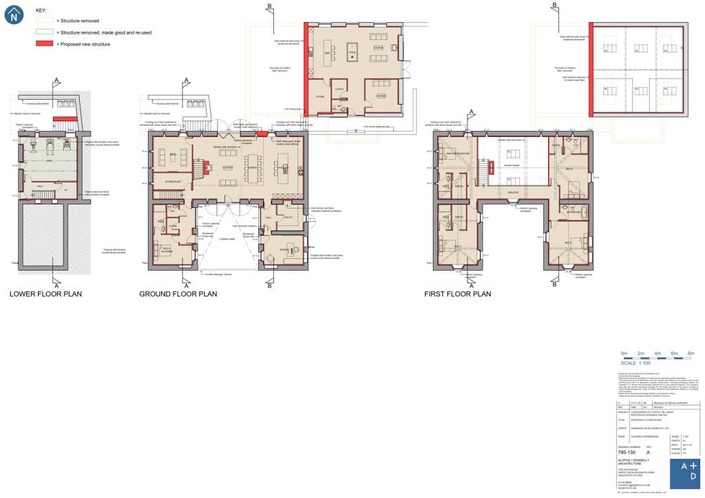
Exceptional Grade II Listed barn on the edge of Burton in Lonsdale, with consent to create a 5,575 sq. ft. home, enjoying views of Ingleborough and Barbon Fells. Work begun, ready for completion to personal design. Set in 0.64 acres with mains services and B4RN broadband; further land and buildin...
Property Oracle says ..
This is a 4-bedroom detached barn conversion located in the village of Burton In Lonsdale. The property offers a rural setting with good access to surrounding countryside. The property has been modernised. While the property benefits from a large plot, it is located some distance from local amenities.
Therefore, we give this property 7 / 10. *Disclaimer: This is our option and does constitute a recommendation or financial advice. Do your own research. *
- Price
- 6
- Condition
- 7
- Location
- 7
- Land
- 8
- Bedrooms
- 4
- Bathrooms
- 0
The heatmap indicates the level of crime in the area. The color of the heatmap indicates the crime severity and recency.
Metrics Year-on-Year
- Average area value
- 1,245,000.00 £Increased by 45.13 %
- Average area rental value
- 2,513.00 £/moIncreased by 0.60 %
- Est rental Yield
- 2.42 %Decreased by 30.66 %
- Crime Rate
- 0.00 %
Agent Activity
Armitstead Barnett created the listing.
Nearby Schools
| Name | Type | Ofsted | Distance |
|---|---|---|---|
| Stonegate School | Other Independent Special School | Good | 2.83 KM |
| Cedar House School | Other Independent Special School | Good | 3.10 KM |
| Bentham Community Primary School | Community School | Good | 3.38 KM |
| Leck St Peter'S Church Of England Primary School | Voluntary Aided School | Good | 4.58 KM |
| Wennington Hall School | Community Special School | Serious Weaknesses | 6.16 KM |
Images
Nearby Streets
| Name | Average Price | Average Sqft | Distance |
|---|---|---|---|
| Mill Hill | £ 0 | 0 | 0.00 KM |
Nearby Transport
| Name | NLC | TLC | Distance |
|---|---|---|---|
| Bentham | 2676 | BEN | 4.39 KM |
| Wennington | 2681 | WNN | 5.99 KM |
Nearby Listings
| Address | Price | Type | Score | Distance |
|---|---|---|---|---|
| High Street, Burton In Lonsdale | £ 485,000 | BUY | 7 / 10 | 0.00 KM |
| Chapel Lane, Burton In Lonsdale, Carnforth | £ 265,000 | BUY | 6 / 10 | 0.35 KM |
| Greta Heath, Burton In Lonsdale | £ 249,000 | BUY | 6 / 10 | 0.37 KM |
| 1 bedroom conversion for sale – School Hall, Burton in Lonsdale, Carnforth, LA6 3JU | £ 150,000 | BUY | 4 / 10 | 0.40 KM |
| 16 Manor Close, Burton In Lonsdale | £ 365,000 | BUY | 6 / 10 | 0.41 KM |
Nearby Properties
| Address | Price | Distance |
|---|---|---|
| 3 Stonebower Cottages | £ 135,938 | 0.25 KM |
| 2 Stonebower Cottages | £ 180,000 | 0.25 KM |
| 1 High Street | £ 337,000 | 0.27 KM |
| 4 Leeming Lane | £ 280,000 | 0.31 KM |
| 9 Leeming Lane | £ 169,000 | 0.31 KM |