Primrose Walk, Fleet, GU51
By McCarthy Holden
£ 400,000
Reviews
3 out of 5 stars
McCarthy Holden says ..
Retirement home in sought-after Stockton Park. Ideal for over 55s. Near Fleet town centre and train station. Tranquil setting with easy access to amenities.
Property Oracle says ..
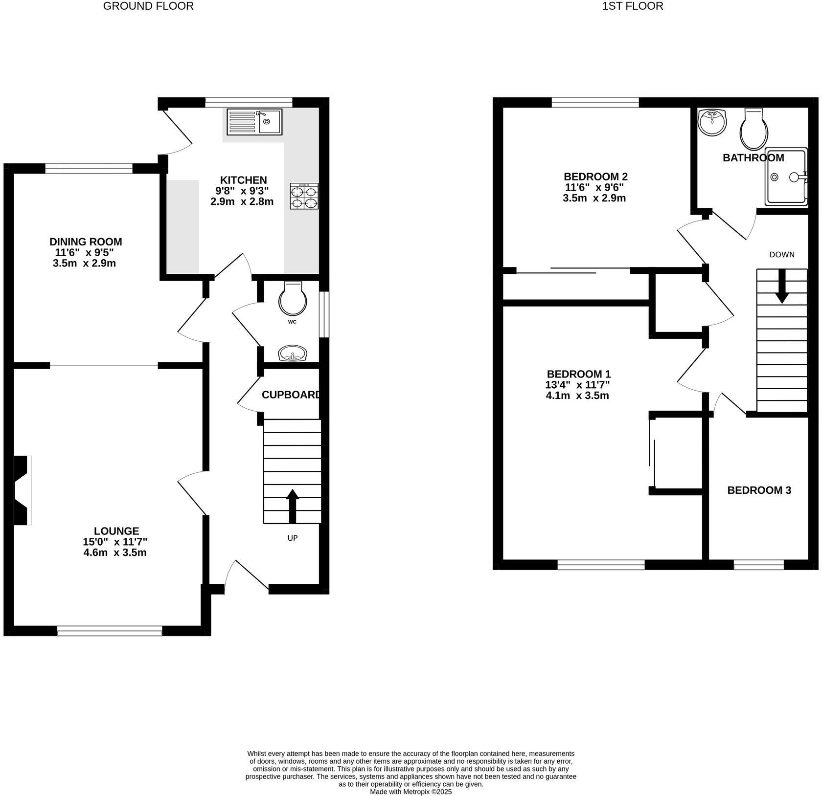
This is a three-bedroom retirement property located in Fleet, Hampshire. The property is in a good location, close to local amenities and transport links. While the property appears to be in reasonable condition, it would benefit from some modernisation. It features a private rear garden, which is a desirable feature. The asking price of £400,000 seems reasonable given the location and size of the property, but the condition may influence its market value.
Therefore, we give this property 6 / 10. *Disclaimer: This is our option and does constitute a recommendation or financial advice. Do your own research. *
- Price
- 7
- Condition
- 6
- Location
- 7
- Land
- 7
- Bedrooms
- 3
- Bathrooms
- 1
- Sqft (est)
- 773.60
The heatmap indicates the level of crime in the area. The color of the heatmap indicates the crime severity and recency.
Metrics Year-on-Year
- Average area value
- 399,167.00 £Increased by 7.59 %
- Est sale value
- 286,232.00 £Increased by 3.64 %
- Average area rental value
- 1,292.00 £/moIncreased by 3.03 %
- Est letting value
- 773.60 £/moUnchanged by 0.00 %
- Est rental Yield
- 3.88 %Decreased by 4.43 %
- Crime Rate
- 11.00 %Unchanged by 0.00 %
Agent Activity
McCarthy Holden created the listing.
Nearby Schools
| Name | Type | Ofsted | Distance |
|---|---|---|---|
| Fleet Fireflies Children'S Centre | Children's Centre Linked Site | 0.88 KM | |
| Heatherside Infant School | Community School | Outstanding | 1.09 KM |
| Heatherside Junior School | Community School | Outstanding | 1.09 KM |
| Court Moor School | Community School | Good | 1.69 KM |
| Turners Wood, Fleet Fireflies And Wild Rose Children'S Centre | Children's Centre | 1.83 KM |
Images
Nearby Streets
| Name | Average Price | Average Sqft | Distance |
|---|---|---|---|
| Clarendon House | £ 0 | 0 | 0.00 KM |
| Church Court | £ 230,000 | 0 | 0.00 KM |
| Stockton House | £ 0 | 0 | 0.00 KM |
| Travis Perkins | £ 0 | 0 | 0.00 KM |
| Glebe Court | £ 1,150,000 | 0 | 0.00 KM |
Nearby Transport
| Name | NLC | TLC | Distance |
|---|---|---|---|
| Fleet | 5522 | FLE | 1.29 KM |
| Winchfield | 5528 | WNF | 7.28 KM |
| Sandhurst (Berks) | 5646 | SND | 7.96 KM |
| Blackwater | 5625 | BAW | 8.79 KM |
| Crowthorne | 5628 | CRN | 9.38 KM |
Nearby Listings
| Address | Price | Type | Score | Distance |
|---|---|---|---|---|
| Primrose Walk, Fleet, GU51 | £ 400,000 | BUY | 6 / 10 | 0.00 KM |
| Primrose Walk, Fleet, GU51 | £ 295,000 | BUY | 6 / 10 | 0.03 KM |
| Primrose Walk, Fleet, GU51 | £ 300,000 | BUY | Unknown | 0.03 KM |
| Primrose Walk, Fleet, Hampshire | £ 295,000 | BUY | 7 / 10 | 0.03 KM |
| Primrose Walk, Fleet, Hampshire, GU51 | £ 310,000 | BUY | 6 / 10 | 0.03 KM |
Nearby Properties
| Address | Price | Distance |
|---|---|---|
| 8 Primrose Walk | £ 255,000 | 0.03 KM |
| 6 Primrose Walk | £ 258,000 | 0.03 KM |
| 7 Primrose Walk | £ 275,000 | 0.03 KM |
| 14 Primrose Walk | £ 280,000 | 0.03 KM |
| 3 Primrose Walk | £ 300,000 | 0.03 KM |