Goldschmidt & Howland says ..
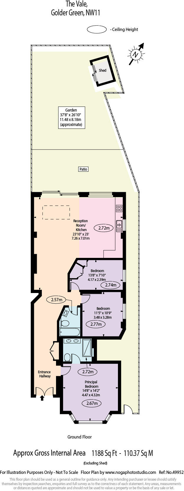
A delightful three bedroom apartment with its own private rear garden situated in this popular road in Golders Green, 0.3 miles from Golders Hill Park. The property is well presented throughout offering 1,188 sq ft of accommodaton, comprising an open plan reception room/dining room/kitchen, princ...
Property Oracle says ..
Therefore, we give this property 8 / 10. *Disclaimer: This is our option and does constitute a recommendation or financial advice. Do your own research. *
- Price
- 8
- Condition
- 9
- Location
- 8
- Land
- 7
- Bedrooms
- 3
- Bathrooms
- 2
- Sqft (est)
- 1,997.24
The heatmap indicates the level of crime in the area. The color of the heatmap indicates the crime severity and recency.
Metrics Year-on-Year
- Average area value
- 631,500.00 £Decreased by 49.35 %
- Est sale value
- 1,392,076.28 £Decreased by 12.55 %
- Average area rental value
- 2,142.00 £/moDecreased by 10.94 %
- Est letting value
- 3,994.48 £/moIncreased by 100.00 %
- Est rental Yield
- 4.07 %Increased by 76.19 %
- Crime Rate
- 5.00 %Unchanged by 0.00 %
from 1,246,724.00 £
from 1,591,800.28 £
from 2,405.00 £/mo
from 1,997.24 £/mo
from 2.31 %
from 5.00 %
Agent Activity
Goldschmidt & Howland created the listing.
Nearby Schools
| Name | Type | Ofsted | Distance |
|---|---|---|---|
| Rimon Jewish Primary School | Free Schools | Good | 0.28 KM |
| Golders Hill School | Other Independent School | Good | 0.70 KM |
| All Saints' Cofe Primary School Nw2 | Voluntary Aided School | Good | 0.87 KM |
| Menorah Primary School | Voluntary Aided School | Outstanding | 0.91 KM |
| Kisharon School | Free Schools Special | 1.01 KM |
Images
Nearby Streets
| Name | Average Price | Average Sqft | Distance |
|---|---|---|---|
| St Albans Lane | £ 2,500,000 | 0 | 0.00 KM |
| Malvern Gardens | £ 0 | 0 | 0.00 KM |
| Portsdown Mews | £ 0 | 0 | 0.00 KM |
| Grampian Gardens | £ 0 | 0 | 0.00 KM |
| Hendon Park Row | £ 0 | 0 | 0.00 KM |
Nearby Transport
| Name | NLC | TLC | Distance |
|---|---|---|---|
| Cricklewood | 1519 | CRI | 1.88 KM |
| West Hampstead Thameslink | 1525 | WHP | 2.56 KM |
| West Hampstead | 1421 | WHD | 2.69 KM |
| Brondesbury | 1437 | BSY | 2.77 KM |
| Finchley Road And Frognal | 1445 | FNY | 2.89 KM |
Nearby Listings
| Address | Price | Type | Score | Distance |
|---|---|---|---|---|
| The Vale, London | £ 1,995,000 | BUY | 8 / 10 | 0.06 KM |
| The Vale, Golders Green NW11 | £ 1,750,000 | BUY | Unknown | 0.06 KM |
| The Vale, NW11 | £ 675,000 | BUY | Unknown | 0.07 KM |
| The Vale, Golders Green NW11 | £ 975,000 | BUY | 6 / 10 | 0.08 KM |
| The Ridgeway, London, NW11 | £ 2,250,000 | BUY | 7 / 10 | 0.11 KM |
Nearby Properties
| Address | Price | Distance |
|---|---|---|
| 10 The Ridgeway | £ 1,600,000 | 0.09 KM |
| 10a The Ridgeway | £ 1,520,000 | 0.09 KM |
| 36 The Vale | £ 499,950 | 0.12 KM |
| 16 The Vale | £ 1,050,000 | 0.12 KM |
| 32 The Vale | £ 1,300,000 | 0.12 KM |