Plot 59, The Cranbourne, Elwick Park, Elwick Road, Hartlepool, TS2
By Newbuilds
£ 379,995
Reviews
3 out of 5 stars
Newbuilds says ..
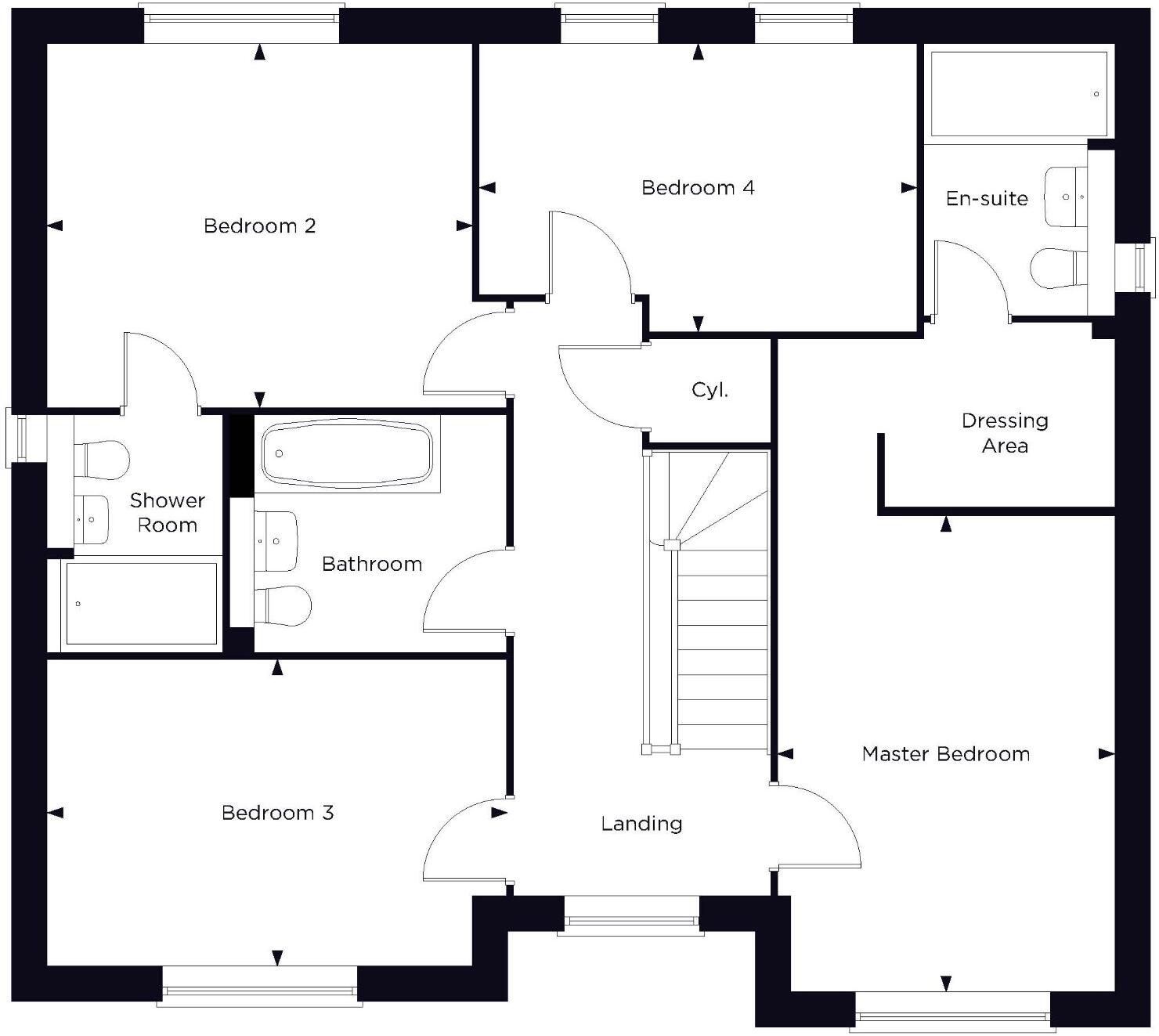
Choose this 4-bedroom detached home for executive living with open-plan kitchen, dining and family area, separate entertainment room and integral garage.
Property Oracle says ..
Plot 59, The Cranbourne is a 4-bedroom detached property located in Elwick Park, Hartlepool. The property is a new build and from the images appears to be finished to a high standard. It benefits from a modern, well-equipped kitchen, including integrated appliances and a separate utility room. The bathrooms are contemporary in design. The property also boasts a good-sized garden, visible in the exterior photographs. The location is within reasonable proximity to local schools and transport links, although the exact distances to amenities such as shops are not specified. The list price of £379,995 is higher than the average price for the area (£253,159), but comparable to other new-build detached properties in the immediate vicinity. However, the significantly smaller square footage (600 sqft compared to the area average of 879 sqft) needs to be considered when assessing value for money. The lack of plot size information also impacts the overall assessment.
Therefore, we give this property 7 / 10. *Disclaimer: This is our option and does constitute a recommendation or financial advice. Do your own research. *
- Price
- 7
- Condition
- 10
- Location
- 7
- Land
- 7
- Bedrooms
- 4
- Bathrooms
- 3
- Sqft (est)
- 600.00
The heatmap indicates the level of crime in the area. The color of the heatmap indicates the crime severity and recency.
Metrics Year-on-Year
- Average area value
- 926,998.00 £Increased by 247.85 %
- Est sale value
- 60,000.00 £Decreased by 67.53 %
- Average area rental value
- 1,034.00 £/moIncreased by 10.47 %
- Est letting value
- 0.00 £/moDecreased by 100.00 %
- Est rental Yield
- 1.34 %Decreased by 68.17 %
- Crime Rate
- 0.00 %
Agent Activity
Newbuilds created the listing.
Nearby Schools
| Name | Type | Ofsted | Distance |
|---|---|---|---|
| West Park Primary School | Academy Converter | Good | 0.59 KM |
| High Tunstall College Of Science | Foundation School | Good | 1.07 KM |
| Throston Primary School | Community School | Good | 2.23 KM |
| Throston Primary School And Children'S Centre | Children's Centre Linked Site | 2.23 KM | |
| Rift House Children'S Centre | Children's Centre Linked Site | 2.45 KM |
Images
Nearby Streets
| Name | Average Price | Average Sqft | Distance |
|---|---|---|---|
| Chasewater Way | £ 0 | 0 | 0.00 KM |
| Woodhouse Lane | £ 405,000 | 0 | 0.00 KM |
| Elwick Road | £ 356,395 | 0 | 0.00 KM |
| Woodchester Crescent | £ 349,995 | 0 | 0.00 KM |
| Bodnant Close | £ 0 | 0 | 0.00 KM |
Nearby Transport
| Name | NLC | TLC | Distance |
|---|---|---|---|
| Hartlepool | 8009 | HPL | 5.55 KM |
| Seaton Carew | 8007 | SEC | 7.19 KM |
| Billingham | 7910 | BIL | 9.64 KM |
Nearby Listings
| Address | Price | Type | Score | Distance |
|---|---|---|---|---|
| Plot 52 & 61 The Oakwood, Elwick Park, Elwick Road, Hartlepool, TS26 | £ 293,995 | BUY | Unknown | 0.00 KM |
| Plot 46 & 59, The Cranbourne, Elwick Park, Elwick Road, Hartlepool, TS26 | £ 384,995 | BUY | 7 / 10 | 0.00 KM |
| DUCHY HOMES, Plot 74 The Ripley, Elwick Park, Elwick Road, Hartlepool, TS26 | £ 329,995 | BUY | 7 / 10 | 0.01 KM |
| DUCHY HOMES - Plot 83 The Alderley, Elwick Park, Elwick Road, Hartlepool, TS26 | £ 268,995 | BUY | 7 / 10 | 0.01 KM |
| DUCHY HOMES, Plot 78 The Thornbury, Elwick Park, Elwick Road, Hartlepool, TS26 | £ 228,995 | BUY | 7 / 10 | 0.01 KM |
Nearby Properties
| Address | Price | Distance |
|---|---|---|
| 8 Woodhouse Lane | £ 275,000 | 0.27 KM |
| 12 Chelker Close | £ 355,000 | 0.39 KM |
| 4 Chelker Close | £ 309,000 | 0.39 KM |
| 16 Chelker Close | £ 285,000 | 0.39 KM |
| 11 Fewston Close | £ 340,000 | 0.40 KM |