Jenkinson Estates says ..
Jenkinson Estates are pleased to bring to the market this 1930's semi detached home in the ever popular location of Park Avenue, Deal.The vibrant town centre of Deal is within walking distance, as is the mainline railway station with its fast links to London St Pancras. Victoria Park and the ...
Property Oracle says ..
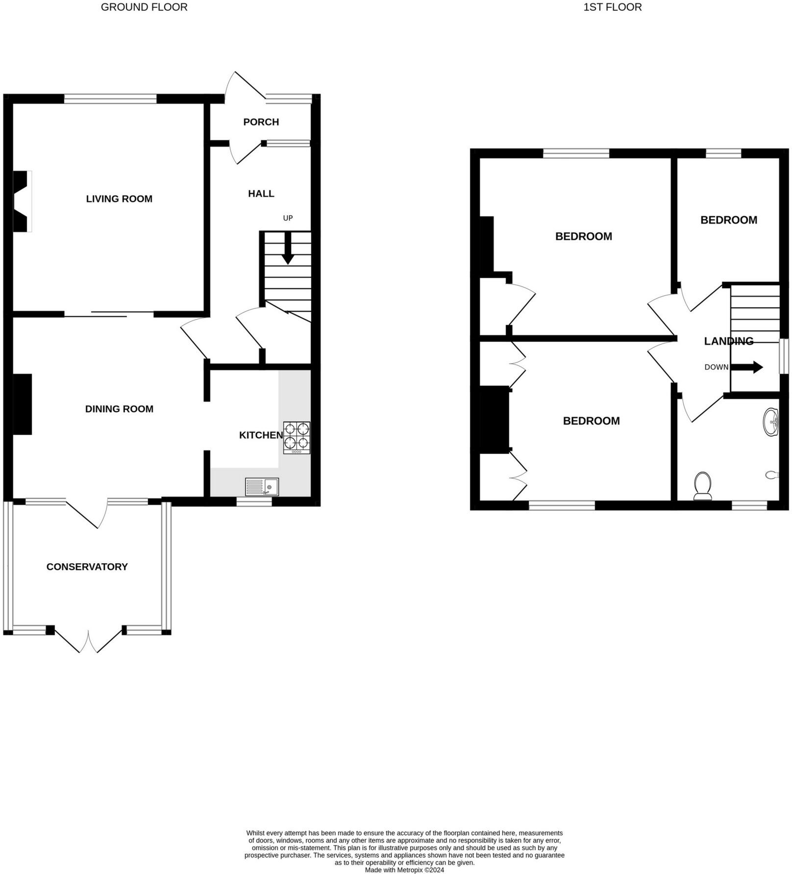
This 3-bedroom, 2-bathroom semi-detached house on Park Avenue in Deal, Kent, is listed at £315,000. The property’s location is a key selling point, with convenient access to Deal’s town centre, train station providing links to London, and Victoria Park. Nearby schools are also a significant advantage for families. The property’s condition is fair; it’s habitable but could benefit from some modernization and redecoration. The kitchen and bathrooms appear functional but dated. The included garden is of modest size, featuring a greenhouse and shed. The list price appears reasonable when compared to other properties in the area, although a definitive price per square foot analysis is impossible due to missing data in the comparable listings. Overall, this property offers a good location and a functional living space, but potential buyers should budget for renovations and improvements to enhance its appeal and value. The listing agent, Jenkinson Estates, is a Gold Winner of the British Property Awards 2024 for Deal, suggesting a degree of professionalism and market expertise.
Therefore, we give this property 5 / 10. *Disclaimer: This is our option and does constitute a recommendation or financial advice. Do your own research. *
- Price
- 7
- Condition
- 5
- Location
- 7
- Land
- 4
- Bedrooms
- 3
- Bathrooms
- 2
- Sqft (est)
- 1,000.00
The heatmap indicates the level of crime in the area. The color of the heatmap indicates the crime severity and recency.
Metrics Year-on-Year
- Average area value
- 420,000.00 £Decreased by 25.30 %
- Est sale value
- 278,000.00 £Decreased by 27.23 %
- Average area rental value
- 898.00 £/moDecreased by 22.79 %
- Est letting value
- 0.00 £/mo
- Est rental Yield
- 2.57 %Increased by 3.63 %
- Crime Rate
- 7.00 %Unchanged by 0.00 %
Agent Activity
Jenkinson Estates created the listing.
Nearby Schools
| Name | Type | Ofsted | Distance |
|---|---|---|---|
| Brewood Secondary School | Other Independent Special School | Good | 0.19 KM |
| Goodwin Academy | Academy Sponsor Led | 0.45 KM | |
| Deal Parochial Church Of England Primary School | Academy Converter | 0.79 KM | |
| Warden House Primary School | Academy Converter | Outstanding | 1.21 KM |
| The Downs Church Of England Primary School | Academy Converter | 1.28 KM |
Images
Nearby Streets
| Name | Average Price | Average Sqft | Distance |
|---|---|---|---|
| Cowper Road | £ 602,000 | 0 | 0.00 KM |
| St. Leonard's Road | £ 636,100 | 0 | 0.00 KM |
| Tar Path | £ 0 | 0 | 0.00 KM |
| Sutherland Road | £ 525,000 | 0 | 0.00 KM |
| Scholars Close | £ 0 | 0 | 0.00 KM |
Nearby Transport
| Name | NLC | TLC | Distance |
|---|---|---|---|
| Deal | 5011 | DEA | 0.84 KM |
| Walmer | 5041 | WAM | 2.04 KM |
| Martin Mill | 5040 | MTM | 7.27 KM |
| Sandwich | 5026 | SDW | 7.90 KM |
Nearby Listings
| Address | Price | Type | Score | Distance |
|---|---|---|---|---|
| Park Avenue, Deal, CT14 | £ 315,000 | BUY | 5 / 10 | 0.00 KM |
| Park Avenue, Deal, Kent, CT14 9AW | £ 300,000 | BUY | 6 / 10 | 0.06 KM |
| Lister Close, Deal, Kent, CT14 | £ 350,000 | BUY | 6 / 10 | 0.12 KM |
| London Road, Deal, Kent | £ 1,000,000 | BUY | 9 / 10 | 0.13 KM |
| Claremont Road, Kingsdown, Deal, Kent | £ 126,000 | BUY | 5 / 10 | 0.16 KM |
Nearby Properties
| Address | Price | Distance |
|---|---|---|
| 37 Park Avenue | £ 210,000 | 0.04 KM |
| 53 Park Avenue | £ 235,000 | 0.04 KM |
| 51 Park Avenue | £ 190,000 | 0.04 KM |
| 45 Park Avenue | £ 175,000 | 0.04 KM |
| 31b Park Avenue | £ 199,000 | 0.04 KM |