Stonefield Close,Eastleaze,Swindon,SN5 7EH
By Moovahome Ltd.
£ 75,000
Reviews
3 out of 5 stars
Moovahome Ltd. says ..
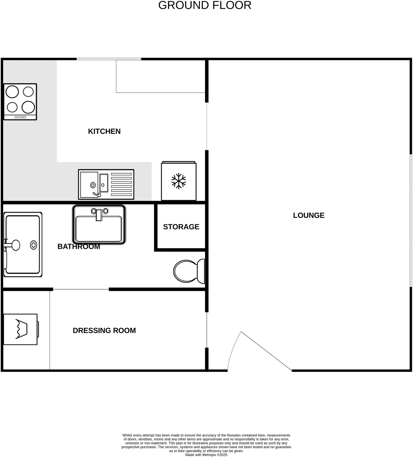
A well presented first floor STUDIO Flat in Eastleaze West Swindon. The apartment has a separate Kitchen, with breakfast bar, Shower Room (plus utility/dressing area), Open Plan Living / Bedroom. The Lease has been extended (119 years remaining) and low ground rent and servic...
Property Oracle says ..
The property is a studio flat located in Eastleaze, Swindon. The location benefits from proximity to several well-regarded primary schools, including Westlea Primary School and Shaw Ridge Primary School, both rated ‘Good’ by Ofsted. Swindon railway station is approximately 4.61km away, providing access to rail transportation. While the provided data lacks specifics on the size of the property and land, the images suggest a relatively small studio flat with limited outdoor space. The property appears to be in reasonable condition. The images show a clean and well-maintained interior, with a modern kitchen and bathroom. There are no visible signs of significant damage or disrepair. However, the lack of information on the property’s square footage prevents a definitive assessment of the condition relative to its size. The list price of £75,000 is significantly lower than the average house price in the area (£298,863). However, this is likely due to the property being a studio flat, rather than a larger family home. Nearby comparable properties range from £39,950 to £220,000, with the majority falling within the £55,000-£78,500 range. Given the limited information on the property’s size and the lack of information on the average price per square foot for studio flats in the area, a definitive assessment of the value for money is difficult. However, based on the available data, the price appears to be within the range of comparable properties.
Therefore, we give this property 7 / 10. *Disclaimer: This is our option and does constitute a recommendation or financial advice. Do your own research. *
- Price
- 7
- Condition
- 8
- Location
- 7
- Land
- 0
- Bedrooms
- 0
- Bathrooms
- 1
- Sqft (est)
- 450.00
The heatmap indicates the level of crime in the area. The color of the heatmap indicates the crime severity and recency.
Metrics Year-on-Year
- Average area value
- 256,741.00 £Decreased by 11.11 %
- Est sale value
- 162,450.00 £Increased by 37.79 %
- Average area rental value
- 1,045.00 £/moIncreased by 8.52 %
- Est letting value
- 450.00 £/mo
- Est rental Yield
- 4.88 %Increased by 22.00 %
- Crime Rate
- 6.00 %Unchanged by 0.00 %
Agent Activity
Moovahome Ltd. created the listing.
Nearby Schools
| Name | Type | Ofsted | Distance |
|---|---|---|---|
| Westlea Primary School | Academy Converter | Good | 0.37 KM |
| Shaw Ridge Primary School | Academy Converter | Good | 0.44 KM |
| Oliver Tomkins Church Of England Infant And Nursery School | Voluntary Aided School | Good | 1.05 KM |
| Oliver Tomkins Church Of England Junior School | Voluntary Aided School | Good | 1.05 KM |
| Brook Field Primary School | Academy Converter | 1.33 KM |
Images
Nearby Streets
| Name | Average Price | Average Sqft | Distance |
|---|---|---|---|
| Magnolia Gardens | £ 0 | 0 | 0.00 KM |
| Toothill | £ 0 | 0 | 0.00 KM |
| Heathcote Close | £ 0 | 0 | 0.00 KM |
| Redcap Close | £ 0 | 0 | 0.00 KM |
| Baird Close | £ 0 | 0 | 0.00 KM |
Nearby Transport
| Name | NLC | TLC | Distance |
|---|---|---|---|
| Swindon (Wilts) | 3333 | SWI | 4.61 KM |
Nearby Listings
| Address | Price | Type | Score | Distance |
|---|---|---|---|---|
| Stonefield Close,Eastleaze,Swindon,SN5 7EH | £ 75,000 | BUY | 7 / 10 | 0.00 KM |
| Stonefield Close, SWINDON, Wiltshire, SN5 | £ 70,000 | BUY | Unknown | 0.01 KM |
| Stonefield Close - Eastleaze, Swindon, SN5 | £ 220,000 | BUY | 4 / 10 | 0.04 KM |
| Eastleaze Road, Eastleaze, Swindon, Wiltshire, SN5 | £ 220,000 | BUY | 6 / 10 | 0.12 KM |
| Stonefield Close, Swindon, Wiltshire | £ 200,000 | BUY | Unknown | 0.14 KM |
Nearby Properties
| Address | Price | Distance |
|---|---|---|
| 22 Stonefield Close | £ 72,500 | 0.01 KM |
| 20 Stonefield Close | £ 68,000 | 0.01 KM |
| 38 Stonefield Close | £ 76,000 | 0.01 KM |
| 12 Stonefield Close | £ 75,000 | 0.01 KM |
| 6 Stonefield Close | £ 39,950 | 0.01 KM |