Urban Village says ..
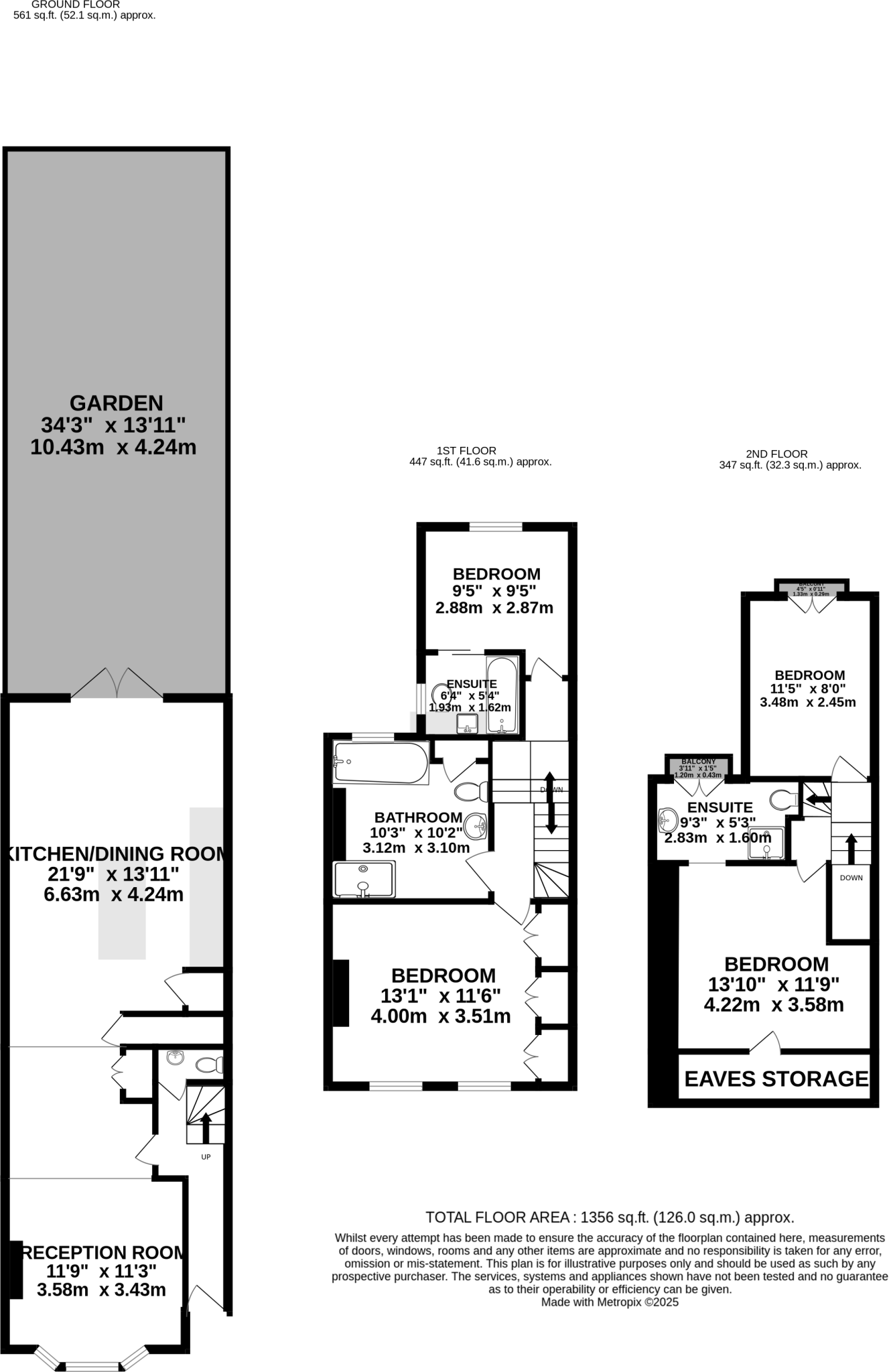
Stunning 4-Bedroom Victorian Terrace beautifully renovated to a very high spec on sought-after Bicknell Road. A perfect blend of period charm with striking modern design. Boasting four generous bedrooms, this high-spec family home has been thoughtfully extended and updated to the highest standard...
Property Oracle says ..
The property is located in the desirable Herne Hill area of London, known for its village atmosphere and good transport links. It is close to well-regarded schools and several train stations. The property itself is in excellent condition, having been recently renovated to a high standard. Images show a modern, stylish interior and a well-maintained garden. While the price per sqft is higher than the area average, comparable properties on the same street have sold for similar or higher prices, suggesting that the list price may be justifiable within the context of the local market.
Therefore, we give this property 8 / 10. *Disclaimer: This is our option and does constitute a recommendation or financial advice. Do your own research. *
- Price
- 7
- Condition
- 10
- Location
- 9
- Land
- 8
- Bedrooms
- 4
- Bathrooms
- 3
- Sqft (est)
- 2,043.29
- Lot (est)
- 1,356.00
The heatmap indicates the level of crime in the area. The color of the heatmap indicates the crime severity and recency.
Metrics Year-on-Year
- Average area value
- 795,417.00 £Increased by 12.21 %
- Est sale value
- 1,019,601.71 £Decreased by 44.49 %
- Average area rental value
- 2,268.00 £/moDecreased by 0.48 %
- Est letting value
- 2,043.29 £/moDecreased by 50.00 %
- Est rental Yield
- 3.42 %Decreased by 11.40 %
- Crime Rate
- 1.00 %Unchanged by 0.00 %
Agent Activity
Urban Village marked this listing as sold.
Urban Village created the listing.
Nearby Schools
| Name | Type | Ofsted | Distance |
|---|---|---|---|
| St Saviour'S Church Of England Primary School | Voluntary Aided School | Good | 0.12 KM |
| The Michael Tippett School | Community Special School | Good | 0.46 KM |
| The Hospital And Home Tuition Sick Children'S Service | Miscellaneous | 0.68 KM | |
| Jessop Primary School & Children'S Centre | Children's Centre | 0.70 KM | |
| Jessop Primary School | Community School | Outstanding | 0.70 KM |
Images
Nearby Streets
| Name | Average Price | Average Sqft | Distance |
|---|---|---|---|
| Tram Close | £ 0 | 0 | 0.00 KM |
| Deepdene Road | £ 0 | 0 | 0.00 KM |
| Gordon Grove | £ 0 | 0 | 0.00 KM |
| Wickwood Street | £ 0 | 0 | 0.00 KM |
| Ruskin Park House | £ 0 | 0 | 0.00 KM |
Nearby Transport
| Name | NLC | TLC | Distance |
|---|---|---|---|
| Loughborough Junction | 5082 | LGJ | 0.61 KM |
| Denmark Hill | 5421 | DMK | 0.95 KM |
| Herne Hill | 5066 | HNH | 1.36 KM |
| North Dulwich | 5429 | NDL | 1.49 KM |
| East Dulwich | 5358 | EDW | 1.85 KM |
Nearby Listings
| Address | Price | Type | Score | Distance |
|---|---|---|---|---|
| Bicknell Road, London | £ 1,350,000 | BUY | 8 / 10 | 0.00 KM |
| Bicknell Road, London | £ 925,000 | BUY | 7 / 10 | 0.00 KM |
| Bicknell Road, Herne Hill, London, SE5 | £ 1,175,000 | BUY | Unknown | 0.02 KM |
| Finsen Road, London | £ 1,175,000 | BUY | 7 / 10 | 0.06 KM |
| Cambria Road Camberwell | £ 495,000 | BUY | Unknown | 0.06 KM |
Nearby Properties
| Address | Price | Distance |
|---|---|---|
| 11 Bicknell Road | £ 848,500 | 0.00 KM |
| 14 Bicknell Road | £ 1,005,000 | 0.00 KM |
| 23 Bicknell Road | £ 1,220,000 | 0.00 KM |
| 7 Bicknell Road | £ 863,000 | 0.00 KM |
| 25 Bicknell Road | £ 885,000 | 0.00 KM |