High Holborn, London, WC1V
JO

High Holborn, London, WC1V

By John D Wood & Co. Sales

£ 1,500,000

Reviews

3 out of 5 stars

John D Wood & Co. Sales says ..

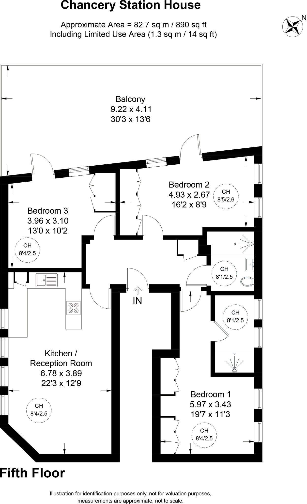
An excellent three bedroom, two bathroom apartment with a large, west-facing private terrace enviably located in the heart of Holborn. Extending to 890 square feet of internal space, this apartment offers an excellent space ideal for commuting or being right in and amongst all that Ce...

Property Oracle says ..

This property is a three-bedroom, two-bathroom apartment located in High Holborn, London. The location is excellent, with easy access to public transportation, including Farringdon station (0.92km), and several highly-rated schools within a short distance. The property itself appears to be in good condition based on the provided photos, with a modern kitchen and updated bathrooms. While the photos do not show a traditional garden, there is a sizable roof terrace offering outdoor space. Considering the average price per sqft in the area (£1,598) and the property’s size (454 sqft), the list price of £1,500,000 seems slightly above average, but comparable to other properties in the area. The presence of the roof terrace may justify the slightly higher price.

Therefore, we give this property 7 / 10. *Disclaimer: This is our option and does constitute a recommendation or financial advice. Do your own research. *

Price
7
Condition
8
Location
9
Land
7
Bedrooms
3
Bathrooms
2
Sqft (est)
454.04
Lot (est)
890.00

The heatmap indicates the level of crime in the area. The color of the heatmap indicates the crime severity and recency.

Metrics Year-on-Year

Average area value
1,154,000.00 £
Decreased by 22.25 %
from 1,484,333.00 £
Est sale value
691,048.88 £
Decreased by 9.35 %
from 762,333.16 £
Average area rental value
2,781.00 £/mo
Increased by 3.65 %
from 2,683.00 £/mo
Est letting value
1,362.12 £/mo
Unchanged by 0.00 %
from 1,362.12 £/mo
Est rental Yield
2.89 %
Increased by 33.18 %
from 2.17 %
Crime Rate
4.00 %
Unchanged by 0.00 %
from 4.00 %

Agent Activity

  • John D Wood & Co. Sales created the listing.

Nearby Schools

NameTypeOfstedDistance
St Alban'S Church Of England Primary SchoolVoluntary Aided SchoolGood0.32 KM
University Of The Arts LondonHigher Education InstitutionsOutstanding0.34 KM
1A Children'S CentreChildren's Centre0.46 KM
Christopher Hatton Primary SchoolCommunity SchoolOutstanding0.48 KM
St George The Martyr Church Of England Primary SchoolVoluntary Aided SchoolOutstanding0.56 KM

Images

Picture No. 02 Picture No. 03 Picture No. 05 Picture No. 06 Picture No. 07 Picture No. 04 Picture No. 08 Picture No. 09 Picture No. 10 Picture No. 11 Picture No. 12 Picture No. 13 Picture No. 14 Picture No. 15 Picture No. 16 Picture No. 17 Picture No. 18 Picture No. 19

Nearby Streets

NameAverage PriceAverage SqftDistance
South Square £ 000.00 KM
Gray's Inn Square £ 000.00 KM
Rolls Passage £ 950,00000.00 KM
Serle Street £ 000.00 KM
Lincoln's Inn Fields £ 000.00 KM

Nearby Transport

NameNLCTLCDistance
Farringdon577ZFD0.92 KM
City Thameslink5121CTK1.20 KM
Blackfriars5112BFR1.34 KM
Waterloo East5158WAE1.68 KM
Waterloo5598WAT1.69 KM

Nearby Listings

AddressPriceTypeScoreDistance
High Holborn, London £ 1,100,000BUY7 / 100.00 KM
Chancery Station House, High Holborn, Holborn, WC1V £ 1,000,000BUYUnknown0.01 KM
Chancery Station House, High Holborn, Holborn, WC1V £ 1,200,000BUYUnknown0.01 KM
High Holborn, Holborn, London, WC1V £ 1,600,000BUY7 / 100.02 KM
Warwick Court, High Holborn, WC1R £ 1,800,000BUY7 / 100.08 KM

Nearby Properties

AddressPriceDistance
46 Grays Inn Road £ 1,400,0000.20 KM
2 - 3 Kings Mews £ 495,0000.37 KM
4 Kings Mews £ 2,875,0000.37 KM
5 John Street £ 2,050,0000.39 KM
35 John Street £ 7,365,0000.42 KM