Ocean says ..
A 5 bedroom semi detached home in a popular and sought after location.
Property Oracle says ..
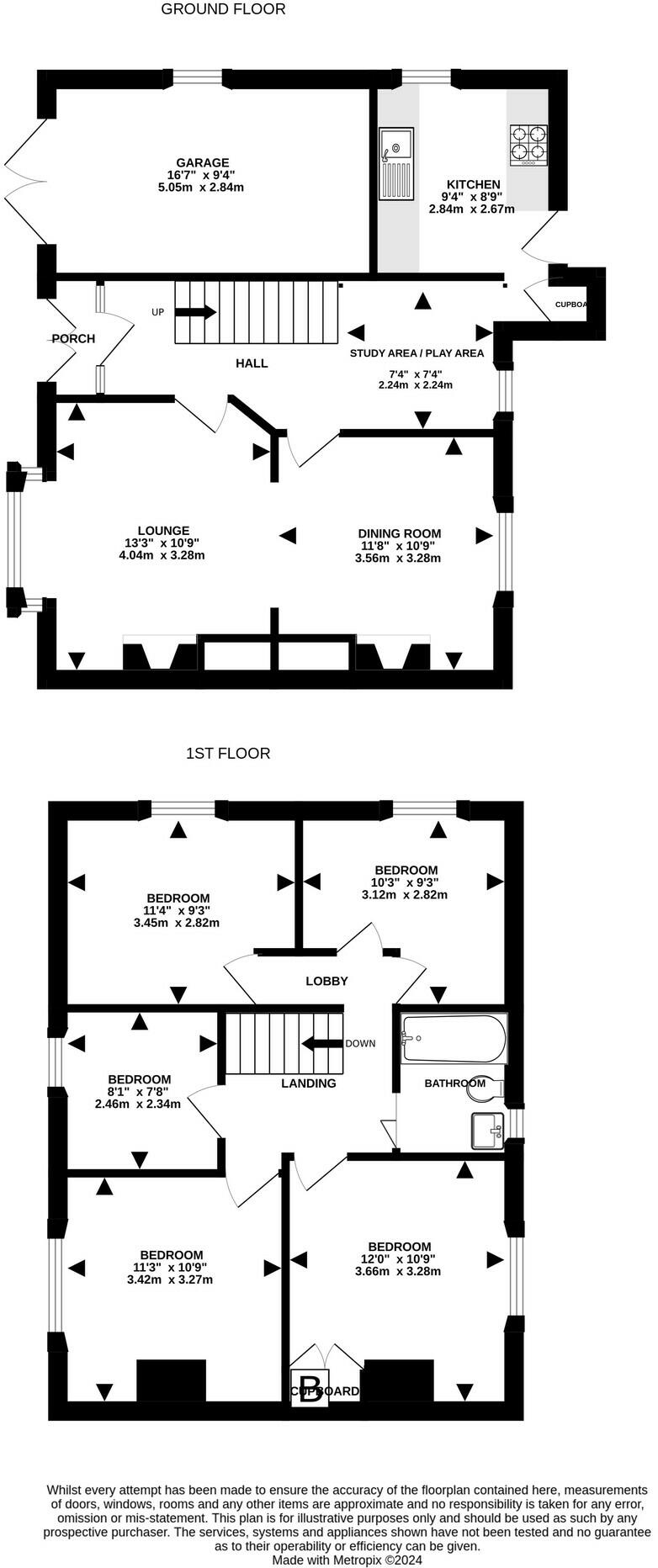
This five-bedroom semi-detached house located on Coaley Road in Shirehampton, Bristol presents a compelling option for families seeking a spacious and well-located home. The property boasts a substantial interior, encompassing five bedrooms and a single bathroom. The images reveal a family-friendly atmosphere, reflecting a well-lived-in yet cared-for residence. The interior decor displays a pleasant combination of modern and period features. The main living areas feature wooden flooring, high ceilings, and built-in storage solutions, showcasing both character and practicality. The kitchen, while functional, presents an opportunity for potential upgrades to further enhance the overall appeal. The exterior features a pleasing garden layout, providing ample outdoor space suitable for children and recreational activities, as well as a patio and a sizable backyard. The property’s proximity to Shirehampton railway station and several well-rated primary schools makes this an attractive prospect for families. While not in pristine condition, the property’s strong points, namely its size, the number of bedrooms, the garden, and location, create a reasonably attractive proposition for its asking price within the wider Bristol housing market. The property’s location in the Avonmouth And Lawrence Weston district should be carefully considered in the context of buyer’s preferences for this area of Bristol.
Therefore, we give this property 6 / 10. *Disclaimer: This is our option and does constitute a recommendation or financial advice. Do your own research. *
- Price
- 7
- Condition
- 7
- Location
- 7
- Land
- 6
- Bedrooms
- 5
- Bathrooms
- 1
- Sqft (est)
- 1,644.40
The heatmap indicates the level of crime in the area. The color of the heatmap indicates the crime severity and recency.
Metrics Year-on-Year
- Average area value
- 314,285.00 £Decreased by 23.82 %
- Est sale value
- 565,673.60 £Increased by 13.53 %
- Average area rental value
- 1,470.00 £/moIncreased by 11.20 %
- Est letting value
- 1,644.40 £/mo
- Est rental Yield
- 5.61 %Increased by 45.71 %
- Crime Rate
- 4.00 %Unchanged by 0.00 %
Agent Activity
Ocean created the listing.
Nearby Schools
| Name | Type | Ofsted | Distance |
|---|---|---|---|
| Shirehampton Primary School | Community School | Good | 0.72 KM |
| St Katherine'S School | Academy Converter | Requires improvement | 1.09 KM |
| Oasis Academy Brightstowe | Academy Sponsor Led | Good | 1.12 KM |
| Crockerne Church Of England Primary School | Academy Converter | Good | 1.26 KM |
| Crockerne Children'S Centre | Children's Centre | 1.28 KM |
Images
Nearby Streets
| Name | Average Price | Average Sqft | Distance |
|---|---|---|---|
| Watchhouse Road | £ 325,000 | 0 | 0.00 KM |
| Orchard Lea | £ 277,500 | 0 | 0.00 KM |
| New Road | £ 0 | 0 | 0.00 KM |
| Star Lane | £ 0 | 0 | 0.00 KM |
| Hart Close | £ 545,000 | 0 | 0.00 KM |
Nearby Transport
| Name | NLC | TLC | Distance |
|---|---|---|---|
| Shirehampton | 3206 | SHH | 0.13 KM |
| Avonmouth | 3200 | AVN | 2.95 KM |
| Sea Mills | 3254 | SML | 3.25 KM |
| St Andrews Road | 3252 | SAR | 3.80 KM |
| Clifton Down | 3202 | CFN | 7.74 KM |
Nearby Listings
| Address | Price | Type | Score | Distance |
|---|---|---|---|---|
| Coaley Road, Shirehampton, Bristol | £ 450,000 | BUY | 6 / 10 | 0.00 KM |
| Coaley Road, Shirehampton, Bristol | £ 439,995 | BUY | 7 / 10 | 0.01 KM |
| Coaley Road, Shirehampton | £ 450,000 | BUY | 7 / 10 | 0.05 KM |
| Coaley Road, Shirehampton, Bristol | £ 375,000 | BUY | 6 / 10 | 0.07 KM |
| Nibley Road, Shirehampton, Bristol | £ 399,995 | BUY | 6 / 10 | 0.11 KM |
Nearby Properties
| Address | Price | Distance |
|---|---|---|
| 9 Coaley Road | £ 170,000 | 0.04 KM |
| 12 Coaley Road | £ 248,000 | 0.04 KM |
| 10 Coaley Road | £ 182,000 | 0.04 KM |
| 15 Coaley Road | £ 154,000 | 0.04 KM |
| 6 Coaley Road | £ 143,000 | 0.04 KM |