Knoll Hill, Bristol, BS9
CJ Hole logo

Knoll Hill, Bristol, BS9

By CJ Hole

£ 435,000

Reviews

3 out of 5 stars

CJ Hole says ..

A beautifully presented apartment positioned in a quiet back water of Sneyd Park that offers outstanding views, incredible communal gardens, private garage, parking and superb condition throughout.

Property Oracle says ..

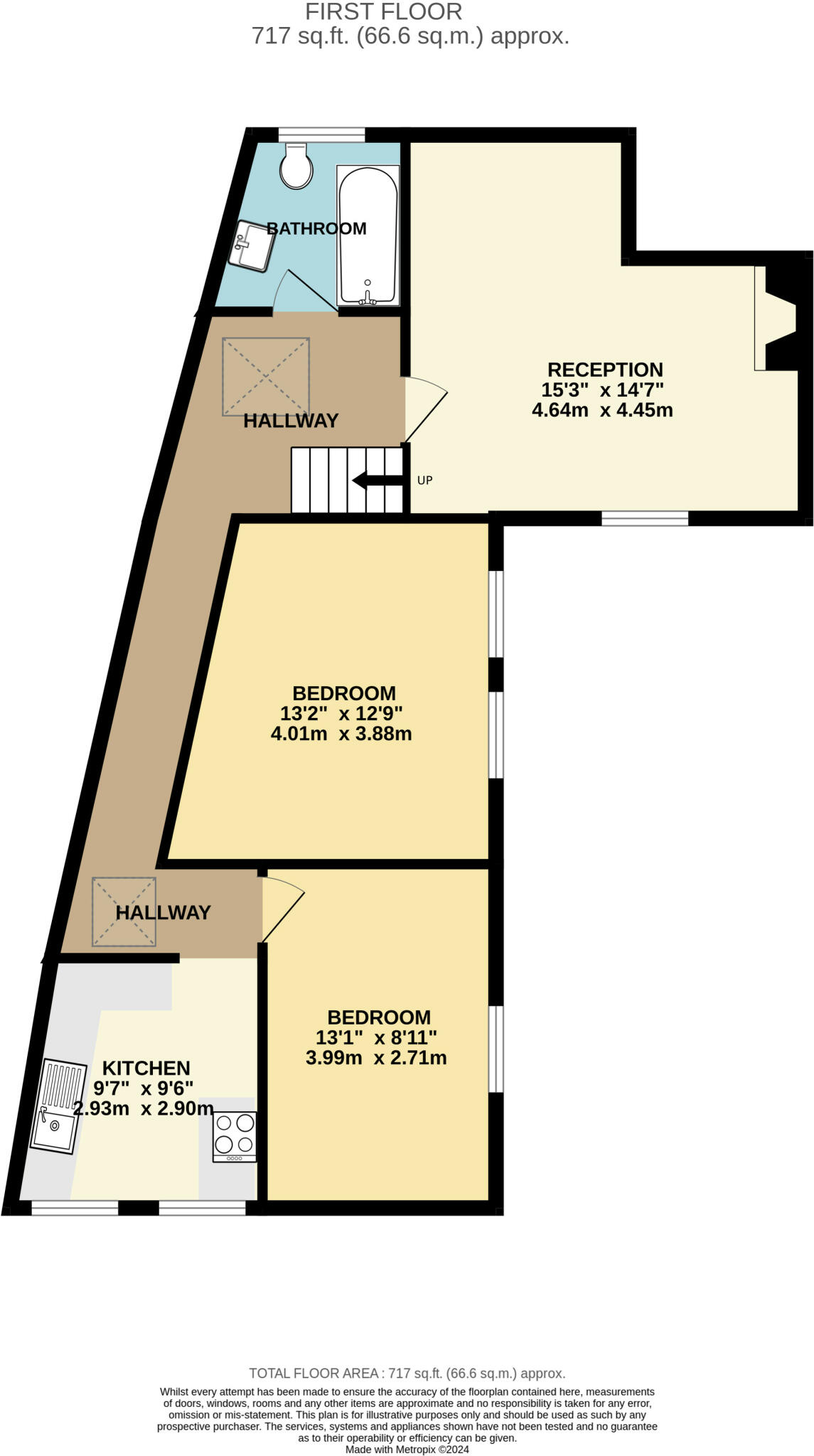
This two-bedroom, one-bathroom property located on Knoll Hill in Stoke Bishop, Bristol offers a blend of modern convenience and a desirable location. The interior has clearly benefitted from recent renovations or updates, as evidenced by the photographs showcasing a modern kitchen and bathroom. The living spaces appear well-maintained and tastefully decorated. The property’s location in Stoke Bishop places it in a sought-after residential area known for its family-friendly atmosphere, proximity to reputable schools such as Stoke Bishop Church of England Primary School (located within a reasonable distance), and access to green spaces. However, the property’s apparent lack of substantial plot size and the fact it is an apartment should be noted and factored into any purchase decision. The list price is competitive with other properties in the area and reflects the overall desirability of the location and condition. A potential buyer should investigate the exact square footage and plot size to fully assess its value.

Therefore, we give this property 6 / 10. *Disclaimer: This is our option and does constitute a recommendation or financial advice. Do your own research. *

Price
7
Condition
8
Location
7
Land
4
Bedrooms
2
Bathrooms
1
Sqft (est)
716.88

The heatmap indicates the level of crime in the area. The color of the heatmap indicates the crime severity and recency.

Metrics Year-on-Year

Average area value
1,248,571.00 £
Increased by 64.32 %
from 759,864.00 £
Est sale value
600,028.56 £
Increased by 81.17 %
from 331,198.56 £
Average area rental value
1,599.00 £/mo
Decreased by 19.61 %
from 1,989.00 £/mo
Est letting value
716.88 £/mo
Unchanged by 0.00 %
from 716.88 £/mo
Est rental Yield
1.54 %
Decreased by 50.96 %
from 3.14 %
Crime Rate
0.00 %
from 0.00 %

Agent Activity

  • CJ Hole created the listing.

Nearby Schools

NameTypeOfstedDistance
Stoke Bishop Church Of England Primary SchoolAcademy ConverterGood1.12 KM
Sea Mills Primary SchoolCommunity SchoolGood1.63 KM
Sea Mills Primary School And Children'S CentreChildren's Centre1.99 KM
Belgrave SchoolOther Independent Special School2.37 KM
Elmlea Infant SchoolAcademy Converter2.41 KM

Images

Picture No. 47 Picture No. 10 Picture No. 13 Picture No. 17 Picture No. 20 Picture No. 03 Picture No. 15 Picture No. 08 Picture No. 16 Picture No. 18 Picture No. 04 Picture No. 06 Picture No. 05 Picture No. 11 Picture No. 14 Picture No. 19 Picture No. 23 Picture No. 24 Picture No. 26 Picture No. 27 Picture No. 29 Picture No. 30 Picture No. 34 Picture No. 39 Picture No. 42 Picture No. 49 Picture No. 50 Picture No. 33 Picture No. 36 Picture No. 40 Picture No. 41 Picture No. 45 Picture No. 46 Picture No. 53

Nearby Streets

NameAverage PriceAverage SqftDistance
Bramble Lane £ 000.00 KM
Bramble Drive £ 1,372,50000.00 KM
Pitch and Pay Park £ 585,00000.00 KM
Cranleigh Gardens £ 895,00000.00 KM
Purple £ 000.00 KM

Nearby Transport

NameNLCTLCDistance
Sea Mills3254SML1.25 KM
Clifton Down3202CFN3.36 KM
Shirehampton3206SHH4.42 KM
Redland3247RDA4.64 KM
Parson Street3246PSN5.76 KM

Nearby Listings

AddressPriceTypeScoreDistance
Knoll Hill, Bristol, BS9 £ 435,000BUY6 / 100.00 KM
Knoll Court, Sneyd Park, Bristol, BS9 £ 365,000BUY7 / 100.04 KM
Knoll Hill, Bristol £ 600,000BUYUnknown0.04 KM
Church Road | Sneyd Park £ 1,295,000BUYUnknown0.09 KM
Ridgewood, Knoll Hill, Sneyd Park, Bristol, BS9 £ 425,000BUY7 / 100.10 KM

Nearby Properties

AddressPriceDistance
Lower Lodge £ 870,0000.08 KM
Upper Lodge £ 75,0000.08 KM
12 Towerleaze £ 340,0000.11 KM
45 Church Road £ 795,0000.12 KM
44 Church Road £ 1,238,0000.12 KM