Stags says ..
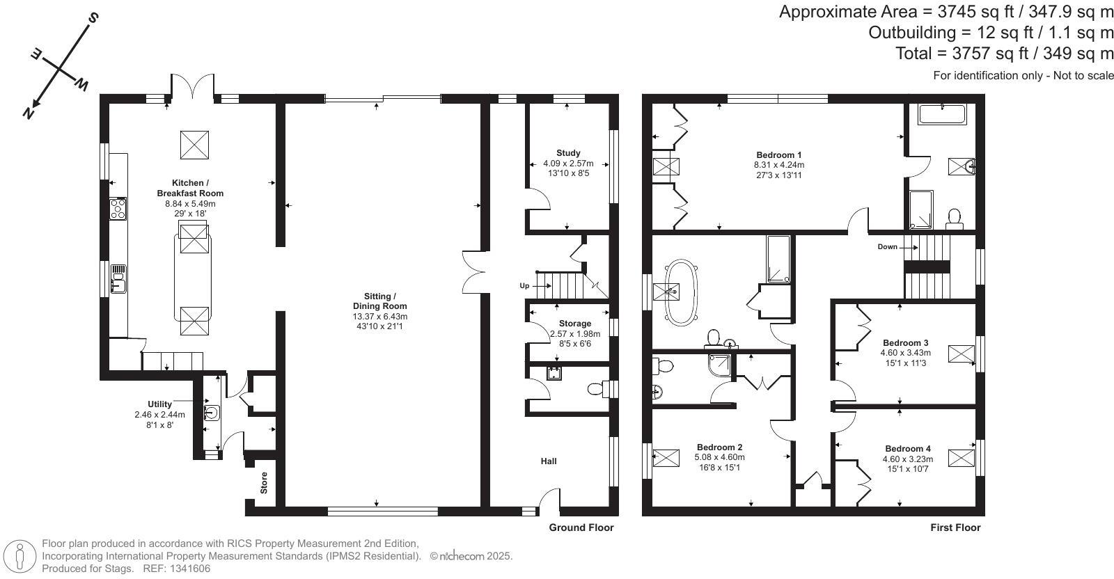
A stylish contemporary country home, offering spacious and versatile accommodation across 3,745 SqFt, set within attractive grounds of approximately 1.65 acres, with open country views and excellent access to M5/Tiverton Parkway, 3.3 miles. Four Bedrooms. Two En Suites. Open-Plan Kitchen/Breakfas...
Property Oracle says ..
Therefore, we give this property 8 / 10. *Disclaimer: This is our option and does constitute a recommendation or financial advice. Do your own research. *
- Price
- 7
- Condition
- 9
- Location
- 7
- Land
- 9
- Bedrooms
- 4
- Bathrooms
- 3
- Sqft (est)
- 2,641.29
The heatmap indicates the level of crime in the area. The color of the heatmap indicates the crime severity and recency.
Metrics Year-on-Year
- Average area value
- 480,469.00 £Decreased by 12.63 %
- Est sale value
- 816,158.61 £Increased by 29.83 %
- Average area rental value
- 1,417.00 £/moIncreased by 34.95 %
- Est letting value
- 0.00 £/mo
- Est rental Yield
- 3.54 %Increased by 54.59 %
- Crime Rate
- 0.00 %
from 549,930.00 £
from 628,627.02 £
from 1,050.00 £/mo
from 0.00 £/mo
from 2.29 %
from 0.00 %
Agent Activity
Stags created the listing.
Nearby Schools
| Name | Type | Ofsted | Distance |
|---|---|---|---|
| Webber'S Church Of England Primary School | Voluntary Aided School | Good | 1.27 KM |
| Burlescombe Church Of England Primary School | Voluntary Controlled School | Good | 3.21 KM |
| Stawley Primary School | Community School | Good | 4.21 KM |
| Sampford Peverell Church Of England Primary School | Academy Converter | Good | 5.25 KM |
| Uffculme School | Academy Converter | Outstanding | 5.67 KM |
Images
Nearby Streets
| Name | Average Price | Average Sqft | Distance |
|---|---|---|---|
| Black Lane | £ 1,000,000 | 0 | 0.00 KM |
| Timewells | £ 425,000 | 0 | 0.00 KM |
| Rocknell Cottages | £ 0 | 0 | 0.00 KM |
| Mount Pleasant | £ 269,950 | 0 | 0.00 KM |
Nearby Transport
| Name | NLC | TLC | Distance |
|---|---|---|---|
| Tiverton Parkway | 3474 | TVP | 4.28 KM |
Nearby Listings
| Address | Price | Type | Score | Distance |
|---|---|---|---|---|
| Holcombe Rogus, Wellington | £ 1,100,000 | BUY | 8 / 10 | 0.00 KM |
| Holcombe Rogus, Wellington | £ 1,300,000 | BUY | Unknown | 0.13 KM |
| Whitebrook Terrace, Holcombe Rogus, Wellington, Devon, TA21 | £ 279,950 | BUY | 5 / 10 | 0.47 KM |
| Whitebrook Terrace, Holcombe Rogus, Wellington, Devon, TA21 | £ 187,500 | BUY | 6 / 10 | 0.52 KM |
| Whitebrook Cottages, Holcombe Rogus, Wellington | £ 259,000 | BUY | 7 / 10 | 0.54 KM |
Nearby Properties
| Address | Price | Distance |
|---|---|---|
| 11 Whitebrook Terrace | £ 220,700 | 0.52 KM |
| 9 Whitebrook Terrace | £ 178,000 | 0.52 KM |
| 14 Whitebrook Terrace | £ 175,000 | 0.54 KM |
| 12 Whitebrook Terrace | £ 197,000 | 0.54 KM |
| Two Gates | £ 330,000 | 0.65 KM |