Broomfield, Sunbury-On-Thames, TW16
By Fine & Country
£ 1,190,000
Reviews
4 out of 5 stars
Fine & Country says ..
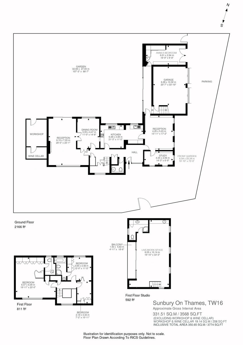
Detached House for sale with 4 bedrooms and separate connecting Annex accommodation, Broomfield, Sunbury-On-Thames
Property Oracle says ..
Broomfield, Sunbury-on-Thames is located in a desirable area, close to excellent schools and transport links. Sunbury station provides convenient access to London Waterloo, and the proximity to several highly-rated schools, such as St Paul’s Catholic College, adds significant value. The property itself is a detached house with a substantial plot size of 3,774 sqft, offering ample outdoor space. The images show a well-maintained garden, suggesting a good level of upkeep. The internal images reveal a property that is in good condition, although the style is somewhat dated, it appears clean and well-maintained, rather than needing renovation. The kitchen and bathrooms, while not modern, appear functional and clean. The large square footage of 7,925 sqft is a significant selling point. Considering the average house price in the area is £729,279 and the average price per sqft is £307, the listed price of £1,190,000 for this property appears high, particularly given the slightly dated interior. However, the large plot size and prime location in Sunbury-on-Thames, known for its desirable properties, could justify a higher price per sqft than the area average. A more thorough comparative market analysis of similar properties in the immediate vicinity with comparable plot sizes and features would be needed to definitively assess the price’s reasonableness.
Therefore, we give this property 8 / 10. *Disclaimer: This is our option and does constitute a recommendation or financial advice. Do your own research. *
- Price
- 7
- Condition
- 8
- Location
- 9
- Land
- 9
- Bedrooms
- 4
- Bathrooms
- 2
- Sqft (est)
- 7,925.00
- Lot (est)
- 3,774.00
The heatmap indicates the level of crime in the area. The color of the heatmap indicates the crime severity and recency.
Metrics Year-on-Year
- Average area value
- 679,929.00 £Decreased by 2.36 %
- Est sale value
- 4,913,500.00 £Decreased by 3.28 %
- Average area rental value
- 2,750.00 £/moIncreased by 2.61 %
- Est letting value
- 15,850.00 £/moUnchanged by 0.00 %
- Est rental Yield
- 4.85 %Increased by 4.98 %
- Crime Rate
- 6.00 %Unchanged by 0.00 %
Agent Activity
Fine & Country created the listing.
Nearby Schools
| Name | Type | Ofsted | Distance |
|---|---|---|---|
| St Paul'S Catholic College | Voluntary Aided School | Outstanding | 0.43 KM |
| St Ignatius Catholic Primary School | Voluntary Aided School | Good | 0.55 KM |
| Sunbury Manor School | Academy Converter | Good | 0.88 KM |
| Kenyngton Manor Primary School & Sure Start Children'S Centre | Children's Centre | 0.94 KM | |
| Kenyngton Manor Primary School | Academy Sponsor Led | Good | 0.94 KM |
Images
Nearby Streets
| Name | Average Price | Average Sqft | Distance |
|---|---|---|---|
| Orchard Road | £ 0 | 0 | 0.00 KM |
| Springfield Grove | £ 0 | 0 | 0.00 KM |
| Manor Lane | £ 390,000 | 0 | 0.00 KM |
| Heath Grove | £ 0 | 0 | 0.00 KM |
| Sutherland Gardens | £ 0 | 0 | 0.00 KM |
Nearby Transport
| Name | NLC | TLC | Distance |
|---|---|---|---|
| Sunbury | 5608 | SUU | 0.43 KM |
| Kempton Park Racecourse | 5678 | KMP | 0.55 KM |
| Upper Halliford | 5613 | UPH | 1.97 KM |
| Feltham | 5559 | FEL | 3.33 KM |
| Shepperton | 5605 | SHP | 4.35 KM |
Nearby Listings
| Address | Price | Type | Score | Distance |
|---|---|---|---|---|
| Broomfield, Sunbury-On-Thames, TW16 | £ 1,190,000 | BUY | 8 / 10 | 0.00 KM |
| Broomfield, Lower Sunbury | £ 1,190,000 | BUY | 8 / 10 | 0.02 KM |
| Lower Sunbury, Surrey, TW16 | £ 330,000 | BUY | Unknown | 0.03 KM |
| Staines Road East, Sunbury-On-Thames | £ 299,950 | BUY | Unknown | 0.06 KM |
| The Yard, Sunbury-on-Thames, TW16 | £ 339,950 | BUY | 5 / 10 | 0.09 KM |
Nearby Properties
| Address | Price | Distance |
|---|---|---|
| 45 Staines Road East | £ 620,000 | 0.08 KM |
| 67 Staines Road East | £ 25,000 | 0.08 KM |
| 2 Priory Close | £ 347,900 | 0.09 KM |
| 6 Priory Close | £ 460,000 | 0.09 KM |
| 8 Priory Close | £ 364,950 | 0.09 KM |