Wensum Valley Close, Norwich, NR6
By Websters Drayton
£ 525,000
Reviews
3 out of 5 stars
Websters Drayton says ..
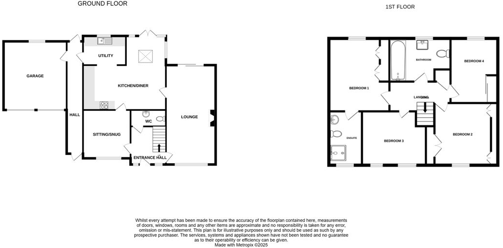
This impressive four-bedroom detached house boasts an enviable location within a sought-after residential area.
Property Oracle says ..
This property is a 4-bedroom, 2-bathroom detached house located in Wensum Valley Close, Norwich. The location benefits from being relatively close to several schools, including Hellesdon High School (rated ‘Good’ by Ofsted) and Kinsale Infant School (also rated ‘Good’). Norwich city centre is also within a reasonable commuting distance. The property itself appears to be in good condition, with a well-maintained exterior and updated interior features. The kitchen has been recently modernised and the property benefits from a garage and a garden. While the plot size is not specified, the garden appears to be of a reasonable size. Given the average house price in the area is £346,152 and the average price per sqft is £282, the asking price of £525,000 seems slightly above average but not unreasonable considering the property’s condition, location, and amenities. Nearby comparable properties support this assessment, although the lack of sqft data for those properties limits a precise comparison.
Therefore, we give this property 7 / 10. *Disclaimer: This is our option and does constitute a recommendation or financial advice. Do your own research. *
- Price
- 7
- Condition
- 8
- Location
- 8
- Land
- 7
- Bedrooms
- 4
- Bathrooms
- 2
- Sqft (est)
- 1,150.00
The heatmap indicates the level of crime in the area. The color of the heatmap indicates the crime severity and recency.
Metrics Year-on-Year
- Average area value
- 417,969.00 £Increased by 36.61 %
- Est sale value
- 430,100.00 £Increased by 1.91 %
- Average area rental value
- 1,251.00 £/moIncreased by 48.05 %
- Est letting value
- 1,150.00 £/moUnchanged by 0.00 %
- Est rental Yield
- 3.59 %Increased by 8.46 %
- Crime Rate
- 1.00 %Unchanged by 0.00 %
Agent Activity
Websters Drayton created the listing.
Nearby Schools
| Name | Type | Ofsted | Distance |
|---|---|---|---|
| Hellesdon High School | Academy Converter | Good | 1.30 KM |
| Kinsale Infant School | Community School | Good | 1.63 KM |
| Kinsale Junior School | Academy Converter | 1.63 KM | |
| Banks House School | Other Independent Special School | 1.83 KM | |
| Valley Primary Academy | Academy Sponsor Led | Requires improvement | 1.86 KM |
Images
Nearby Streets
| Name | Average Price | Average Sqft | Distance |
|---|---|---|---|
| Pleasant Close | £ 240,000 | 0 | 0.00 KM |
| Saint Andrews Road | £ 335,000 | 0 | 0.00 KM |
| Beech Close | £ 0 | 0 | 0.00 KM |
| Leewood Crescent | £ 0 | 0 | 0.00 KM |
| Gunton Lane | £ 0 | 0 | 0.00 KM |
Nearby Transport
| Name | NLC | TLC | Distance |
|---|---|---|---|
| Norwich | 7309 | NRW | 7.67 KM |
Nearby Listings
| Address | Price | Type | Score | Distance |
|---|---|---|---|---|
| Wensum Valley Close, Norwich, NR6 | £ 525,000 | BUY | 7 / 10 | 0.00 KM |
| Wensum Valley Close, Norwich | £ 590,000 | BUY | 7 / 10 | 0.05 KM |
| Wensum Valley Close, Hellesdon, Norwich, Norfolk, NR6 | £ 550,000 | BUY | 6 / 10 | 0.27 KM |
| Low Road, Hellesdon, Norwich, Norfolk, NR6 | £ 675,000 | BUY | 7 / 10 | 0.55 KM |
| Low Road, Hellesdon | £ 650,000 | BUY | 7 / 10 | 0.56 KM |
Nearby Properties
| Address | Price | Distance |
|---|---|---|
| 48 Wensum Valley Close | £ 268,500 | 0.08 KM |
| 21 Wensum Valley Close | £ 377,500 | 0.08 KM |
| 12 Wensum Valley Close | £ 299,000 | 0.08 KM |
| 56 Wensum Valley Close | £ 365,000 | 0.08 KM |
| 50 Wensum Valley Close | £ 112,500 | 0.08 KM |