Sunderland Road, Forest Hill, London, SE23
PE

Sunderland Road, Forest Hill, London, SE23

By Pedder

£ 600,000

Reviews

3 out of 5 stars

Pedder says ..

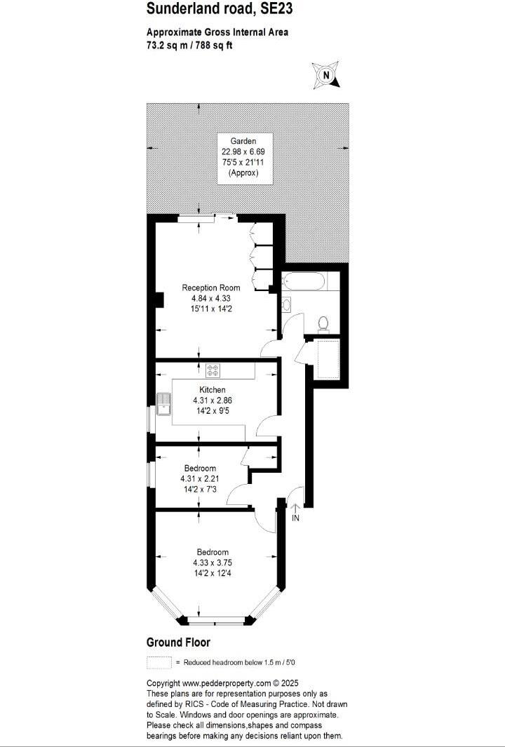
An amazing two-bedroom ground-floor period conversion for sale on Sunderland Road, with direct access to a 75ft west-facing private rear garden and a share of the freehold. This wonderful home comprises two bedrooms, the master featuring a large bay window, a modern bathroom suite, a spa...

Property Oracle says ..

This is a well-presented 2-bedroom flat on Sunderland Road, Forest Hill. The property boasts a modern interior, a good-sized garden, and proximity to local amenities and transport links. The location is ideal for families and commuters. While the list price is slightly above the average price per square foot for the area, the overall condition and desirable features of the property make it a worthwhile consideration. The property is conveniently located near Forest Hill station and several schools.

Therefore, we give this property 7 / 10. *Disclaimer: This is our option and does constitute a recommendation or financial advice. Do your own research. *

Price
6
Condition
8
Location
7
Land
7
Bedrooms
2
Bathrooms
1
Sqft (est)
2,290.13

The heatmap indicates the level of crime in the area. The color of the heatmap indicates the crime severity and recency.

Metrics Year-on-Year

Average area value
552,857.00 £
Decreased by 5.99 %
from 588,088.00 £
Est sale value
1,742,788.93 £
Increased by 29.42 %
from 1,346,596.44 £
Average area rental value
1,921.00 £/mo
Increased by 1.64 %
from 1,890.00 £/mo
Est letting value
4,580.26 £/mo
Increased by 100.00 %
from 2,290.13 £/mo
Est rental Yield
4.17 %
Increased by 8.03 %
from 3.86 %
Crime Rate
1.00 %
Unchanged by 0.00 %
from 1.00 %

Agent Activity

  • Pedder created the listing.

Nearby Schools

NameTypeOfstedDistance
Rose House Montessori SchoolOther Independent School0.17 KM
Perrymount Primary SchoolCommunity SchoolGood0.31 KM
Allenby Tutorial TrustMiscellaneous0.45 KM
St George'S Cofe Primary SchoolAcademy Converter0.50 KM
Dalmain Primary SchoolCommunity SchoolGood0.64 KM

Images

IMG_9404b-1500x1000.jpg IMG_9381b-1500x1000.jpg IMG_9407bb-1500x1000.jpg IMG_9393b-1500x1000.jpg IMG_9386b-1500x1000.jpg IMG_9402b--1500x1000.jpg IMG_9396b-1500x1000.jpg IMG_9407b-1500x1000.jpg IMG_9383bb-1500x1000.jpg IMG_9398b-1500x1000.jpg IMG_9374b-1500x1000.jpg IMG_9377b-1500x1000.jpg IMG_9388b-1500x1000.jpg IMG_9391b-1500x1000.jpg

Nearby Streets

NameAverage PriceAverage SqftDistance
King Garth Mews £ 674,97500.00 KM
Churchwood Gardens £ 350,00000.00 KM
One Tree Hill £ 000.00 KM
Desmond Tutu Drive £ 360,00000.00 KM
Carters Lane £ 000.00 KM

Nearby Transport

NameNLCTLCDistance
Forest Hill5362FOH0.60 KM
Honor Oak Park5418HPA1.18 KM
Sydenham5437SYD1.55 KM
Crofton Park5078CFT2.13 KM
Lower Sydenham5053LSY2.29 KM

Nearby Listings

AddressPriceTypeScoreDistance
Sunderland Road, Forest Hill, London, SE23 £ 600,000BUY7 / 100.00 KM
Sunderland Road, Forest Hill, London, SE23 £ 800,000BUY7 / 100.05 KM
Sunderland Road, Forest Hill, London, SE23 £ 280,000BUY6 / 100.07 KM
Sunderland Road, Forest Hill, London, SE23 £ 2,350,000BUYUnknown0.09 KM
Sunderland Road, SE23 £ 400,000BUY7 / 100.10 KM

Nearby Properties

AddressPriceDistance
32b Sunderland Road £ 801,0000.01 KM
50 Sunderland Road £ 842,5000.01 KM
32c Sunderland Road £ 500,0000.01 KM
40 Sunderland Road £ 1,305,0000.01 KM
26a Sunderland Road £ 650,0000.01 KM