Bowood Close, Ingleby Barwick, Stockton-On-Tees
By Robinsons
£ 290,000
Reviews
3 out of 5 stars
Robinsons says ..
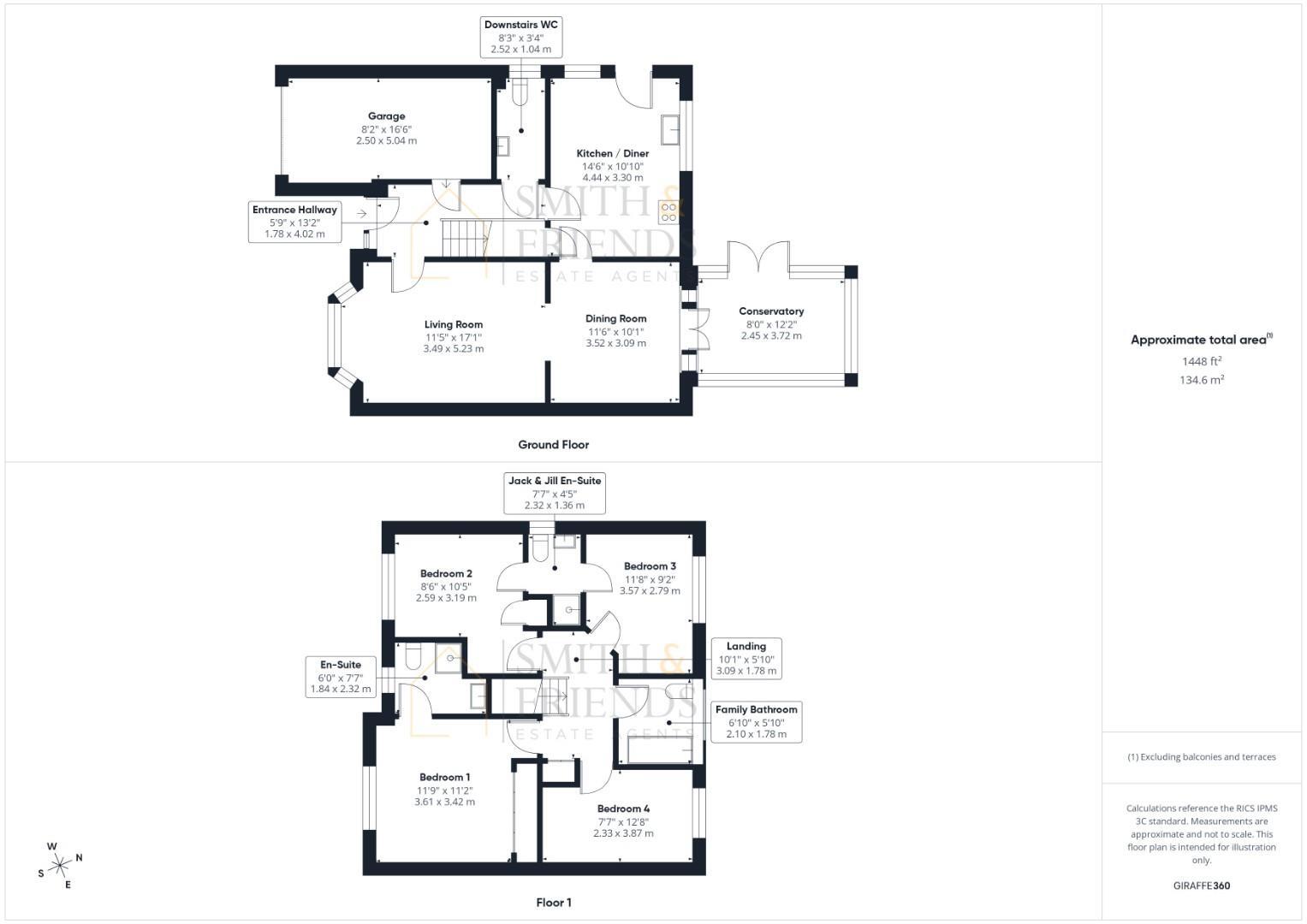
*** NO CHAIN SALE *** NEW TO THE MARKET, with Smith & Friends this lovely four bedroom / three bathroom detached house in the sought after Broomhill area of Ingleby Barwick. Positioned on a good sized plot with a short walk to local shops, bars and restaurants, excellent schools for all ...
Property Oracle says ..
This is a detached property in Ingleby Barwick, Stockton-on-Tees, featuring four bedrooms and three bathrooms. The house appears to be well-maintained and in good condition, with a modern kitchen and bathrooms. It benefits from a garden, driveway, and garage, offering ample outdoor space and parking. The property’s location is ideal for families, with several schools nearby, including St Francis Of Assisi Church Of England Primary School and Myton Park Primary School (Ofsted: Outstanding). The listing price of £290,000 seems reasonable compared to the average price of similar properties in the area (£345,111). Overall, this property presents a good opportunity for potential buyers, especially families seeking a comfortable and well-located home.
Therefore, we give this property 7 / 10. *Disclaimer: This is our option and does constitute a recommendation or financial advice. Do your own research. *
- Price
- 8
- Condition
- 7
- Location
- 7
- Land
- 6
- Bedrooms
- 4
- Bathrooms
- 3
The heatmap indicates the level of crime in the area. The color of the heatmap indicates the crime severity and recency.
Metrics Year-on-Year
- Average area value
- 345,111.00 £Increased by 23.16 %
- Average area rental value
- 779.00 £/moDecreased by 17.83 %
- Est rental Yield
- 2.71 %Decreased by 33.25 %
- Crime Rate
- 6.00 %Unchanged by 0.00 %
Agent Activity
Robinsons created the listing.
Nearby Schools
| Name | Type | Ofsted | Distance |
|---|---|---|---|
| St Francis Of Assisi Church Of England Primary School | Academy Converter | 0.20 KM | |
| Myton Park Primary School | Community School | Outstanding | 0.81 KM |
| All Saints Church Of England Academy | Academy Converter | Outstanding | 0.82 KM |
| Barley Fields Primary | Community School | Good | 1.18 KM |
| Barley Fields Cc | Children's Centre | 1.19 KM |
Images
Nearby Streets
| Name | Average Price | Average Sqft | Distance |
|---|---|---|---|
| The Orchard | £ 240,306 | 0 | 0.00 KM |
| Broom Hill Avenue | £ 262,500 | 0 | 0.00 KM |
| Hilden Pk | £ 0 | 0 | 0.00 KM |
| Hill Way | £ 0 | 0 | 0.00 KM |
| Hillcott Close | £ 199,950 | 0 | 0.00 KM |
Nearby Transport
| Name | NLC | TLC | Distance |
|---|---|---|---|
| Eaglescliffe | 7916 | EAG | 3.29 KM |
| Thornaby | 7976 | TBY | 4.28 KM |
| Allens West | 7520 | ALW | 4.55 KM |
| Stockton | 7975 | STK | 4.91 KM |
| Yarm | 7917 | YRM | 4.96 KM |
Nearby Listings
| Address | Price | Type | Score | Distance |
|---|---|---|---|---|
| Bowood Close, Ingleby Barwick, Stockton-On-Tees | £ 290,000 | BUY | 7 / 10 | 0.00 KM |
| Bowood Close, Ingleby Barwick | £ 264,950 | BUY | 7 / 10 | 0.05 KM |
| Bowood Close, Ingleby Barwick | £ 310,000 | BUY | 6 / 10 | 0.05 KM |
| The Pasture, Ingleby Barwick | £ 230,000 | BUY | 7 / 10 | 0.07 KM |
| Little Pasture, Ingleby Barwick, Stockton-On-Tees | £ 255,000 | BUY | 6 / 10 | 0.12 KM |
Nearby Properties
| Address | Price | Distance |
|---|---|---|
| 5 Broadlands | £ 176,500 | 0.06 KM |
| 18 Broadlands | £ 265,000 | 0.06 KM |
| 11 Broadlands | £ 178,000 | 0.06 KM |
| 14 Little Pasture | £ 186,500 | 0.07 KM |
| 7 Little Pasture | £ 175,000 | 0.07 KM |