HA
The Links, Chatham, ME5
By Haus Estate Agents
£ 325,000
Reviews
3 out of 5 stars
Haus Estate Agents says ..
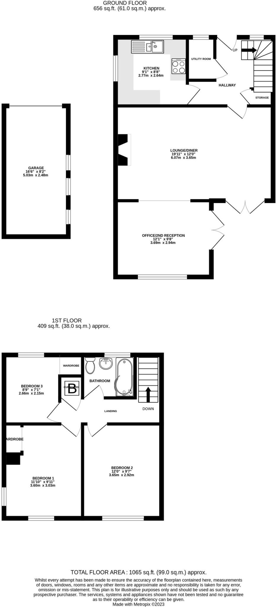
This 1970s extended semi-detached family home is situated in the popular Town of Chatham in Medway, Kent. The property features three bedrooms and a through lounge/diner opening up to a second reception, providing a modern and bright living space for a family. The property also boasts a utilit...
Property Oracle says ..
Therefore, we give this property 6 / 10. *Disclaimer: This is our option and does constitute a recommendation or financial advice. Do your own research. *
- Price
- 6
- Condition
- 7
- Location
- 7
- Land
- 7
- Bedrooms
- 3
- Bathrooms
- 1
- Sqft (est)
- 861.11
The heatmap indicates the level of crime in the area. The color of the heatmap indicates the crime severity and recency.
Metrics Year-on-Year
- Average area value
- 272,750.00 £Decreased by 5.37 %
- Est sale value
- 351,332.88 £Increased by 13.97 %
- Average area rental value
- 1,449.00 £/moIncreased by 2.04 %
- Est letting value
- 1,722.22 £/moIncreased by 100.00 %
- Est rental Yield
- 6.38 %Increased by 7.95 %
- Crime Rate
- 4.00 %Unchanged by 0.00 %
from 288,223.00 £
from 308,277.38 £
from 1,420.00 £/mo
from 861.11 £/mo
from 5.91 %
from 4.00 %
Agent Activity
Haus Estate Agents created the listing.
Nearby Schools
| Name | Type | Ofsted | Distance |
|---|---|---|---|
| Kingfisher Children'S Centre | Children's Centre | 0.66 KM | |
| Kingfisher Community Primary School | Academy Sponsor Led | Good | 0.66 KM |
| The Victory Academy | Academy Sponsor Led | Good | 0.90 KM |
| Wayfield Children'S Centre | Children's Centre | 0.91 KM | |
| Luton Primary School | Community School | Outstanding | 1.03 KM |
Images
Nearby Streets
| Name | Average Price | Average Sqft | Distance |
|---|---|---|---|
| Greenbank | £ 0 | 0 | 0.00 KM |
| Cameron Close | £ 312,500 | 0 | 0.00 KM |
| Lytham Close | £ 0 | 0 | 0.00 KM |
| Wayfield Road | £ 0 | 0 | 0.00 KM |
| Fisher Road | £ 290,000 | 0 | 0.00 KM |
Nearby Transport
| Name | NLC | TLC | Distance |
|---|---|---|---|
| Chatham | 5199 | CTM | 2.66 KM |
| Gillingham (Kent) | 5169 | GLM | 2.87 KM |
| Rochester | 5203 | RTR | 3.94 KM |
| Strood (Kent) | 5191 | SOO | 5.58 KM |
| Rainham (Kent) | 5177 | RAI | 8.09 KM |
Nearby Listings
| Address | Price | Type | Score | Distance |
|---|---|---|---|---|
| The Links, Chatham, ME5 | £ 325,000 | BUY | 6 / 10 | 0.00 KM |
| Hazel Grove, Chatham | £ 325,000 | BUY | 7 / 10 | 0.09 KM |
| Crestway, Chatham | £ 260,000 | BUY | 6 / 10 | 0.11 KM |
| Bankside, Chatham, Kent | £ 290,000 | BUY | Unknown | 0.12 KM |
| Bankside, Chatham, Kent | £ 192,000 | BUY | Unknown | 0.12 KM |
Nearby Properties
| Address | Price | Distance |
|---|---|---|
| 41 Downsview | £ 134,500 | 0.11 KM |
| 25 Brambledown | £ 140,000 | 0.11 KM |
| 11 Brambledown | £ 217,000 | 0.11 KM |
| 23 Brambledown | £ 165,000 | 0.11 KM |
| 1 Brambledown | £ 214,000 | 0.11 KM |