Buxton Road, Hazel Grove, SK7
By Leighton Snow
£ 325,000
Reviews
3 out of 5 stars
Leighton Snow says ..
A fabulous end-terrace home offering spacious and well-presented accommodation.
Property Oracle says ..
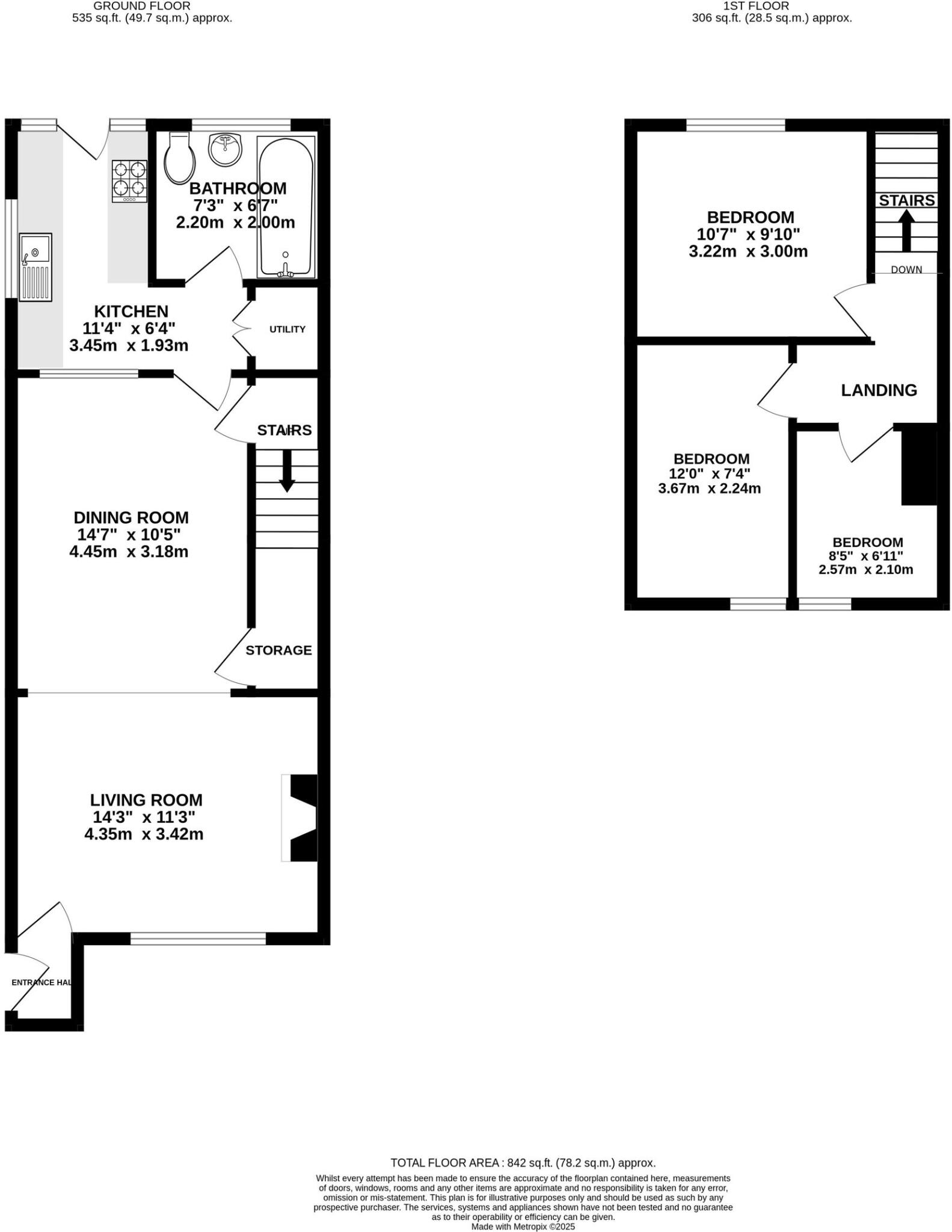
The property is located on Buxton Road in Hazel Grove, Stockport, Greater Manchester. Transportation links are accessible and several schools with “Good” Ofsted ratings are within a reasonable distance. The property appears to be in good condition, with a modern kitchen and well-maintained interior. The property includes a garden with a paved patio area and artificial grass, providing a usable outdoor space. The price seems reasonable when considering the condition and location.
Therefore, we give this property 7 / 10. *Disclaimer: This is our option and does constitute a recommendation or financial advice. Do your own research. *
- Price
- 7
- Condition
- 8
- Location
- 7
- Land
- 7
- Bedrooms
- 3
- Bathrooms
- 1
- Sqft (est)
- 681.90
The heatmap indicates the level of crime in the area. The color of the heatmap indicates the crime severity and recency.
Metrics Year-on-Year
- Average area value
- 600,417.00 £Increased by 40.45 %
- Est sale value
- 261,849.60 £Increased by 2.67 %
- Average area rental value
- 1,815.00 £/moIncreased by 55.39 %
- Est letting value
- 681.90 £/moUnchanged by 0.00 %
- Est rental Yield
- 3.63 %Increased by 10.67 %
- Crime Rate
- 0.00 %
Agent Activity
Leighton Snow created the listing.
Nearby Schools
| Name | Type | Ofsted | Distance |
|---|---|---|---|
| Torkington Primary School | Community School | Good | 1.27 KM |
| Norbury Court School | Other Independent School | Good | 1.96 KM |
| Norbury Hall Primary School | Community School | Good | 2.44 KM |
| St Simon'S Catholic Primary School | Voluntary Aided School | Good | 2.58 KM |
| Hazel Grove Primary School | Community School | Good | 2.78 KM |
Images
Nearby Streets
| Name | Average Price | Average Sqft | Distance |
|---|---|---|---|
| Footpath 108HGB | £ 1,500,000 | 0 | 0.00 KM |
| Bath Close | £ 325,000 | 0 | 0.00 KM |
| Ashton Place | £ 170,000 | 0 | 0.00 KM |
| Brook Lane | £ 0 | 0 | 0.00 KM |
| Ayr Close | £ 450,000 | 0 | 0.00 KM |
Nearby Transport
| Name | NLC | TLC | Distance |
|---|---|---|---|
| Middlewood | 2971 | MDL | 1.84 KM |
| Hazel Grove | 2768 | HAZ | 2.86 KM |
| Rose Hill Marple | 2873 | RSH | 3.95 KM |
| Poynton | 2874 | PYT | 4.47 KM |
| Romiley | 2833 | RML | 5.22 KM |
Nearby Listings
| Address | Price | Type | Score | Distance |
|---|---|---|---|---|
| Buxton Road, Hazel Grove, SK7 | £ 325,000 | BUY | 7 / 10 | 0.00 KM |
| Buxton Road, Stockport, SK7 6NA | £ 320,000 | BUY | Unknown | 0.00 KM |
| Red Row, Hazel Grove | £ 410,000 | BUY | Unknown | 0.36 KM |
| The Paddocks, Red Row, Hazel Grove | £ 425,000 | BUY | 7 / 10 | 0.36 KM |
| Red Row, Hazel Grove | £ 410,000 | BUY | 7 / 10 | 0.36 KM |
Nearby Properties
| Address | Price | Distance |
|---|---|---|
| 8 Park View | £ 125,000 | 0.23 KM |
| 2 Park View | £ 180,000 | 0.23 KM |
| 139 Buxton Road | £ 435,000 | 0.59 KM |
| 135 Buxton Road | £ 295,000 | 0.59 KM |
| 148 Buxton Road | £ 199,950 | 0.59 KM |