PA
Gertrude Street, Houghton le Spring , Houghton Le Spring, Tyne and Wear, DH4 4EA
By Pattinson Estate Agents
£ 99,950
Reviews
3 out of 5 stars
Pattinson Estate Agents says ..
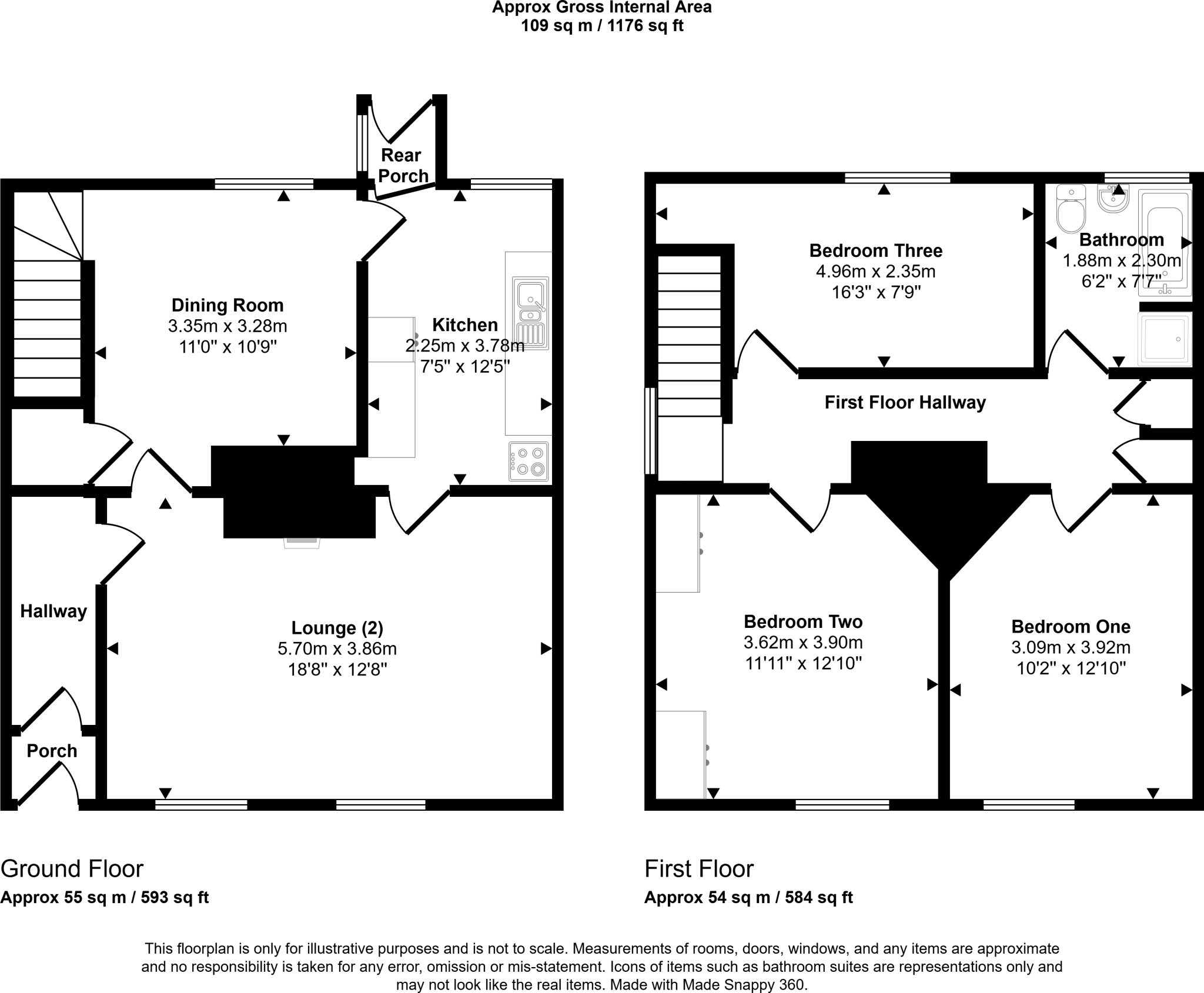
**END OF TERRACE HOME**PREVIOUSLY TWO FLATS**THREE BEDROOMS**TWO RECEPTION ROOMS**GARAGE**PRIVATE REAR GARDEN & YARD**NO UPPER CHAIN** Pattinson Estate Agents are delighted to welcome to the market this spacious end of terrace home, which was previously two flats. Positioned on the popular...
Property Oracle says ..
Therefore, we give this property 6 / 10. *Disclaimer: This is our option and does constitute a recommendation or financial advice. Do your own research. *
- Price
- 8
- Condition
- 4
- Location
- 7
- Land
- 7
- Bedrooms
- 3
- Bathrooms
- 1
- Sqft (est)
- 900.32
The heatmap indicates the level of crime in the area. The color of the heatmap indicates the crime severity and recency.
Metrics Year-on-Year
- Average area value
- 169,990.00 £Increased by 19.69 %
- Est sale value
- 156,655.68 £Increased by 16.78 %
- Average area rental value
- 845.00 £/moIncreased by 3.17 %
- Est letting value
- 0.00 £/mo
- Est rental Yield
- 5.97 %Decreased by 13.73 %
- Crime Rate
- 15.00 %Unchanged by 0.00 %
from 142,027.00 £
from 134,147.68 £
from 819.00 £/mo
from 0.00 £/mo
from 6.92 %
from 15.00 %
Agent Activity
Pattinson Estate Agents created the listing.
Nearby Schools
| Name | Type | Ofsted | Distance |
|---|---|---|---|
| Newbottle Primary Academy | Academy Converter | Good | 0.15 KM |
| Burnside Academy Inspires | Academy Converter | Good | 0.67 KM |
| Kepier | Academy Converter | Requires improvement | 1.40 KM |
| Houghton Le Spring Nursery School | Local Authority Nursery School | Outstanding | 1.79 KM |
| Sunderland Children'S Centre Houghton | Children's Centre Linked Site | 1.79 KM |
Images
Nearby Streets
| Name | Average Price | Average Sqft | Distance |
|---|---|---|---|
| Chester Street | £ 0 | 0 | 0.00 KM |
| Lumley Street | £ 0 | 0 | 0.00 KM |
| Greeve Mews | £ 0 | 0 | 0.00 KM |
| A182 | £ 499,950 | 0 | 0.00 KM |
| Holmlands Road | £ 0 | 0 | 0.00 KM |
Nearby Listings
| Address | Price | Type | Score | Distance |
|---|---|---|---|---|
| Gertrude Street, Houghton le Spring , Houghton Le Spring, Tyne and Wear, DH4 4EA | £ 99,950 | BUY | 6 / 10 | 0.00 KM |
| Gertrude Street, Houghton Le Spring, Tyne and Wear, DH4 4EA | £ 45,000 | BUY | Unknown | 0.00 KM |
| Gertrude Street, Houghton Le Spring, Tyne and Wear, DH4 | £ 38,000 | BUY | 5 / 10 | 0.06 KM |
| Gertrude Street, Houghton le Spring | £ 80,000 | BUY | Unknown | 0.07 KM |
| Gertrude Street, Houghton le Spring, Tyne and Wear, DH4 4EA | £ 70,000 | BUY | 6 / 10 | 0.07 KM |
Nearby Properties
| Address | Price | Distance |
|---|---|---|
| 40 Gertrude Street | £ 64,000 | 0.05 KM |
| 13 Gertrude Street | £ 80,000 | 0.05 KM |
| 2 Gertrude Street | £ 57,000 | 0.05 KM |
| 32 Gertrude Street | £ 75,000 | 0.05 KM |
| 38 Gertrude Street | £ 38,000 | 0.05 KM |