Goldin Lemcke says ..
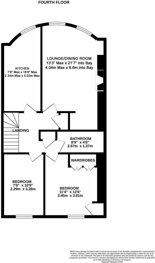
A beautifully presented two-bedroom fourth (top) floor flat, set within this stunning Grade I listed building situated on one of Hove’s most prestigious seafront squares. The property enjoys sole use of the roof terrace with far-reaching west-facing views across Brunswick Square and out to sea, a...
Property Oracle says ..
Therefore, we give this property 7 / 10. *Disclaimer: This is our option and does constitute a recommendation or financial advice. Do your own research. *
- Price
- 6
- Condition
- 6
- Location
- 9
- Land
- 7
- Bedrooms
- 2
- Bathrooms
- 1
- Sqft (est)
- 675.54
The heatmap indicates the level of crime in the area. The color of the heatmap indicates the crime severity and recency.
Metrics Year-on-Year
- Average area value
- 454,808.00 £Decreased by 9.50 %
- Est sale value
- 427,616.82 £Increased by 10.47 %
- Average area rental value
- 1,996.00 £/moIncreased by 22.91 %
- Est letting value
- 1,351.08 £/moIncreased by 100.00 %
- Est rental Yield
- 5.27 %Increased by 35.82 %
- Crime Rate
- 10.00 %Unchanged by 0.00 %
from 502,528.00 £
from 387,084.42 £
from 1,624.00 £/mo
from 675.54 £/mo
from 3.88 %
from 10.00 %
Agent Activity
Goldin Lemcke created the listing.
Nearby Schools
| Name | Type | Ofsted | Distance |
|---|---|---|---|
| Brunswick Primary School | Community School | Good | 0.53 KM |
| Brighton Girls Gdst | Other Independent School | 0.72 KM | |
| St Mary Magdalen Catholic Primary School | Voluntary Aided School | Good | 1.00 KM |
| The Montessori Place | Other Independent School | Outstanding | 1.07 KM |
| Brighton Hove And Sussex Sixth Form College | Further Education | Outstanding | 1.32 KM |
Images
Nearby Streets
| Name | Average Price | Average Sqft | Distance |
|---|---|---|---|
| Kerrison Mews | £ 0 | 0 | 0.00 KM |
| Dudley Mews | £ 617,500 | 0 | 0.00 KM |
| Cambridge Road | £ 481,238 | 0 | 0.00 KM |
| Western Street | £ 0 | 0 | 0.00 KM |
| Norfolk Terrace | £ 263,750 | 0 | 0.00 KM |
Nearby Transport
| Name | NLC | TLC | Distance |
|---|---|---|---|
| Hove | 5273 | HOV | 1.82 KM |
| Brighton | 5268 | BTN | 1.94 KM |
| Preston Park | 5285 | PRP | 2.42 KM |
| London Road (Brighton) | 5281 | LRB | 2.76 KM |
| Aldrington | 5280 | AGT | 3.13 KM |
Nearby Listings
| Address | Price | Type | Score | Distance |
|---|---|---|---|---|
| Brunswick Square, Hove | £ 475,000 | BUY | 7 / 10 | 0.00 KM |
| Brunswick Square, Hove, BN3 | £ 210,000 | BUY | 5 / 10 | 0.01 KM |
| Brunswick Square, Hove, BN3 | £ 300,000 | BUY | 7 / 10 | 0.02 KM |
| Brunswick Square, Hove | £ 200,000 | BUY | 6 / 10 | 0.02 KM |
| Brunswick Square, Hove, East Sussex, BN3 | £ 300,000 | BUY | 6 / 10 | 0.04 KM |
Nearby Properties
| Address | Price | Distance |
|---|---|---|
| 18 Brunswick Square | £ 625,000 | 0.01 KM |
| 2a Brunswick Street East | £ 399,950 | 0.04 KM |
| 24 Brunswick Street East | £ 212,500 | 0.04 KM |
| 32 Brunswick Street East | £ 60,000 | 0.04 KM |
| 29 Brunswick Street East | £ 1,000,000 | 0.04 KM |