Gilson Bailey says ..
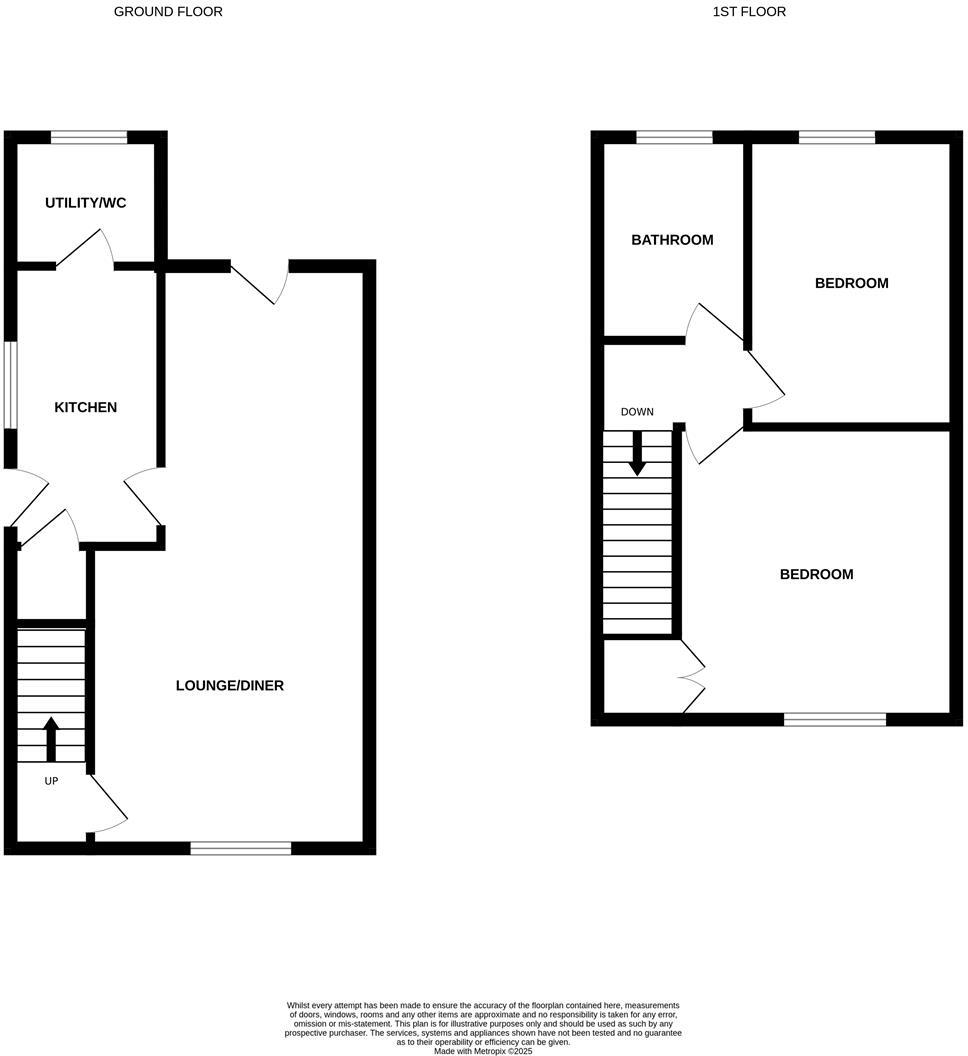
**EXTENDED SEMI DETACHED HOUSE OFFERED WITH NO ONWARD CHAIN** Gilson Bailey are delighted to offer this well-presented two-bedroom semi-detached home, tucked away in a quiet cul-de-sac to the east of Norwich. Enjoying a peaceful position yet within easy reach of local amenities and the city centr...
Property Oracle says ..
This is a two-bedroom semi-detached house on Aldryche Road, Norwich. It features a modern kitchen and bathroom, a good-sized garden with a shed and greenhouse. While generally in good order, some areas could benefit from updating. The property is located near local schools and amenities, making it suitable for families. The asking price of £270,000 appears reasonable given the location, condition, and size of the property.
Therefore, we give this property 6 / 10. *Disclaimer: This is our option and does constitute a recommendation or financial advice. Do your own research. *
- Price
- 7
- Condition
- 6
- Location
- 7
- Land
- 7
- Bedrooms
- 2
- Bathrooms
- 1
- Sqft (est)
- 769.50
The heatmap indicates the level of crime in the area. The color of the heatmap indicates the crime severity and recency.
Metrics Year-on-Year
- Average area value
- 280,714.00 £Increased by 16.69 %
- Est sale value
- 270,864.00 £Increased by 24.82 %
- Average area rental value
- 1,200.00 £/moIncreased by 4.08 %
- Est letting value
- 769.50 £/moUnchanged by 0.00 %
- Est rental Yield
- 5.13 %Decreased by 10.78 %
- Crime Rate
- 4.00 %Unchanged by 0.00 %
Agent Activity
Gilson Bailey created the listing.
Nearby Schools
| Name | Type | Ofsted | Distance |
|---|---|---|---|
| Lionwood Junior School | Academy Converter | Good | 0.70 KM |
| Thorpe Hamlet & Heartsease Children'S Centre | Children's Centre | 0.70 KM | |
| Heartsease Primary Academy | Academy Converter | Outstanding | 0.82 KM |
| The Open Academy | Academy Sponsor Led | Requires improvement | 0.93 KM |
| Lionwood Infant And Nursery School | Academy Converter | Outstanding | 1.09 KM |
Images
Nearby Streets
| Name | Average Price | Average Sqft | Distance |
|---|---|---|---|
| Vancouver Road | £ 0 | 0 | 0.00 KM |
| Harvey Close | £ 362,500 | 0 | 0.00 KM |
| Saint Williams Way | £ 0 | 0 | 0.00 KM |
| Lime Tree Avenue | £ 265,000 | 0 | 0.00 KM |
| Orchard Close | £ 300,833 | 0 | 0.00 KM |
Nearby Transport
| Name | NLC | TLC | Distance |
|---|---|---|---|
| Norwich | 7309 | NRW | 2.05 KM |
| Salhouse | 7318 | SAH | 8.75 KM |
Nearby Listings
| Address | Price | Type | Score | Distance |
|---|---|---|---|---|
| Aldryche Road, Norwich | £ 270,000 | BUY | 6 / 10 | 0.00 KM |
| 16 Lloyd Road, Norwich, Norfolk NR1 4LB | £ 170,000 | BUY | Unknown | 0.07 KM |
| 16 Lloyd Road, Norwich, Norfolk NR1 4LB | £ 160,000 | BUY | 6 / 10 | 0.07 KM |
| Timothy Close, Norwich, Norfolk, NR1 | £ 335,000 | BUY | 7 / 10 | 0.10 KM |
| Hilary Avenue, Norwich, NR1 | £ 250,000 | BUY | 6 / 10 | 0.11 KM |
Nearby Properties
| Address | Price | Distance |
|---|---|---|
| 10 Aldryche Road | £ 148,500 | 0.08 KM |
| 3 Aldryche Road | £ 254,000 | 0.08 KM |
| 30 Aldryche Road | £ 375,000 | 0.08 KM |
| 33 Aldryche Road | £ 145,000 | 0.08 KM |
| 21 Aldryche Road | £ 273,700 | 0.08 KM |