Hunter Road, Cannock, Staffordshire, WS11
By Boot & Son Chartered Surveyors
£ 140,000
Reviews
2 out of 5 stars
Boot & Son Chartered Surveyors says ..
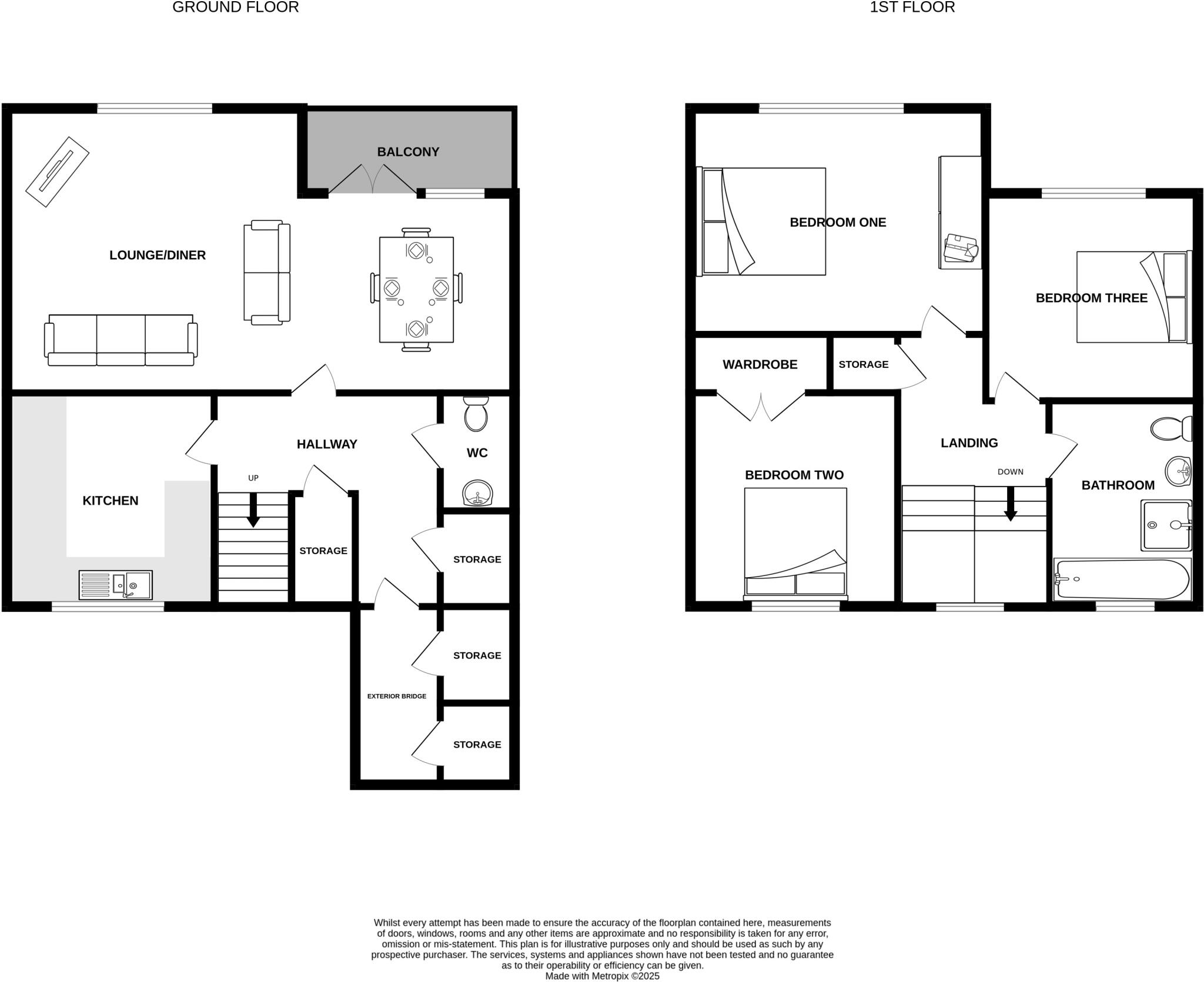
Located just a short walk from the town centre, this WELL PRESENTED three bedroom maisonette is perfect for FIRST TIME BUYERS OR INVESTORS
Property Oracle says ..
The property is a 3-bedroom maisonette located on Hunter Road in Cannock, Staffordshire. It’s within close proximity to St Mary’s Catholic Primary School (0.11 KM) and Chase Grammar School (0.22 KM), both rated ‘Good’ by Ofsted. Cannock train station is also conveniently located just 0.67 KM away, providing easy access to public transportation.
Based on the provided images, the property appears to be in good condition. The bathrooms and kitchen have recently been updated, showing modern fixtures and fittings. While some rooms show signs of personal belongings and decor, there is no visible evidence of significant damage or the need for extensive repairs.
The property’s plot size is listed as 0.00 SQFT, indicating a lack of private garden space. This is a common feature of maisonettes, especially in urban areas.
The list price of £140,000 is notably lower than the average house price in the area (£198,894). Considering the property’s modern updates, proximity to schools and transport links, and the generally good condition, the price could be considered reasonable, though further investigation into comparable properties in the immediate vicinity would be beneficial. The average price per sqft in the area is £241, and while the property’s sqft isn’t provided, the lower list price may reflect the lack of outdoor space. Nearby properties on Hunter Road have varied prices, ranging from £59,950 to £200,000, highlighting the price variance in the area.
Therefore, we give this property 5 / 10. *Disclaimer: This is our option and does constitute a recommendation or financial advice. Do your own research. *
- Price
- 7
- Condition
- 8
- Location
- 7
- Land
- 1
- Bedrooms
- 3
- Bathrooms
- 1
- Sqft (est)
- 910.00
The heatmap indicates the level of crime in the area. The color of the heatmap indicates the crime severity and recency.
Metrics Year-on-Year
- Average area value
- 241,667.00 £Increased by 13.64 %
- Est sale value
- 205,660.00 £Decreased by 11.72 %
- Average area rental value
- 880.00 £/moIncreased by 7.19 %
- Est letting value
- 0.00 £/mo
- Est rental Yield
- 4.37 %Decreased by 5.62 %
- Crime Rate
- 19.00 %Unchanged by 0.00 %
Agent Activity
Boot & Son Chartered Surveyors created the listing.
Nearby Schools
| Name | Type | Ofsted | Distance |
|---|---|---|---|
| St Mary'S Catholic Primary School | Voluntary Aided School | Good | 0.11 KM |
| Chase Grammar School International Study Centre | Other Independent School | 0.22 KM | |
| Chase Grammar School | Other Independent School | 0.22 KM | |
| Bridgtown Primary School | Community School | Good | 0.85 KM |
| Peak Education - Cannock | Other Independent Special School | 0.94 KM |
Images
Nearby Streets
| Name | Average Price | Average Sqft | Distance |
|---|---|---|---|
| Market Place | £ 0 | 0 | 0.00 KM |
| Railway Street | £ 0 | 0 | 0.00 KM |
| Ringway | £ 97,500 | 0 | 0.00 KM |
| Lichfield Road | £ 309,950 | 0 | 0.00 KM |
| Laburnum Avenue | £ 0 | 0 | 0.00 KM |
Nearby Transport
| Name | NLC | TLC | Distance |
|---|---|---|---|
| Cannock | 1016 | CAO | 0.67 KM |
| Landywood | 1017 | LAW | 3.24 KM |
| Hednesford | 1148 | HNF | 4.05 KM |
| Bloxwich North | 1018 | BWN | 6.69 KM |
| Bloxwich | 1141 | BLX | 7.62 KM |
Nearby Listings
| Address | Price | Type | Score | Distance |
|---|---|---|---|---|
| Hunter Road, Cannock, Staffordshire, WS11 | £ 140,000 | BUY | 5 / 10 | 0.00 KM |
| Carfax, Cannock | £ 99,950 | BUY | 5 / 10 | 0.13 KM |
| Walsall Road, Cannock, WS11 0HP | £ 220,000 | BUY | 7 / 10 | 0.25 KM |
| Walsall Road, Cannock | £ 239,950 | BUY | 7 / 10 | 0.25 KM |
| Walhouse Street, Cannock | £ 285,000 | BUY | 6 / 10 | 0.27 KM |
Nearby Properties
| Address | Price | Distance |
|---|---|---|
| 4 Hunter Road | £ 105,000 | 0.06 KM |
| 28 Hunter Road | £ 115,000 | 0.06 KM |
| 26 Hunter Road | £ 106,500 | 0.06 KM |
| 82 Hunter Road | £ 93,000 | 0.06 KM |
| 76 Hunter Road | £ 187,000 | 0.06 KM |