Dyers End, Stambourne, Essex
By David Burr Estate Agents
£ 630,000
Reviews
3 out of 5 stars
David Burr Estate Agents says ..
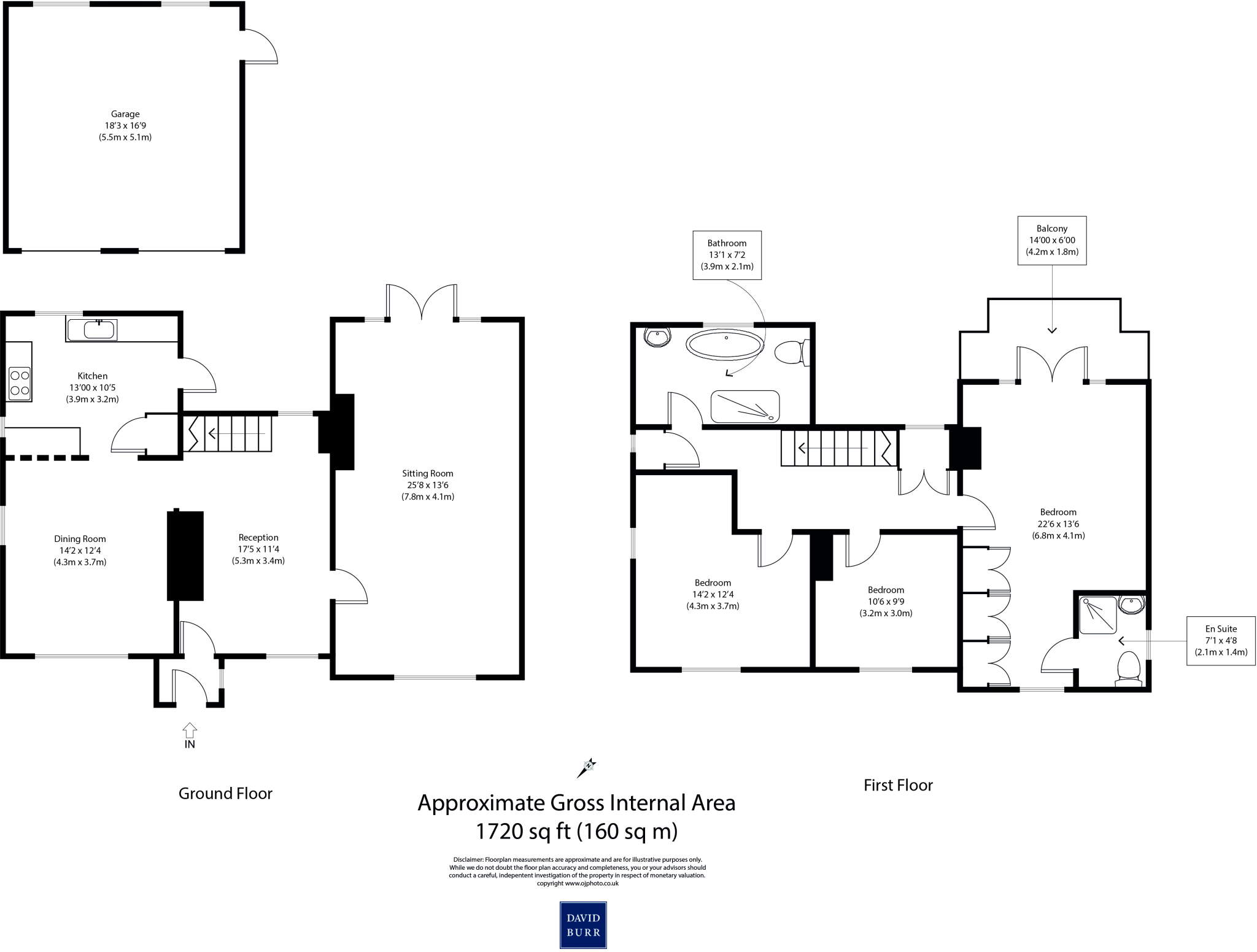
Delightful period property occupying south facing plot of approximately 0.50 of an acre, three bedrooms, large sitting room, family room, dining room, principal suite with balcony and lovely views. Double garage, semi-rural location and lots of potential.
Property Oracle says ..
This property is a three-bedroom, two-bathroom house located in the village of Stambourne, Essex. The house appears to be a charming property, potentially a converted or extended cottage, given the exposed beams visible in some of the interior photographs. The property benefits from a large garden, much larger than average for the area, which is a significant selling point, particularly for families or those who value outdoor space. The interior is well-presented and shows a mixture of modern and traditional features. The kitchen appears recently updated, while some of the bathrooms retain older fixtures. The overall impression is of a comfortable family home in a quiet rural setting. The lack of detailed information on transport links and the absence of precise comparable properties in the nearby listings makes it difficult to provide a definitive assessment of value, but the property appears to be competitively priced for the area. Potential buyers should investigate local transport links and school catchment areas to fully assess the property’s suitability for their needs. The substantial garden space is a key feature that adds to the property’s appeal.
Therefore, we give this property 7 / 10. *Disclaimer: This is our option and does constitute a recommendation or financial advice. Do your own research. *
- Price
- 7
- Condition
- 6
- Location
- 7
- Land
- 8
- Bedrooms
- 3
- Bathrooms
- 2
- Sqft (est)
- 1,722.23
The heatmap indicates the level of crime in the area. The color of the heatmap indicates the crime severity and recency.
Metrics Year-on-Year
- Average area value
- 456,250.00 £Increased by 3.52 %
- Est sale value
- 552,835.83 £Increased by 10.31 %
- Average area rental value
- 1,388.00 £/moIncreased by 50.05 %
- Est letting value
- 0.00 £/mo
- Est rental Yield
- 3.65 %Increased by 44.84 %
- Crime Rate
- 62.00 %Unchanged by 0.00 %
Agent Activity
David Burr Estate Agents created the listing.
Nearby Schools
| Name | Type | Ofsted | Distance |
|---|---|---|---|
| St Margaret'S Church Of England Voluntary Controlled Primary School Toppesfield | Voluntary Controlled School | Good | 3.19 KM |
| Ridgewell Church Of England Primary School | Academy Sponsor Led | 3.90 KM | |
| Stoke College | Other Independent School | 5.85 KM | |
| St Andrew'S Church Of England Primary School, Great Yeldham | Academy Converter | 5.95 KM | |
| Steeple Bumpstead Primary School | Academy Sponsor Led | 7.17 KM |
Images
Nearby Streets
| Name | Average Price | Average Sqft | Distance |
|---|---|---|---|
| Birdbrook Road | £ 1,300,000 | 0 | 0.00 KM |
Nearby Listings
| Address | Price | Type | Score | Distance |
|---|---|---|---|---|
| Ridgewell, Essex | £ 1,000,000 | BUY | 6 / 10 | 0.06 KM |
| Dyers End, Stambourne, Halstead | £ 600,000 | BUY | 7 / 10 | 0.07 KM |
| Dyers End, Stambourne, Halstead | £ 375,000 | BUY | 6 / 10 | 0.09 KM |
| Halstead, Essex | £ 350,000 | BUY | 6 / 10 | 0.12 KM |
| Dyers End, Stambourne, Halstead, Essex | £ 315,000 | BUY | 6 / 10 | 0.12 KM |
Nearby Properties
| Address | Price | Distance |
|---|---|---|
| Bluebells | £ 108,500 | 0.11 KM |
| Derrelyn | £ 267,000 | 0.11 KM |
| The Rowan | £ 283,000 | 0.11 KM |
| Lyon Field | £ 265,000 | 0.11 KM |
| Nimrod | £ 185,000 | 0.11 KM |