MC
25 Holland Road, Wylde Green, Sutton Coldfield, B72 1SB
By McCarthy & Stone - West Midlands
£ 258,750
Reviews
2 out of 5 stars
McCarthy & Stone - West Midlands says ..
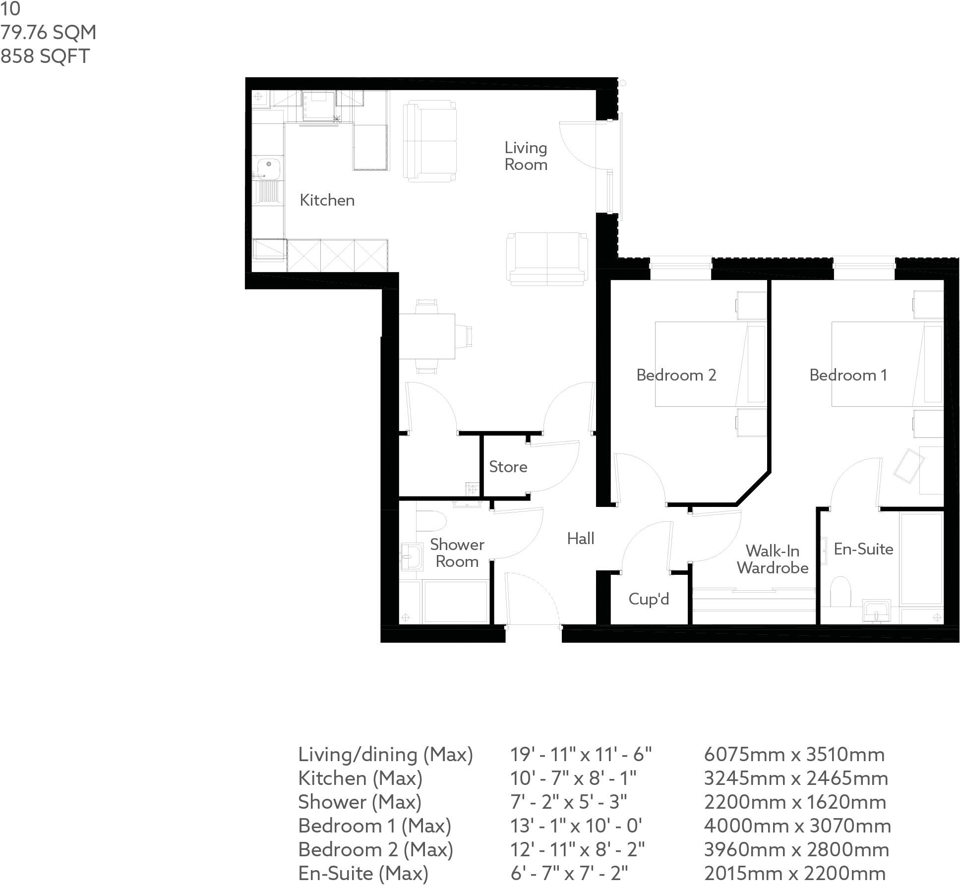
Light-filled and thoughtfully finished with contemporary design and elegant fixtures throughout, Apartment 10 is a beautiful apartment with access to communal features including a sociable lounge and large landscaped gardens with seating.
Property Oracle says ..
Therefore, we give this property 5 / 10. *Disclaimer: This is our option and does constitute a recommendation or financial advice. Do your own research. *
- Price
- 4
- Condition
- 9
- Location
- 8
- Land
- 1
- Bedrooms
- 2
- Bathrooms
- 0
- Sqft (est)
- 653.15
The heatmap indicates the level of crime in the area. The color of the heatmap indicates the crime severity and recency.
Metrics Year-on-Year
- Average area value
- 497,268.00 £Increased by 4.06 %
- Est sale value
- 329,187.60 £Increased by 51.81 %
- Average area rental value
- 2,350.00 £/moIncreased by 60.19 %
- Est letting value
- 1,306.30 £/moIncreased by 100.00 %
- Est rental Yield
- 5.67 %Increased by 54.08 %
- Crime Rate
- 2.00 %Unchanged by 0.00 %
from 477,886.00 £
from 216,845.80 £
from 1,467.00 £/mo
from 653.15 £/mo
from 3.68 %
from 2.00 %
Agent Activity
McCarthy & Stone - West Midlands created the listing.
Nearby Schools
| Name | Type | Ofsted | Distance |
|---|---|---|---|
| Maney Hill Primary School | Community School | Good | 0.67 KM |
| Holland House Infant School And Nursery | Community School | Outstanding | 0.91 KM |
| Holland House Infant School And Nursery | Children's Centre | 0.94 KM | |
| Sutton Coldfield Grammar School For Girls | Academy Converter | 0.98 KM | |
| Town Junior School | Academy Sponsor Led | Good | 1.01 KM |
Images
Nearby Streets
| Name | Average Price | Average Sqft | Distance |
|---|---|---|---|
| Hurley Close | £ 675,000 | 0 | 0.00 KM |
| Rowan Road | £ 395,000 | 0 | 0.00 KM |
| The Green | £ 749,950 | 0 | 0.00 KM |
| Jockey Road | £ 0 | 0 | 0.00 KM |
| Emmanuel Road | £ 517,500 | 0 | 0.00 KM |
Nearby Transport
| Name | NLC | TLC | Distance |
|---|---|---|---|
| Wylde Green | 1138 | WYL | 1.14 KM |
| Sutton Coldfield | 1044 | SUT | 1.69 KM |
| Chester Road | 1130 | CRD | 1.97 KM |
| Erdington | 1041 | ERD | 3.09 KM |
| Four Oaks | 1042 | FOK | 3.38 KM |
Nearby Listings
| Address | Price | Type | Score | Distance |
|---|---|---|---|---|
| 25 Holland Road, Wylde Green, Sutton Coldfield, B72 1SB | £ 195,000 | BUY | 6 / 10 | 0.00 KM |
| 25 Holland Road, Wylde Green, Sutton Coldfield, B72 1SB | £ 239,950 | BUY | 5 / 10 | 0.00 KM |
| 25 Holland Road, Wylde Green, Sutton Coldfield, B72 1SB | £ 195,000 | BUY | 6 / 10 | 0.00 KM |
| 25 Holland Road, Wylde Green, Sutton Coldfield, B72 1SB | £ 255,000 | BUY | 7 / 10 | 0.00 KM |
| 25 Holland Road, Wylde Green, Sutton Coldfield, B72 1SB | £ 258,750 | BUY | 5 / 10 | 0.00 KM |
Nearby Properties
| Address | Price | Distance |
|---|---|---|
| 12 St Bernards Road | £ 635,000 | 0.08 KM |
| 1 St Bernards Road | £ 885,000 | 0.08 KM |
| 14 St Bernards Road | £ 479,950 | 0.08 KM |
| 17 St Bernards Road | £ 560,000 | 0.08 KM |
| 33a St Bernards Road | £ 335,000 | 0.12 KM |