Ben Rose says ..
Ben Rose Estate Agents are delighted to present this charming two-bedroom semi-detached bungalow, ideally situated just outside Chorley town centre. Surrounded by picturesque countryside, the property offers delightful rear views and backs onto the peaceful Leeds Liverpool Canal. With NO ONWARD C...
Property Oracle says ..
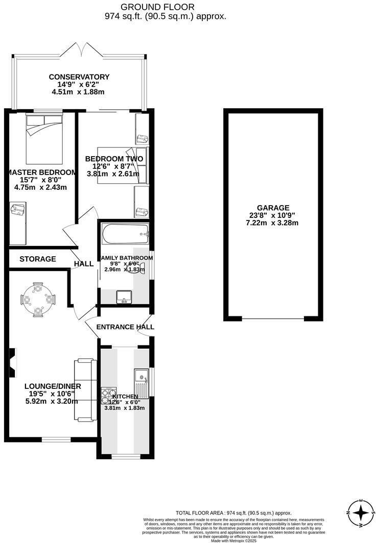
This semi-detached bungalow in Chorley, Lancashire is listed at £189,995. The property boasts 2 bedrooms and 1 bathroom, and features a conservatory and garage. While the average house price in the area is significantly higher at £515,185, this bungalow is priced considerably lower. This could be attributed to its smaller size (979 sq ft) compared to the area average (931 sq ft) and its condition. The property appears well-maintained from the photos, but not recently updated. The location is convenient, with nearby schools and transportation options. The property also benefits from a garden, although its size is not specified.
Therefore, we give this property 6 / 10. *Disclaimer: This is our option and does constitute a recommendation or financial advice. Do your own research. *
- Price
- 6
- Condition
- 7
- Location
- 8
- Land
- 6
- Bedrooms
- 2
- Bathrooms
- 1
- Sqft (est)
- 979.06
- Lot (est)
- 974.00
The heatmap indicates the level of crime in the area. The color of the heatmap indicates the crime severity and recency.
Metrics Year-on-Year
- Average area value
- 445,205.00 £Decreased by 3.69 %
- Est sale value
- 631,493.70 £Increased by 20.34 %
- Average area rental value
- 1,836.00 £/moIncreased by 4.79 %
- Est letting value
- 1,958.12 £/moUnchanged by 0.00 %
- Est rental Yield
- 4.95 %Increased by 8.79 %
- Crime Rate
- 2.00 %Unchanged by 0.00 %
Agent Activity
Ben Rose created the listing.
Nearby Schools
| Name | Type | Ofsted | Distance |
|---|---|---|---|
| St Peter'S Cofe Primary School Chorley | Voluntary Aided School | Good | 0.50 KM |
| Chorley St James' Church Of England Primary School | Voluntary Aided School | Good | 0.55 KM |
| Highfield Nursery School | Local Authority Nursery School | Outstanding | 0.64 KM |
| Highfield Children'S Centre | Children's Centre | 0.64 KM | |
| Highfield Community Primary School | Community School | Good | 0.65 KM |
Images
Nearby Streets
| Name | Average Price | Average Sqft | Distance |
|---|---|---|---|
| The Moorings | £ 0 | 0 | 0.00 KM |
| Greenfield Road | £ 0 | 0 | 0.00 KM |
| Gaskell Street | £ 0 | 0 | 0.00 KM |
| Willow Court | £ 0 | 0 | 0.00 KM |
| St Annes Road | £ 0 | 0 | 0.00 KM |
Nearby Transport
| Name | NLC | TLC | Distance |
|---|---|---|---|
| Chorley | 2745 | CRL | 1.41 KM |
| Adlington (Lancashire) | 2641 | ADL | 5.11 KM |
| Buckshaw Parkway | 7501 | BSV | 5.34 KM |
| Euxton Balshaw Lane | 2080 | EBA | 6.29 KM |
| Blackrod | 2732 | BLK | 8.92 KM |
Nearby Listings
| Address | Price | Type | Score | Distance |
|---|---|---|---|---|
| Montcliffe Road, Chorley | £ 189,995 | BUY | 6 / 10 | 0.00 KM |
| Montcliffe Road, Chorley | £ 175,000 | BUY | Unknown | 0.04 KM |
| Montcliffe Road, Chorley | £ 169,995 | BUY | 7 / 10 | 0.09 KM |
| Montcliffe Road, Chorley, PR6 | £ 289,995 | BUY | Unknown | 0.11 KM |
| Montcliffe Road, Chorley, PR6 | £ 299,995 | BUY | 8 / 10 | 0.11 KM |
Nearby Properties
| Address | Price | Distance |
|---|---|---|
| 62 Montcliffe Road | £ 148,000 | 0.04 KM |
| 38 Montcliffe Road | £ 189,995 | 0.04 KM |
| 52 Montcliffe Road | £ 95,350 | 0.04 KM |
| 40 Montcliffe Road | £ 282,000 | 0.04 KM |
| 8 Montcliffe Road | £ 135,000 | 0.04 KM |