Naylor Powell says ..
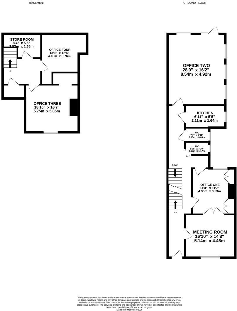
Unique proposition situated on the Georgian terrace of Brunswick Road. Formerly used as offices, the premises has planning permission for the creation of three spacious one bedroom apartments with allocated parking spaces. The property boasts spacious accommodation and characterful features throu...
Property Oracle says ..
This property is a block of apartments located on Brunswick Road in Gloucester. The location benefits from being within a reasonable distance of Gloucester railway station (1.01km) and several schools, including St Paul’s Church of England Primary School (0.50km) and Al-Ashraf Secondary School for Girls (1.16km). The property itself appears to be in relatively good condition, though some areas could benefit from modernisation. The images show a mix of well-maintained and slightly dated features. There is evidence of a courtyard and what appears to be a basement area which could offer additional space. The list price of £265,000 is slightly higher than the average price for the area (£258,798), but without knowing the size of the apartments it’s difficult to definitively comment on the value for money. More information regarding the number of apartments and their individual sizes would be needed to conduct a thorough price analysis. The property also benefits from having a small rear garden.
Therefore, we give this property 6 / 10. *Disclaimer: This is our option and does constitute a recommendation or financial advice. Do your own research. *
- Price
- 6
- Condition
- 7
- Location
- 8
- Land
- 3
- Bedrooms
- 0
- Bathrooms
- 0
The heatmap indicates the level of crime in the area. The color of the heatmap indicates the crime severity and recency.
Metrics Year-on-Year
- Average area value
- 222,854.00 £Decreased by 15.77 %
- Average area rental value
- 1,201.00 £/moIncreased by 7.91 %
- Est rental Yield
- 6.47 %Increased by 28.12 %
- Crime Rate
- 14.00 %Unchanged by 0.00 %
Agent Activity
Naylor Powell created the listing.
Nearby Schools
| Name | Type | Ofsted | Distance |
|---|---|---|---|
| St Paul'S Church Of England Primary School | Voluntary Controlled School | Good | 0.50 KM |
| The King'S School, Gloucester | Other Independent School | 0.80 KM | |
| Bartongate Children'S Centre | Children's Centre | 1.15 KM | |
| Al-Ashraf Secondary School For Girls | Other Independent School | Good | 1.16 KM |
| Tredworth Junior School | Community School | Good | 1.21 KM |
Images
Nearby Streets
| Name | Average Price | Average Sqft | Distance |
|---|---|---|---|
| Henley Court | £ 0 | 0 | 0.00 KM |
| Greyfriars | £ 0 | 0 | 0.00 KM |
| Marylone | £ 0 | 0 | 0.00 KM |
| Somerset Place | £ 0 | 0 | 0.00 KM |
| Barbican Road | £ 0 | 0 | 0.00 KM |
Nearby Transport
| Name | NLC | TLC | Distance |
|---|---|---|---|
| Gloucester | 4760 | GCR | 1.01 KM |
Nearby Listings
| Address | Price | Type | Score | Distance |
|---|---|---|---|---|
| Brunswick Road, Gloucester | £ 265,000 | BUY | 6 / 10 | 0.00 KM |
| Montpellier mews, Gloucester | £ 155,000 | BUY | 7 / 10 | 0.07 KM |
| Park Road, Fitzalan House Park Road, GL1 | £ 125,000 | BUY | 5 / 10 | 0.12 KM |
| Park Road, Gloucester, Gloucestershire, GL1 | £ 145,000 | BUY | Unknown | 0.12 KM |
| Fitzalan House, Gloucester | £ 129,500 | BUY | Unknown | 0.12 KM |
Nearby Properties
| Address | Price | Distance |
|---|---|---|
| 55 Brunswick Road | £ 583,000 | 0.02 KM |
| Ferncroft | £ 45,000 | 0.06 KM |
| 27 Brunswick Road | £ 438,000 | 0.06 KM |
| 25 Brunswick Road | £ 625,000 | 0.06 KM |
| 10 Park Road | £ 133,000 | 0.06 KM |