Chancellors says ..
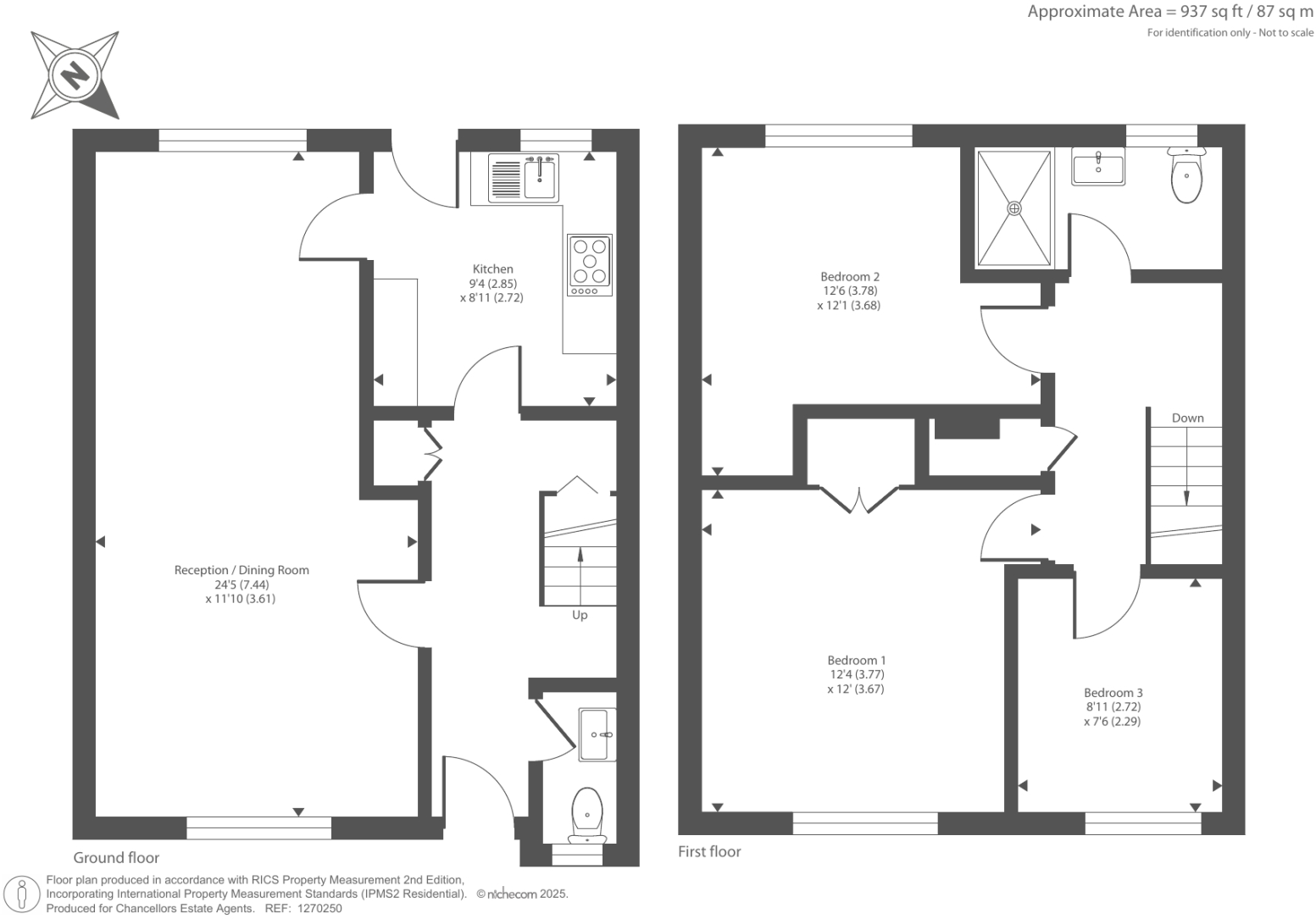
Chancellors are delighted to be able present to the open market this three bedroom semi detached family home with front and rear gardens. The property boasts two double bedrooms a single room, family bathroom and W/c. The property is in good condition but would benefit with some updating.
Property Oracle says ..
The property is a 3-bedroom semi-detached house located in Banbury, Oxfordshire. The area has an average house price of £313,446 and an average price per square foot of £307. The property is listed at £280,000. While the square footage isn’t provided, nearby comparable properties range in price from £221,000 to £315,000. Given the lack of information regarding the property’s square footage, a precise price per square foot comparison cannot be made. However, the list price appears to be at the lower end of the range for similar properties in the area. The property benefits from a relatively small front garden. The images suggest the property is in reasonable condition, though a more detailed inspection would be needed to assess any potential maintenance or repair requirements. The location is convenient, with nearby primary and secondary schools, and a train station within a reasonable distance.
Therefore, we give this property 6 / 10. *Disclaimer: This is our option and does constitute a recommendation or financial advice. Do your own research. *
- Price
- 7
- Condition
- 0
- Location
- 7
- Land
- 5
- Bedrooms
- 3
- Bathrooms
- 1
The heatmap indicates the level of crime in the area. The color of the heatmap indicates the crime severity and recency.
Metrics Year-on-Year
- Average area value
- 441,248.00 £Increased by 42.34 %
- Average area rental value
- 1,135.00 £/moIncreased by 0.27 %
- Est rental Yield
- 3.09 %Decreased by 29.45 %
- Crime Rate
- 8.00 %Unchanged by 0.00 %
Agent Activity
Chancellors created the listing.
Nearby Schools
| Name | Type | Ofsted | Distance |
|---|---|---|---|
| Hill View Primary School | Academy Converter | 0.43 KM | |
| Hardwick Primary School | Academy Converter | 0.65 KM | |
| Hanwell Fields Community School | Academy Converter | Good | 0.97 KM |
| Banbury Children And Family Centre | Children's Centre | 1.03 KM | |
| Frank Wise School | Community Special School | Outstanding | 1.43 KM |
Images
Nearby Streets
| Name | Average Price | Average Sqft | Distance |
|---|---|---|---|
| Lavender Close | £ 0 | 0 | 0.00 KM |
| Juniper Close | £ 250,000 | 0 | 0.00 KM |
| Glanville Gardens | £ 0 | 0 | 0.00 KM |
| Garden Close | £ 0 | 0 | 0.00 KM |
| Hilton Road | £ 0 | 0 | 0.00 KM |
Nearby Transport
| Name | NLC | TLC | Distance |
|---|---|---|---|
| Banbury | 4502 | BAN | 2.79 KM |
| Kings Sutton | 4508 | KGS | 9.52 KM |
Nearby Listings
| Address | Price | Type | Score | Distance |
|---|---|---|---|---|
| Banbury, Oxfordshire, OX16 | £ 280,000 | BUY | 6 / 10 | 0.00 KM |
| Danesmoor, Banbury, OX16 | £ 250,000 | BUY | 7 / 10 | 0.04 KM |
| Danesmoor, Banbury, Oxfordshire | £ 275,000 | BUY | Unknown | 0.08 KM |
| Danesmoor, Banbury | £ 240,000 | BUY | 6 / 10 | 0.15 KM |
| Danesmoor, Banbury | £ 315,000 | BUY | 6 / 10 | 0.18 KM |
Nearby Properties
| Address | Price | Distance |
|---|---|---|
| 70 Danesmoor | £ 177,500 | 0.04 KM |
| 48 Danesmoor | £ 39,950 | 0.04 KM |
| 62 Danesmoor | £ 245,000 | 0.04 KM |
| 72 Woodfield | £ 127,000 | 0.07 KM |
| 93 Woodfield | £ 110,000 | 0.07 KM |