Priory Road, Dodford, Bromsgrove
By Andrew Grant Worcestershire
£ 600,000
Reviews
3 out of 5 stars
Andrew Grant Worcestershire says ..
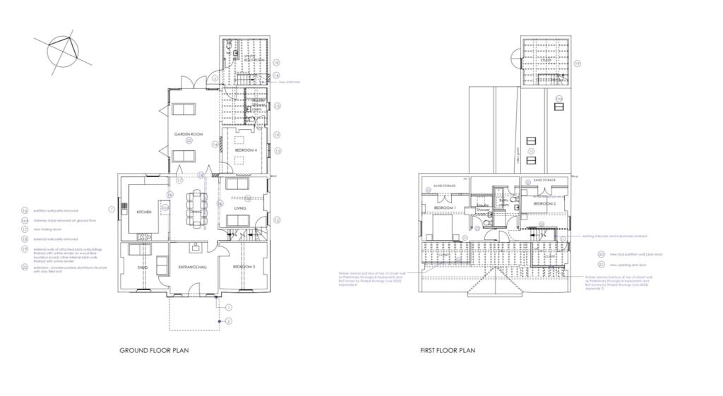
A fantastic opportunity to purchase a Grade II Listed, four-bedroom Chartist Cottage on 1.2 acres in Dodford. With planning permission to modernise and restore... The proposed elevations The property benefits from approved planning permission to restore the front facade to its original design, a...
Property Oracle says ..
This property is a Grade II Listed four-bedroom cottage located in Dodford, Worcestershire, on a sizeable 1.2-acre plot. Its location offers a balance of rural tranquility and proximity to Bromsgrove’s amenities and transport links, as well as a ‘Good’-rated primary school. However, the property requires extensive modernisation. The images reveal dated interiors, including kitchens and bathrooms in need of complete refurbishment. While the exterior is visually appealing, indicating a solid structure, the internal work required will represent a substantial investment. The expansive land offers significant potential for development or simply enjoying a large garden and grounds. The list price of £600,000 appears reasonable given the location and land size, but prospective buyers should factor in the considerable costs of renovation. Ultimately, this property represents a project for those seeking a large plot of land in a desirable location, but willing to undertake a significant renovation.
Therefore, we give this property 6 / 10. *Disclaimer: This is our option and does constitute a recommendation or financial advice. Do your own research. *
- Price
- 7
- Condition
- 4
- Location
- 7
- Land
- 9
- Bedrooms
- 4
- Bathrooms
- 0
- Sqft (est)
- 3,840.00
The heatmap indicates the level of crime in the area. The color of the heatmap indicates the crime severity and recency.
Metrics Year-on-Year
- Average area value
- 133,000.00 £Increased by 24.59 %
- Est sale value
- 756,480.00 £Increased by 31.33 %
- Average area rental value
- 898.00 £/moIncreased by 15.87 %
- Est letting value
- 3,840.00 £/moUnchanged by 0.00 %
- Est rental Yield
- 8.10 %Decreased by 7.00 %
- Crime Rate
- 0.00 %
Agent Activity
Andrew Grant Worcestershire created the listing.
Nearby Schools
| Name | Type | Ofsted | Distance |
|---|---|---|---|
| Dodford First School | Community School | Good | 0.95 KM |
| The Orchards School | Academy Sponsor Led | 2.88 KM | |
| Fairfield First School | Community School | Good | 3.08 KM |
| Pear Tree Children'S Centre | Children's Centre | 3.84 KM | |
| Chadsgrove Educational Trust Specialist College | Special Post 16 Institution | Requires improvement | 3.93 KM |
Images
Nearby Transport
| Name | NLC | TLC | Distance |
|---|---|---|---|
| Bromsgrove | 4715 | BMV | 6.73 KM |
| Hagley | 4577 | HAG | 9.13 KM |
Nearby Listings
| Address | Price | Type | Score | Distance |
|---|---|---|---|---|
| Priory Road, Dodford, Bromsgrove | £ 600,000 | BUY | 6 / 10 | 0.00 KM |
| Victoria Road, Dodford, B61 | £ 699,950 | BUY | 7 / 10 | 0.39 KM |
| Whinfield Road, Dodford, Bromsgrove, Worcestershire, B61 | £ 100,000 | BUY | 6 / 10 | 0.47 KM |
| Whinfield Road, Dodford, Bromsgrove, Worcestershire, B61 | £ 1,750,000 | BUY | 8 / 10 | 0.47 KM |
| Woodland Road, Dodford, Bromsgrove, Worcestershire, B61 | £ 925,000 | BUY | 7 / 10 | 0.67 KM |
Nearby Properties
| Address | Price | Distance |
|---|---|---|
| Whynot Cottage | £ 785,000 | 0.13 KM |
| Croeso | £ 620,000 | 0.13 KM |
| Coach House | £ 276,000 | 0.27 KM |
| Little Meadow | £ 500,000 | 0.28 KM |
| Hawthorn Cottage | £ 499,999 | 0.29 KM |