Harvey Bowes says ..
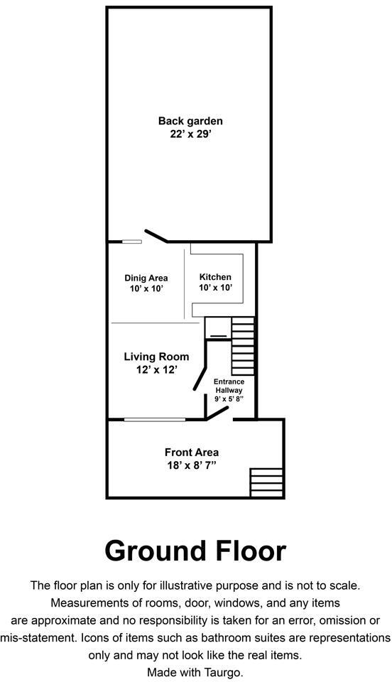
Stylish 3-Bedroom Semi-Detached Home on Malpas Road – No Chain! This beautifully presented semi-detached home is ideally located on Malpas Road, offering excellent access to Newport city centre and major transport links. The property boasts a modern open-plan layout on the groun...
Property Oracle says ..
Therefore, we give this property 7 / 10. *Disclaimer: This is our option and does constitute a recommendation or financial advice. Do your own research. *
- Price
- 9
- Condition
- 8
- Location
- 7
- Land
- 7
- Bedrooms
- 3
- Bathrooms
- 1
- Sqft (est)
- 1,185.17
The heatmap indicates the level of crime in the area. The color of the heatmap indicates the crime severity and recency.
Metrics Year-on-Year
- Average area value
- 360,833.00 £Decreased by 13.57 %
- Est sale value
- 415,994.67 £Decreased by 9.07 %
- Average area rental value
- 1,178.00 £/moIncreased by 8.17 %
- Est letting value
- 1,185.17 £/moUnchanged by 0.00 %
- Est rental Yield
- 3.92 %Increased by 25.24 %
- Crime Rate
- 20.00 %Unchanged by 0.00 %
from 417,504.00 £
from 457,475.62 £
from 1,089.00 £/mo
from 1,185.17 £/mo
from 3.13 %
from 20.00 %
Agent Activity
Harvey Bowes marked this listing as sold.
Harvey Bowes created the listing.
Nearby Schools
| Name | Type | Ofsted | Distance |
|---|---|---|---|
| Malpas Park Primary School | Welsh Establishment | 0.85 KM | |
| Malpas Court Primary School | Welsh Establishment | 1.09 KM | |
| Newport High School | Welsh Establishment | 1.31 KM | |
| Rougemont School | Welsh Establishment | 1.52 KM | |
| Crindau Junior & Infant School | Welsh Establishment | 1.58 KM |
Images
Nearby Streets
| Name | Average Price | Average Sqft | Distance |
|---|---|---|---|
| Westfield Drive | £ 0 | 0 | 0.00 KM |
| Pinewood Close | £ 250,000 | 0 | 0.00 KM |
| Elm Grove | £ 270,000 | 0 | 0.00 KM |
| The Spinney | £ 245,000 | 0 | 0.00 KM |
| Mount Pleasant | £ 123,333 | 0 | 0.00 KM |
Nearby Transport
| Name | NLC | TLC | Distance |
|---|---|---|---|
| Newport (South Wales) | 3674 | NWP | 2.36 KM |
| Pye Corner | 1663 | PYE | 4.80 KM |
| Cwmbran | 3738 | CWM | 5.37 KM |
| Rogerstone | 9921 | ROR | 6.86 KM |
| Risca And Pontymister | 9920 | RCA | 9.52 KM |
Nearby Listings
| Address | Price | Type | Score | Distance |
|---|---|---|---|---|
| Malpas Road, Newport | £ 200,000 | BUY | 7 / 10 | 0.00 KM |
| Graig Park Villas | £ 180,000 | BUY | Unknown | 0.04 KM |
| Westfield Avenue, Newport | £ 175,000 | BUY | 6 / 10 | 0.12 KM |
| Malpas Road, Newport, NP20 | £ 225,000 | BUY | 7 / 10 | 0.13 KM |
| Westfield Rise, Newport, NP20 | £ 375,000 | BUY | 8 / 10 | 0.17 KM |
Nearby Properties
| Address | Price | Distance |
|---|---|---|
| 378 Malpas Road | £ 135,000 | 0.02 KM |
| 358 Malpas Road | £ 205,000 | 0.02 KM |
| 384 Malpas Road | £ 120,000 | 0.02 KM |
| 374 Malpas Road | £ 187,000 | 0.02 KM |
| 366 Malpas Road | £ 125,000 | 0.02 KM |