St. Nicholas Drive, Shepperton, Middlesex, TW17
By Absolute Homes
£ 849,950
Reviews
3 out of 5 stars
Absolute Homes says ..
A spacious 4 bedroom 2 bathroom family home with beautiful Lakeside views located in the desirable area of Old Shepperton set in an enviable position with superb woodland views, situated in one of the village's premier roads.
Property Oracle says ..
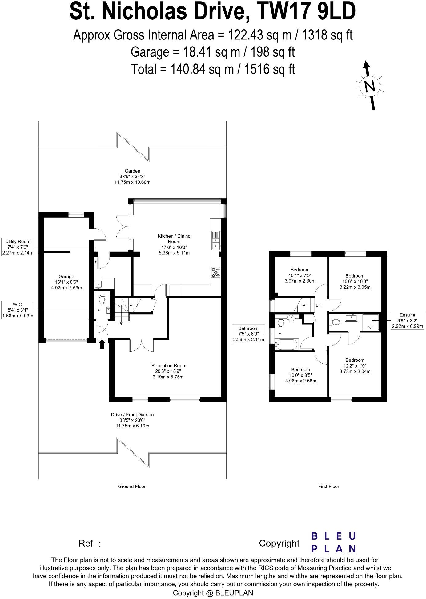
St Nicholas Drive is located in Shepperton, Middlesex, a desirable area in Surrey. The property is a detached house with four bedrooms and two bathrooms, and a total area of 1,452.48 sqft. The plot size is 1,515.99 sqft. Shepperton benefits from good transport links via the South Western Railway, with Shepperton station being approximately 1.54km from the property. Several well-regarded schools are also within a reasonable distance, including St Nicholas Cofe Primary School (0.95km) and Manor Mead School (0.99km), rated ‘Good’ and ‘Outstanding’ by Ofsted respectively. This contributes to a strong family-friendly environment.
Based on the provided images, the property appears to be in good condition. The interior is well-maintained and modern, with updated kitchen and bathroom fixtures. There is evidence of a recent conservatory extension. The garden is of a reasonable size and includes a patio area, ideal for outdoor entertaining. The lawn appears to be in need of some maintenance.
The list price of £849,950 is slightly above the average price for the area (£788,680). However, considering the property’s size, condition, and location, the price seems relatively reasonable. The average price per square foot in the area is £498.00, while this property is listed at a slightly higher price per sqft. However, the inclusion of a garden and the seemingly good condition of the property could justify this. Nearby comparable properties on St Nicholas Drive range in price from £445,000 to £1,070,000, indicating some price variation within the street.
Therefore, we give this property 7 / 10. *Disclaimer: This is our option and does constitute a recommendation or financial advice. Do your own research. *
- Price
- 7
- Condition
- 8
- Location
- 9
- Land
- 7
- Bedrooms
- 4
- Bathrooms
- 2
- Sqft (est)
- 1,452.48
- Lot (est)
- 1,515.99
The heatmap indicates the level of crime in the area. The color of the heatmap indicates the crime severity and recency.
Metrics Year-on-Year
- Average area value
- 587,488.00 £Decreased by 12.73 %
- Est sale value
- 647,806.08 £Decreased by 26.64 %
- Average area rental value
- 2,195.00 £/moIncreased by 2.33 %
- Est letting value
- 1,452.48 £/moUnchanged by 0.00 %
- Est rental Yield
- 4.48 %Increased by 17.28 %
- Crime Rate
- 3.00 %Unchanged by 0.00 %
Agent Activity
Absolute Homes created the listing.
Nearby Schools
| Name | Type | Ofsted | Distance |
|---|---|---|---|
| St Nicholas Cofe Primary School | Voluntary Aided School | Good | 0.95 KM |
| Manor Mead School | Community Special School | Outstanding | 0.99 KM |
| Saxon Primary School | Academy Converter | Good | 1.16 KM |
| Saxon Sure Start Children'S Centre | Children's Centre | 1.26 KM | |
| St George'S Junior School Weybridge | Other Independent School | 1.33 KM |
Images
Nearby Streets
| Name | Average Price | Average Sqft | Distance |
|---|---|---|---|
| Church Square | £ 499,950 | 0 | 0.00 KM |
| Ferry Square | £ 1,150,000 | 0 | 0.00 KM |
| Preston Road | £ 0 | 0 | 0.00 KM |
| Pearmain Close | £ 0 | 0 | 0.00 KM |
| Mount Pleasant | £ 779,950 | 0 | 0.00 KM |
Nearby Transport
| Name | NLC | TLC | Distance |
|---|---|---|---|
| Shepperton | 5605 | SHP | 1.54 KM |
| Weybridge | 5577 | WYB | 2.97 KM |
| Addlestone | 5550 | ASN | 3.40 KM |
| Upper Halliford | 5613 | UPH | 4.05 KM |
| Byfleet And New Haw | 5689 | BFN | 5.03 KM |
Nearby Listings
| Address | Price | Type | Score | Distance |
|---|---|---|---|---|
| St. Nicholas Drive, Shepperton, Middlesex, TW17 | £ 849,950 | BUY | 7 / 10 | 0.00 KM |
| St. Nicholas Drive, Shepperton, TW17 | £ 999,950 | BUY | 8 / 10 | 0.02 KM |
| Chertsey Road, Shepperton, Surrey, TW17 | £ 350,000 | BUY | 7 / 10 | 0.04 KM |
| St. Nicholas Drive, Shepperton, TW17 | £ 799,950 | BUY | Unknown | 0.05 KM |
| Chertsey Road, Shepperton, TW17 | £ 399,950 | BUY | 7 / 10 | 0.05 KM |
Nearby Properties
| Address | Price | Distance |
|---|---|---|
| 10 St Nicholas Drive | £ 745,000 | 0.00 KM |
| 19 St Nicholas Drive | £ 730,000 | 0.00 KM |
| 15 St Nicholas Drive | £ 975,000 | 0.00 KM |
| 33 St Nicholas Drive | £ 645,000 | 0.00 KM |
| 21 St Nicholas Drive | £ 445,000 | 0.00 KM |