Melville Avenue, South Croydon CR2 7HZ
By Hyde & Rowe
£ 495,000
Reviews
3 out of 5 stars
Hyde & Rowe says ..
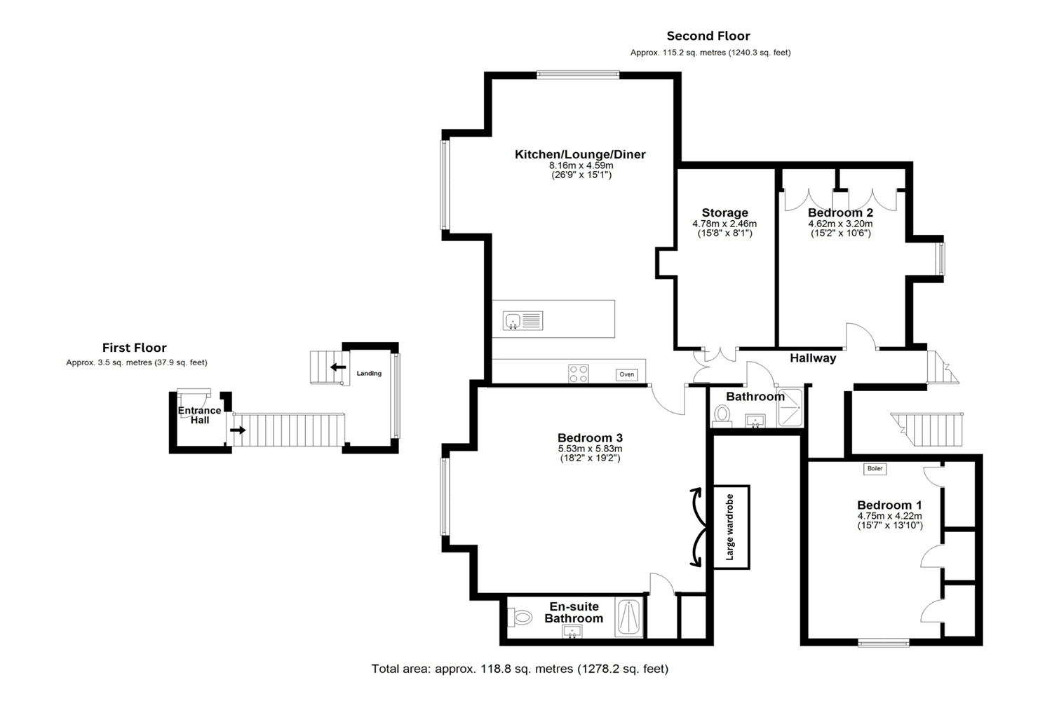
A stunning top floor apartment forming part of this imposing detached, period property benefitting from tall ceilings and very large rooms allowing light to flood into the property. This conversion flat is situated close to Lloyd Park with it's wide open spaces and transport links ...
Property Oracle says ..
This is a 3-bedroom flat in South Croydon. The property benefits from a modern interior, including a recently renovated kitchen and bathrooms. The property also has a garden. The location is desirable, with nearby schools and transportation links. The asking price appears reasonable for the area and the condition of the property.
Therefore, we give this property 7 / 10. *Disclaimer: This is our option and does constitute a recommendation or financial advice. Do your own research. *
- Price
- 7
- Condition
- 8
- Location
- 7
- Land
- 6
- Bedrooms
- 3
- Bathrooms
- 2
- Sqft (est)
- 1,251.52
The heatmap indicates the level of crime in the area. The color of the heatmap indicates the crime severity and recency.
Metrics Year-on-Year
- Average area value
- 428,077.00 £Increased by 11.32 %
- Est sale value
- 886,076.16 £Increased by 124.76 %
- Average area rental value
- 1,801.00 £/moIncreased by 9.82 %
- Est letting value
- 2,503.04 £/moIncreased by 100.00 %
- Est rental Yield
- 5.05 %Decreased by 1.37 %
- Crime Rate
- 3.00 %Unchanged by 0.00 %
Agent Activity
Hyde & Rowe created the listing.
Nearby Schools
| Name | Type | Ofsted | Distance |
|---|---|---|---|
| Rutherford School | Other Independent Special School | Good | 0.22 KM |
| Coombe Wood School | Free Schools | 0.45 KM | |
| Archbishop Tenison'S Cofe High School | Voluntary Aided School | Good | 0.91 KM |
| Oakwood School | Other Independent School | 1.00 KM | |
| St Peter'S Primary School | Academy Converter | Good | 1.26 KM |
Images
Nearby Streets
| Name | Average Price | Average Sqft | Distance |
|---|---|---|---|
| Ballater Road | £ 780,000 | 0 | 0.00 KM |
| Hunters Way | £ 0 | 0 | 0.00 KM |
| Coombe Avenue | £ 0 | 0 | 0.00 KM |
| Oaks Lane | £ 0 | 0 | 0.00 KM |
| Siskin Court | £ 0 | 0 | 0.00 KM |
Nearby Transport
| Name | NLC | TLC | Distance |
|---|---|---|---|
| South Croydon | 5410 | SCY | 1.58 KM |
| East Croydon | 5355 | ECR | 2.14 KM |
| Sanderstead | 5433 | SNR | 2.19 KM |
| Purley Oaks | 5430 | PUO | 2.72 KM |
| West Croydon | 5411 | WCY | 3.18 KM |
Nearby Listings
| Address | Price | Type | Score | Distance |
|---|---|---|---|---|
| Melville Avenue, South Croydon CR2 7HZ | £ 495,000 | BUY | 7 / 10 | 0.00 KM |
| Melville Avenue, South Croydon, CR2 7HZ | £ 400,000 | BUY | 7 / 10 | 0.05 KM |
| Melville Avenue, South Croydon, CR2 7HY | £ 1,625,000 | BUY | 9 / 10 | 0.12 KM |
| Castlemaine Avenue, CR2 | £ 260,000 | BUY | 6 / 10 | 0.13 KM |
| Castlemaine Avenue, South Croydon, Surrey, CR2 7HR | £ 1,000,000 | BUY | 8 / 10 | 0.14 KM |
Nearby Properties
| Address | Price | Distance |
|---|---|---|
| 53 Melville Avenue | £ 1,496,100 | 0.01 KM |
| 21 Melville Avenue | £ 365,000 | 0.01 KM |
| 51 Melville Avenue | £ 640,000 | 0.05 KM |
| 47 Melville Avenue | £ 530,000 | 0.05 KM |
| 22 Melville Avenue | £ 370,000 | 0.12 KM |