Abbotts Road, Cheam, Sutton, SM3
By Goodfellows
£ 375,000
Reviews
3 out of 5 stars
Goodfellows says ..
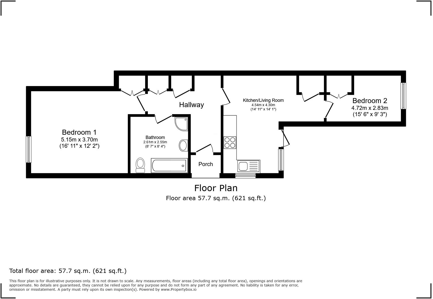
Goodfellows are delighted to present this beautifully maintained two-bedroom ground floor maisonette, ideally located near Cheam Village and a selection of excellent local schools with local and London bound transport facilities nearby. The property features a spacious master bedroom c...
Property Oracle says ..
This maisonette is located in Cheam, Sutton, an area with a mix of property types and price points. The property itself is a two-bedroom maisonette with one bathroom. While the provided images show a relatively modern interior with a recently updated kitchen and bathroom, the overall condition appears to be good, without any major signs of disrepair. The property benefits from a small, manageable garden, which adds to its appeal. However, the average house price in the area is significantly higher than the list price of this property, suggesting that it may be underpriced. The proximity to schools and transportation links is a positive factor, increasing its desirability. The square footage is smaller than the area average, which is reflected in the price.
Therefore, we give this property 6 / 10. *Disclaimer: This is our option and does constitute a recommendation or financial advice. Do your own research. *
- Price
- 6
- Condition
- 8
- Location
- 7
- Land
- 4
- Bedrooms
- 2
- Bathrooms
- 1
- Sqft (est)
- 728.72
- Lot (est)
- 621.08
The heatmap indicates the level of crime in the area. The color of the heatmap indicates the crime severity and recency.
Metrics Year-on-Year
- Average area value
- 783,500.00 £Decreased by 0.05 %
- Est sale value
- 453,263.84 £Increased by 5.78 %
- Average area rental value
- 2,348.00 £/moIncreased by 2.67 %
- Est letting value
- 728.72 £/moUnchanged by 0.00 %
- Est rental Yield
- 3.60 %Increased by 2.86 %
- Crime Rate
- 6.00 %Unchanged by 0.00 %
Agent Activity
Goodfellows created the listing.
Nearby Schools
| Name | Type | Ofsted | Distance |
|---|---|---|---|
| Cheam Park Farm Primary Academy | Academy Converter | Outstanding | 0.55 KM |
| Cheam High School | Academy Converter | Outstanding | 0.65 KM |
| Cheam Fields Primary Academy | Academy Converter | Good | 0.89 KM |
| Westbourne Primary School | Academy Converter | 1.11 KM | |
| Brookfield Primary Academy | Academy Converter | Good | 1.13 KM |
Images
Nearby Streets
| Name | Average Price | Average Sqft | Distance |
|---|---|---|---|
| Westfield Close | £ 0 | 0 | 0.00 KM |
| The Meads | £ 0 | 0 | 0.00 KM |
| Esher Avenue | £ 587,500 | 0 | 0.00 KM |
| Osprey Close | £ 0 | 0 | 0.00 KM |
| Church Farm Road | £ 0 | 0 | 0.00 KM |
Nearby Transport
| Name | NLC | TLC | Distance |
|---|---|---|---|
| West Sutton | 5293 | WSU | 1.01 KM |
| Cheam | 5352 | CHE | 1.60 KM |
| Sutton Common | 5436 | SUC | 1.96 KM |
| Sutton | 5385 | SUO | 2.70 KM |
| St Helier | 5290 | SIH | 2.75 KM |
Nearby Listings
| Address | Price | Type | Score | Distance |
|---|---|---|---|---|
| Abbotts Road, Cheam, Sutton, SM3 | £ 375,000 | BUY | 6 / 10 | 0.00 KM |
| Abbotts Road, Cheam, Sutton, SM3 | £ 375,000 | BUY | 7 / 10 | 0.00 KM |
| Abbotts Road, Cheam, .3Sutton, .., SM3 | £ 400,000 | BUY | 6 / 10 | 0.00 KM |
| Abbotts Road, Cheam, Sutton, SM3 | £ 350,000 | BUY | 7 / 10 | 0.06 KM |
| Chartwell Gardens, Cheam, Sutton, SM3 | £ 325,000 | BUY | Unknown | 0.08 KM |
Nearby Properties
| Address | Price | Distance |
|---|---|---|
| 41 Chartwell Gardens | £ 375,000 | 0.08 KM |
| 29 Chartwell Gardens | £ 315,000 | 0.08 KM |
| 33 Chartwell Gardens | £ 298,000 | 0.08 KM |
| 42 Chartwell Gardens | £ 240,000 | 0.08 KM |
| 38 Chartwell Gardens | £ 241,000 | 0.08 KM |