26 Claremont Way, Higher Bebington
By Harper & Woods
£ 275,000
Reviews
3 out of 5 stars
Harper & Woods says ..
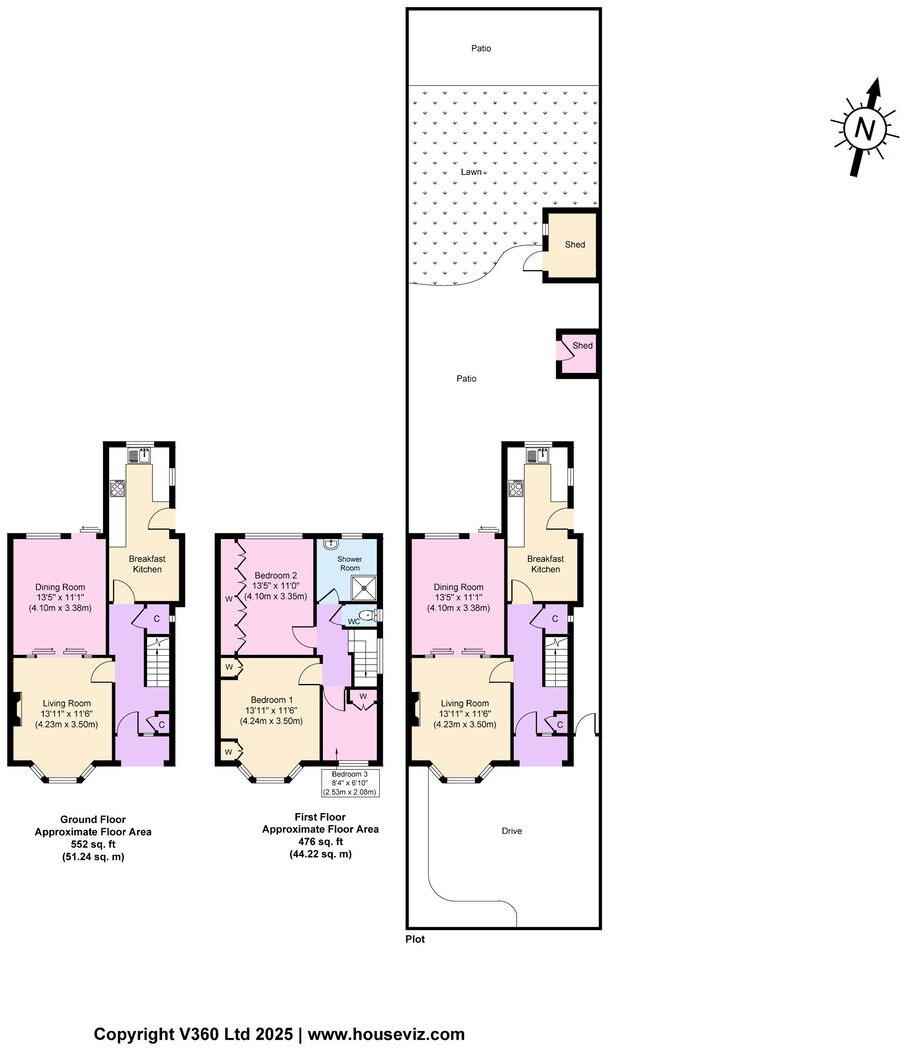
With a lovely welcoming feel throughout this spacious three-bedroom semi detached residence has a sunny rear garden driveway. Although it would benefit from some upgrading in parts, with a little imagination it could be brought back to its former glory as an excellent home large enough for a f...
Property Oracle says ..
The property is located in a convenient area with good transport links and nearby schools. While the interior requires some modernisation and the garden needs maintenance, the list price seems reasonable considering comparable properties in the area.
Therefore, we give this property 7 / 10. *Disclaimer: This is our option and does constitute a recommendation or financial advice. Do your own research. *
- Price
- 7
- Condition
- 6
- Location
- 8
- Land
- 7
- Bedrooms
- 3
- Bathrooms
- 1
- Sqft (est)
- 1,050.00
The heatmap indicates the level of crime in the area. The color of the heatmap indicates the crime severity and recency.
Metrics Year-on-Year
- Average area value
- 295,000.00 £Increased by 4.15 %
- Est sale value
- 261,450.00 £Increased by 0.40 %
- Average area rental value
- 981.00 £/moDecreased by 11.94 %
- Est letting value
- 0.00 £/mo
- Est rental Yield
- 3.99 %Decreased by 15.47 %
- Crime Rate
- 1.00 %Unchanged by 0.00 %
Agent Activity
Harper & Woods created the listing.
Nearby Schools
| Name | Type | Ofsted | Distance |
|---|---|---|---|
| Prenton High School For Girls | Academy Converter | Good | 0.70 KM |
| Bedford Drive Primary School | Community School | Good | 0.87 KM |
| Higher Bebington Junior School | Community School | Outstanding | 0.96 KM |
| Bebington Children'S Centre | Children's Centre Linked Site | 1.12 KM | |
| Town Lane Infant School | Academy Converter | 1.12 KM |
Images
Nearby Streets
| Name | Average Price | Average Sqft | Distance |
|---|---|---|---|
| Borough Road | £ 425,000 | 0 | 0.00 KM |
| Pennine Road | £ 165,000 | 0 | 0.00 KM |
| Village Mews | £ 0 | 0 | 0.00 KM |
| Stuart Road | £ 0 | 0 | 0.00 KM |
| Victoria Park Road | £ 0 | 0 | 0.00 KM |
Nearby Transport
| Name | NLC | TLC | Distance |
|---|---|---|---|
| Rock Ferry | 2189 | RFY | 2.23 KM |
| Green Lane | 2218 | GNL | 2.60 KM |
| Bebington | 2188 | BEB | 2.83 KM |
| Birkenhead Central | 2217 | BKC | 2.92 KM |
| Conway Park | 3624 | CNP | 3.41 KM |
Nearby Listings
| Address | Price | Type | Score | Distance |
|---|---|---|---|---|
| 26 Claremont Way, Higher Bebington | £ 275,000 | BUY | 7 / 10 | 0.00 KM |
| Claremont Way, Higher Bebington, Wirral | £ 395,000 | BUY | 7 / 10 | 0.04 KM |
| Claremont Way, Higher Bebington, Wirral | £ 375,000 | BUY | 7 / 10 | 0.10 KM |
| Regents Way, Higher Bebington | £ 325,000 | BUY | 7 / 10 | 0.15 KM |
| Brimstage Avenue, Higher Bebington | £ 500,000 | BUY | 7 / 10 | 0.21 KM |
Nearby Properties
| Address | Price | Distance |
|---|---|---|
| 6 Claremont Way | £ 210,000 | 0.01 KM |
| 24 Claremont Way | £ 221,000 | 0.01 KM |
| 30 Claremont Way | £ 170,000 | 0.01 KM |
| 5 Claremont Way | £ 245,000 | 0.01 KM |
| 18 Claremont Way | £ 83,000 | 0.01 KM |