Yopa says ..
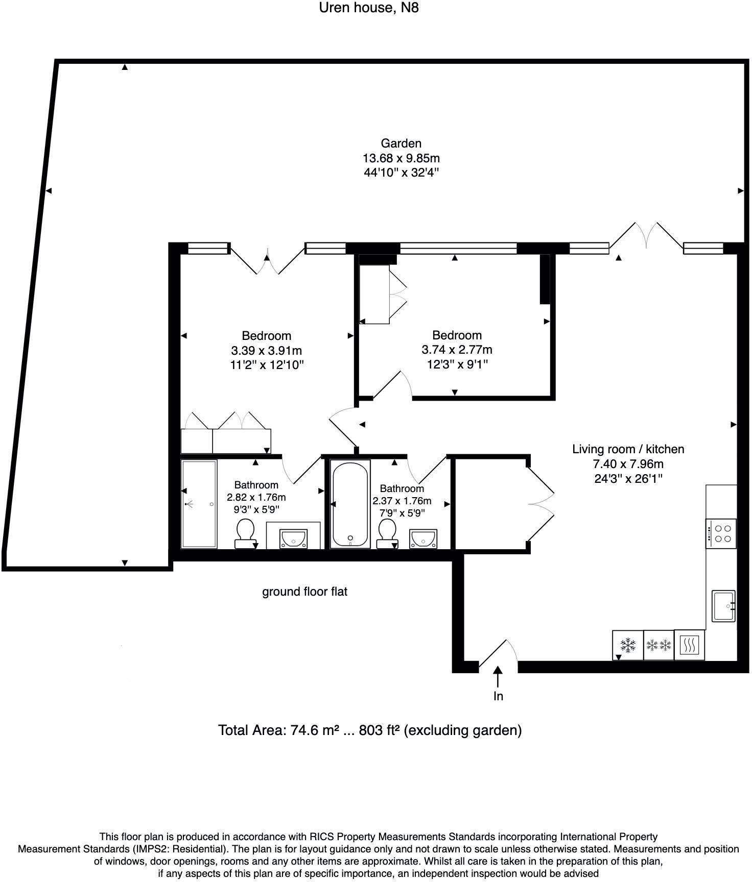
Exceptional two-bedroom, two-bathroom garden apartment within a prestigious Crouch End development. Offers private entrance, wraparound garden, and bespoke luxury interiors. Perfect blend of elegance, comfort, and location.
Property Oracle says ..
This is a modern apartment in a sought-after London location. The property is in excellent condition and benefits from a garden. The price is reasonable for the area, making it an attractive opportunity for potential buyers.
Therefore, we give this property 7 / 10. *Disclaimer: This is our option and does constitute a recommendation or financial advice. Do your own research. *
- Price
- 7
- Condition
- 9
- Location
- 8
- Land
- 7
- Bedrooms
- 2
- Bathrooms
- 2
The heatmap indicates the level of crime in the area. The color of the heatmap indicates the crime severity and recency.
Metrics Year-on-Year
- Average area value
- 1,033,328.00 £Increased by 10.47 %
- Average area rental value
- 1,983.00 £/moDecreased by 17.79 %
- Est rental Yield
- 2.30 %Decreased by 25.57 %
- Crime Rate
- 3.00 %Unchanged by 0.00 %
Agent Activity
Yopa created the listing.
Nearby Schools
| Name | Type | Ofsted | Distance |
|---|---|---|---|
| Kestrel House School | Other Independent Special School | Good | 0.26 KM |
| St Gildas' Catholic Junior School | Voluntary Aided School | Good | 0.35 KM |
| St Peter-In-Chains Rc Infant School | Voluntary Aided School | Good | 0.37 KM |
| Rokesly Children'S Centre | Children's Centre | 0.44 KM | |
| Rokesly Junior School | Community School | Good | 0.52 KM |
Images
Nearby Streets
| Name | Average Price | Average Sqft | Distance |
|---|---|---|---|
| Farnfield Close | £ 0 | 0 | 0.00 KM |
| Hillrise Mansions | £ 425,000 | 0 | 0.00 KM |
| Hillfield Avenue | £ 585,000 | 0 | 0.00 KM |
| Middle Lane | £ 0 | 0 | 0.00 KM |
| Blythwood Road | £ 325,000 | 0 | 0.00 KM |
Nearby Transport
| Name | NLC | TLC | Distance |
|---|---|---|---|
| Crouch Hill | 7406 | CRH | 0.95 KM |
| Hornsey | 6015 | HRN | 1.35 KM |
| Harringay | 6012 | HGY | 1.80 KM |
| Upper Holloway | 1524 | UHL | 1.90 KM |
| Alexandra Palace | 6025 | AAP | 2.14 KM |
Nearby Listings
| Address | Price | Type | Score | Distance |
|---|---|---|---|---|
| Farnfield Close, London, N8 | £ 800,000 | BUY | 7 / 10 | 0.00 KM |
| Farnfield Close, London, N8 | £ 785,000 | BUY | 6 / 10 | 0.03 KM |
| Primezone Mews, Crouch End N8 | £ 550,000 | BUY | 7 / 10 | 0.07 KM |
| Weston Park, Crouch End N8 | £ 425,000 | BUY | 5 / 10 | 0.07 KM |
| Weston Park, Crouch End, London, N8 | £ 130,000 | BUY | Unknown | 0.08 KM |
Nearby Properties
| Address | Price | Distance |
|---|---|---|
| 10 Primezone Mews | £ 475,000 | 0.07 KM |
| 5 Primezone Mews | £ 520,000 | 0.07 KM |
| 3 Primezone Mews | £ 269,950 | 0.07 KM |
| 22 Primezone Mews | £ 625,000 | 0.07 KM |
| 21 Primezone Mews | £ 525,000 | 0.07 KM |