Netherhall Gardens, Worts Causeway, Cambridge, Cambridge, CB1
By Elevation
£ 525,000
Reviews
3 out of 5 stars
Elevation says ..
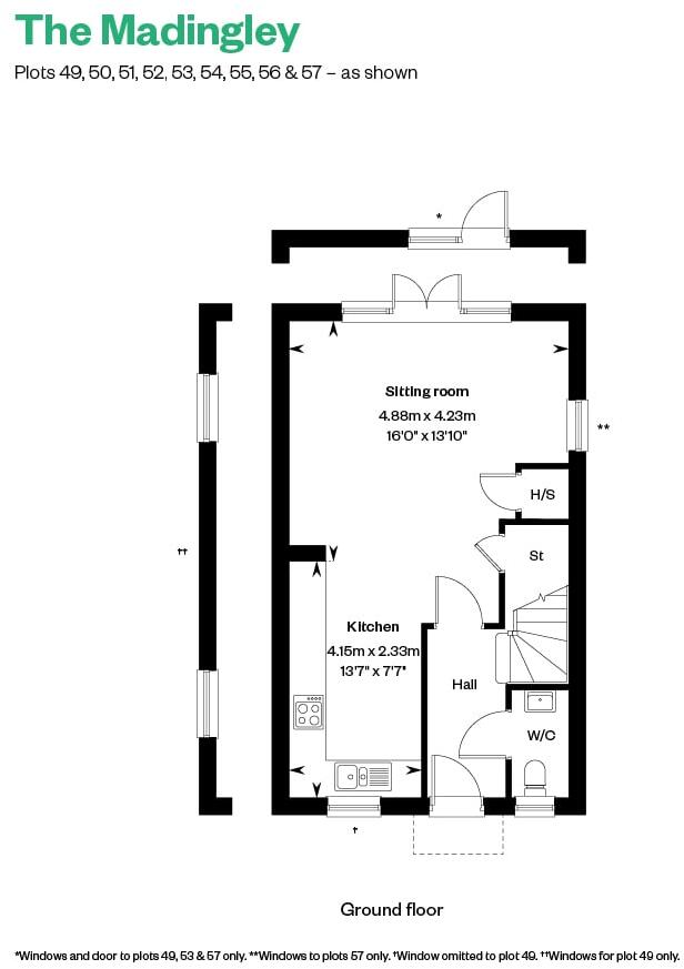
*** A BRAND NEW TWO BEDROOM HOME WITH OPEN PLANNING LIVING IN A CENTRAL CAMBRIDGE LOCATION ***
Property Oracle says ..
This terraced property in Netherhall Gardens, Cambridge, offers modern living in a well-connected location. The interiors are stylish and appear to be in excellent condition, suggesting a move-in-ready experience. While the square footage is modest, the inclusion of a garden adds significant value. The property’s proximity to schools and transportation enhances its desirability, making it a potentially attractive option for buyers seeking convenience and contemporary living in Cambridge.
Therefore, we give this property 7 / 10. *Disclaimer: This is our option and does constitute a recommendation or financial advice. Do your own research. *
- Price
- 7
- Condition
- 9
- Location
- 7
- Land
- 6
- Bedrooms
- 2
- Bathrooms
- 1
- Sqft (est)
- 326.25
The heatmap indicates the level of crime in the area. The color of the heatmap indicates the crime severity and recency.
Metrics Year-on-Year
- Average area value
- 599,279.00 £Decreased by 13.95 %
- Est sale value
- 227,722.50 £Increased by 46.64 %
- Average area rental value
- 1,388.00 £/moDecreased by 24.40 %
- Est letting value
- 326.25 £/moUnchanged by 0.00 %
- Est rental Yield
- 2.78 %Decreased by 12.03 %
- Crime Rate
- 0.00 %
Agent Activity
Elevation created the listing.
Nearby Schools
| Name | Type | Ofsted | Distance |
|---|---|---|---|
| The Netherhall School | Academy Sponsor Led | Good | 1.48 KM |
| Colville Primary School | Community School | Good | 1.78 KM |
| Queen Emma Primary School | Foundation School | Good | 1.81 KM |
| Oaks International School | Other Independent School | Good | 1.93 KM |
| Holme Court School | Other Independent Special School | Outstanding | 1.93 KM |
Images
Nearby Streets
| Name | Average Price | Average Sqft | Distance |
|---|---|---|---|
| Worts' Causeway | £ 0 | 0 | 0.00 KM |
| Gladstone Way | £ 699,995 | 0 | 0.00 KM |
| Applewood Close | £ 0 | 0 | 0.00 KM |
| Tottenhoe Court | £ 0 | 0 | 0.00 KM |
| Poppy Close | £ 0 | 0 | 0.00 KM |
Nearby Transport
| Name | NLC | TLC | Distance |
|---|---|---|---|
| Shelford (Cambs) | 7043 | SED | 4.45 KM |
| Cambridge | 7022 | CBG | 4.74 KM |
| Cambridge North | 8001 | CMB | 6.18 KM |
| Whittlesford Parkway | 7047 | WLF | 7.56 KM |
Nearby Listings
| Address | Price | Type | Score | Distance |
|---|---|---|---|---|
| Netherhall Gardens, Worts Causeway, Cambridge, Cambridge, CB1 | £ 525,000 | BUY | 7 / 10 | 0.00 KM |
| Worts Causeway, Cambridge, CB1 | £ 994,950 | BUY | 7 / 10 | 0.05 KM |
| Worts Causeway, Cambridge, CB1 | £ 950,000 | BUY | 6 / 10 | 0.05 KM |
| Netherhall Gardens, Worts Causeway, Cambridge, Cambridge, CB1 | £ 325,000 | BUY | 6 / 10 | 0.13 KM |
| Worts Causeway, Cambridge, CB1 | £ 789,950 | BUY | 5 / 10 | 0.37 KM |
Nearby Properties
| Address | Price | Distance |
|---|---|---|
| 16 Tweedale | £ 155,500 | 1.30 KM |
| 17 Tweedale | £ 210,000 | 1.30 KM |
| 7 Tweedale | £ 140,000 | 1.30 KM |
| 8 Tweedale | £ 205,000 | 1.30 KM |
| 18 Ainsdale | £ 298,000 | 1.31 KM |