Fernley Road, Stockport, Cheshire, SK2 6DF
By Lawler & Co
£ 350,000
Reviews
3 out of 5 stars
Lawler & Co says ..
AN IMPRESSIVE THREE BEDROOM SEMI DETACHED CHARACTERFUL PROPERTY WITH NO ONWARD CHAIN, TWO SPACIOUS RECEPTION ROOMS, BEAUTIFULLY MAINTAINED REAR GARDEN WITH SCENIC VIEWS AND FANTASTIC LOFT SPACE
Property Oracle says ..
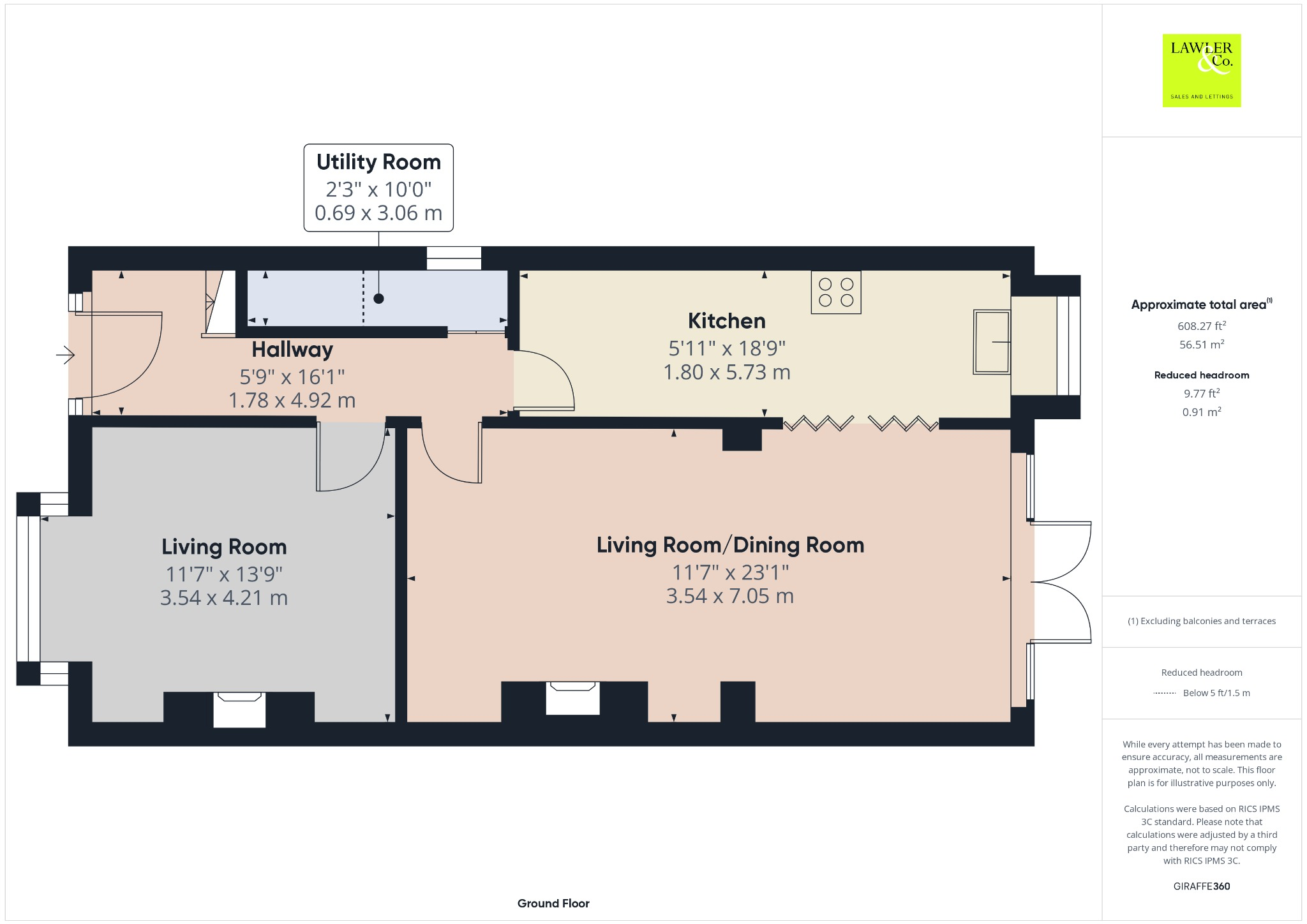
This semi-detached property in Stockport, Cheshire is listed at £350,000. The property has three bedrooms and two bathrooms, and while the square footage is relatively small at 608.27 sqft, it benefits from a sizable garden with a pond, as shown in the provided images. The location is close to several schools with good Ofsted ratings, and also benefits from being within reasonable distance to several train stations. This is a positive aspect for commuters. However, the average house price in the area is significantly higher at £376,936, and the average property size is much larger at 1,051 sqft. The property shows its age, and while there is evidence of some modernisation, a full renovation may be needed to bring it up to modern standards. This needs to be taken into consideration when assessing the value for money. Comparing the list price to nearby properties and the average price per square foot in the area, the asking price of £350,000 appears to be at the lower end of the market, especially considering the land size. However, the need for potential renovation work should be factored in.
Therefore, we give this property 7 / 10. *Disclaimer: This is our option and does constitute a recommendation or financial advice. Do your own research. *
- Price
- 7
- Condition
- 6
- Location
- 7
- Land
- 8
- Bedrooms
- 3
- Bathrooms
- 2
- Sqft (est)
- 608.27
The heatmap indicates the level of crime in the area. The color of the heatmap indicates the crime severity and recency.
Metrics Year-on-Year
- Average area value
- 387,843.00 £Increased by 1.47 %
- Est sale value
- 235,400.49 £Increased by 24.84 %
- Average area rental value
- 1,806.00 £/moIncreased by 16.22 %
- Est letting value
- 608.27 £/moUnchanged by 0.00 %
- Est rental Yield
- 5.59 %Increased by 14.55 %
- Crime Rate
- 0.00 %
Agent Activity
Lawler & Co created the listing.
Nearby Schools
| Name | Type | Ofsted | Distance |
|---|---|---|---|
| Stockport School | Community School | Good | 0.49 KM |
| Aquinas College | Further Education | Good | 0.70 KM |
| Stockport Grammar School | Other Independent School | 0.76 KM | |
| Banks Lane Junior School | Community School | Good | 0.80 KM |
| Banks Lane Infant School | Community School | Outstanding | 0.80 KM |
Images
Nearby Streets
| Name | Average Price | Average Sqft | Distance |
|---|---|---|---|
| Seymour Road | £ 0 | 0 | 0.00 KM |
| Garth Road | £ 270,000 | 0 | 0.00 KM |
| Ash Close | £ 41,250 | 0 | 0.00 KM |
| Redwood Gardens | £ 0 | 0 | 0.00 KM |
| Harold Street | £ 205,000 | 0 | 0.00 KM |
Nearby Transport
| Name | NLC | TLC | Distance |
|---|---|---|---|
| Woodsmoor | 2773 | WSR | 1.09 KM |
| Davenport | 2770 | DVN | 1.63 KM |
| Hazel Grove | 2768 | HAZ | 2.77 KM |
| Stockport | 2771 | SPT | 2.86 KM |
| Brinnington | 2603 | BNT | 4.06 KM |
Nearby Listings
| Address | Price | Type | Score | Distance |
|---|---|---|---|---|
| Fernley Road, Stockport, Cheshire, SK2 6DF | £ 350,000 | BUY | 7 / 10 | 0.00 KM |
| Aldersgate Road, Stockport | £ 375,000 | BUY | Unknown | 0.09 KM |
| Lowndes Lane, Stockport | £ 220,000 | BUY | 7 / 10 | 0.10 KM |
| Crawley Grove, Stockport | £ 345,000 | BUY | 7 / 10 | 0.18 KM |
| Aldersgate Road, Stockport, Cheshire, SK2 6DE | £ 325,000 | BUY | 7 / 10 | 0.20 KM |
Nearby Properties
| Address | Price | Distance |
|---|---|---|
| 178 Lowndes Lane | £ 52,500 | 0.09 KM |
| 184 Lowndes Lane | £ 123,000 | 0.09 KM |
| 162 Lowndes Lane | £ 200,000 | 0.09 KM |
| 164 Lowndes Lane | £ 200,000 | 0.09 KM |
| 182 Lowndes Lane | £ 115,000 | 0.09 KM |