Church Road, Horley, Surrey, RH6
By Greenaway Residential Estate Agents & Lettings Agents
£ 1,900,000
Reviews
3 out of 5 stars
Greenaway Residential Estate Agents & Lettings Agents says ..
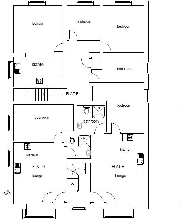
INVESTMENT OPPORTUNITY - Located in the desirable area of Horley is this exclusive development consisting of 7 one & two bedroom units which are currently let under AST tenancies.
Property Oracle says ..
This property presents a unique opportunity in Horley, Surrey. Situated on Church Road, it benefits from a convenient location near the train station, Gatwick Airport, and highly-rated schools. The exterior images showcase an attractive, contemporary style, suggesting that the property is in excellent condition— likely either newly built or recently and extensively renovated. The listing notes 11 bedrooms, indicating it could be used as a large family home or a potential investment property (e.g., student accommodation or multi-family dwelling). However, crucial details are missing. The lack of information on the plot size and the absence of interior photographs limit a complete assessment of the property. The list price of £1,900,000 also demands further analysis; comparing it to similar properties of similar size in the area would be very beneficial to clarify its value. While the location and apparent condition are highly favorable, the uncertainty about land size and the somewhat higher price compared to potentially comparable listings necessitate a careful appraisal before committing to a purchase.
Therefore, we give this property 6 / 10. *Disclaimer: This is our option and does constitute a recommendation or financial advice. Do your own research. *
- Price
- 6
- Condition
- 9
- Location
- 7
- Land
- 2
- Bedrooms
- 11
- Bathrooms
- 0
- Sqft (est)
- 2,000.00
The heatmap indicates the level of crime in the area. The color of the heatmap indicates the crime severity and recency.
Metrics Year-on-Year
- Average area value
- 401,643.00 £Decreased by 13.23 %
- Est sale value
- 952,000.00 £Increased by 40.83 %
- Average area rental value
- 1,377.00 £/moDecreased by 6.96 %
- Est letting value
- 2,000.00 £/moUnchanged by 0.00 %
- Est rental Yield
- 4.11 %Increased by 7.03 %
- Crime Rate
- 4.00 %Unchanged by 0.00 %
Agent Activity
Greenaway Residential Estate Agents & Lettings Agents marked this listing as sold.
Greenaway Residential Estate Agents & Lettings Agents created the listing.
Nearby Schools
| Name | Type | Ofsted | Distance |
|---|---|---|---|
| Manorfield Primary And Nursery School | Community School | Good | 0.53 KM |
| Horley Infant School | Community School | Good | 0.81 KM |
| Yattendon School | Foundation School | Good | 0.96 KM |
| Horley Community Sure Start Children'S Centre | Children's Centre | 1.27 KM | |
| Meath Green Infant School | Community School | Outstanding | 1.31 KM |
Images
Nearby Streets
| Name | Average Price | Average Sqft | Distance |
|---|---|---|---|
| Church View Close | £ 691,833 | 0 | 0.00 KM |
| Delta Bungalows | £ 0 | 0 | 0.00 KM |
| The Drive | £ 475,000 | 0 | 0.00 KM |
| Elm Tree Close | £ 331,667 | 0 | 0.00 KM |
| Oakwood Road | £ 500,000 | 0 | 0.00 KM |
Nearby Transport
| Name | NLC | TLC | Distance |
|---|---|---|---|
| Horley | 5365 | HOR | 1.07 KM |
| Gatwick Airport | 5416 | GTW | 1.95 KM |
| Salfords (Surrey) | 5380 | SAF | 3.50 KM |
| Three Bridges | 5491 | TBD | 6.14 KM |
| Earlswood (Surrey) | 5414 | ELD | 6.23 KM |
Nearby Listings
| Address | Price | Type | Score | Distance |
|---|---|---|---|---|
| Church Road, Horley, Surrey, RH6 | £ 1,900,000 | BUY | 6 / 10 | 0.00 KM |
| Astor Gardens, Horley, RH6 7HQ | £ 870,000 | BUY | 7 / 10 | 0.03 KM |
| Astor Gardens, Horley, Surrey, RH6 | £ 825,000 | BUY | 7 / 10 | 0.03 KM |
| Pine Gardens, Horley | £ 550,000 | BUY | 7 / 10 | 0.04 KM |
| Astor Gardens, Horley, Surrey | £ 900,000 | BUY | Unknown | 0.04 KM |
Nearby Properties
| Address | Price | Distance |
|---|---|---|
| 17 Church Road | £ 750,000 | 0.01 KM |
| 14 Pine Gardens | £ 375,000 | 0.03 KM |
| 26 Pine Gardens | £ 161,500 | 0.03 KM |
| 6 Pine Gardens | £ 249,950 | 0.03 KM |
| 10 Pine Gardens | £ 230,000 | 0.03 KM |