Victoria Road, Deal, Kent, CT14
By Bright and Bright
£ 650,000
Reviews
2 out of 5 stars
Bright and Bright says ..
Saxby House is an elegant, Grade II listed townhouse conveniently located close to Deal High Street.
Property Oracle says ..
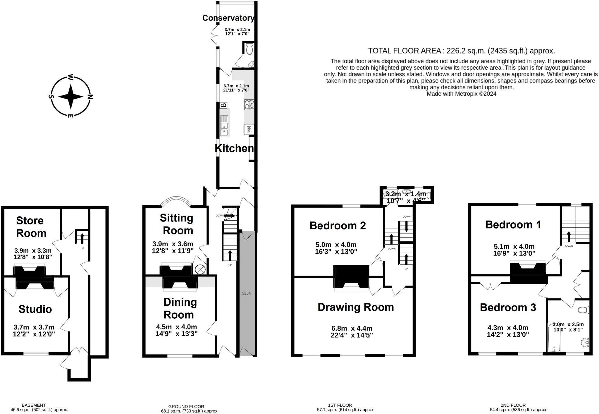
This three-bedroom, two-bathroom property on Victoria Road in Deal, Kent is a period townhouse. Its location offers a blend of convenience and coastal charm, being close to Deal High Street and Deal train station, and also has multiple schools within walking distance. The exterior presents well, maintaining its period character, but the interior requires considerable updating and modernisation. Rooms appear dated, with wallpapers and fittings needing an upgrade. The property benefits from a garden, though its size seems relatively modest. The £650,000 list price appears to reflect the property’s location and size but may be slightly high considering the necessary renovations. Potential buyers should carefully assess renovation costs before committing to a purchase. The absence of precise square footage data for nearby properties and the lack of details on the property’s plot size limit a more precise analysis of market value. A comprehensive survey and detailed cost estimate for renovation works are highly recommended.
Therefore, we give this property 5 / 10. *Disclaimer: This is our option and does constitute a recommendation or financial advice. Do your own research. *
- Price
- 6
- Condition
- 4
- Location
- 7
- Land
- 5
- Bedrooms
- 3
- Bathrooms
- 2
- Sqft (est)
- 2,434.80
The heatmap indicates the level of crime in the area. The color of the heatmap indicates the crime severity and recency.
Metrics Year-on-Year
- Average area value
- 505,375.00 £Increased by 53.39 %
- Est sale value
- 1,202,791.20 £Increased by 26.99 %
- Average area rental value
- 1,085.00 £/moDecreased by 20.22 %
- Est letting value
- 2,434.80 £/moUnchanged by 0.00 %
- Est rental Yield
- 2.58 %Decreased by 47.88 %
- Crime Rate
- 31.00 %Unchanged by 0.00 %
Agent Activity
Bright and Bright marked this listing as sold.
Bright and Bright created the listing.
Nearby Schools
| Name | Type | Ofsted | Distance |
|---|---|---|---|
| Sandown School | Academy Converter | 0.92 KM | |
| Brewood Secondary School | Other Independent Special School | Good | 1.14 KM |
| Deal Parochial Church Of England Primary School | Academy Converter | 1.16 KM | |
| Goodwin Academy | Academy Sponsor Led | 1.24 KM | |
| The Downs Church Of England Primary School | Academy Converter | 2.00 KM |
Images
Nearby Streets
| Name | Average Price | Average Sqft | Distance |
|---|---|---|---|
| South Street | £ 0 | 0 | 0.00 KM |
| Crown Court | £ 475,000 | 0 | 0.00 KM |
| Black Horse Alley | £ 0 | 0 | 0.00 KM |
| Coach Yard | £ 0 | 0 | 0.00 KM |
| Five Step Alley | £ 0 | 0 | 0.00 KM |
Nearby Transport
| Name | NLC | TLC | Distance |
|---|---|---|---|
| Deal | 5011 | DEA | 0.44 KM |
| Walmer | 5041 | WAM | 2.96 KM |
| Martin Mill | 5040 | MTM | 8.24 KM |
| Sandwich | 5026 | SDW | 8.54 KM |
Nearby Listings
| Address | Price | Type | Score | Distance |
|---|---|---|---|---|
| Victoria Road, Deal, Kent, CT14 | £ 650,000 | BUY | 5 / 10 | 0.00 KM |
| Wellington Road, Deal, Kent | £ 300,000 | BUY | 5 / 10 | 0.08 KM |
| Victoria Road, Deal, Kent, CT14 | £ 260,000 | BUY | 6 / 10 | 0.09 KM |
| Victoria Road, Deal | £ 925,000 | BUY | 5 / 10 | 0.10 KM |
| Wellington Road, Deal, CT14 | £ 675,000 | BUY | 6 / 10 | 0.10 KM |
Nearby Properties
| Address | Price | Distance |
|---|---|---|
| 25 Victoria Road | £ 700,000 | 0.03 KM |
| 7 Victoria Road | £ 325,000 | 0.04 KM |
| 23 Victoria Road | £ 445,000 | 0.04 KM |
| 1a Victoria Road | £ 499,500 | 0.04 KM |
| 31 Victoria Road | £ 455,000 | 0.04 KM |