Alecto Road, Gosport
By Bernards Estate and Lettings Agents
£ 260,000
Reviews
3 out of 5 stars
Bernards Estate and Lettings Agents says ..
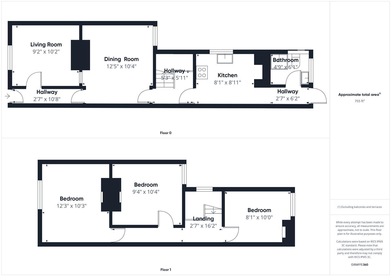
Charming 3 double bedroom Victorian cottage in desirable Alverstoke. The front entrance leads into the hallway and this gives access into the living room with character features such as picture rail and tiled fireplace, the hall also leads on to the second of the 2 reception rooms, also with ...
Property Oracle says ..
Therefore, we give this property 6 / 10. *Disclaimer: This is our option and does constitute a recommendation or financial advice. Do your own research. *
- Price
- 8
- Condition
- 7
- Location
- 7
- Land
- 5
- Bedrooms
- 3
- Bathrooms
- 1
- Sqft (est)
- 755.00
The heatmap indicates the level of crime in the area. The color of the heatmap indicates the crime severity and recency.
Metrics Year-on-Year
- Average area value
- 371,130.00 £Increased by 2.62 %
- Est sale value
- 323,140.00 £Increased by 32.10 %
- Average area rental value
- 1,597.00 £/moIncreased by 9.08 %
- Est letting value
- 755.00 £/moUnchanged by 0.00 %
- Est rental Yield
- 5.16 %Increased by 6.17 %
- Crime Rate
- 3.00 %Unchanged by 0.00 %
from 361,672.00 £
from 244,620.00 £
from 1,464.00 £/mo
from 755.00 £/mo
from 4.86 %
from 3.00 %
Agent Activity
Bernards Estate and Lettings Agents created the listing.
Nearby Schools
| Name | Type | Ofsted | Distance |
|---|---|---|---|
| Haselworth Primary School | Community School | Good | 0.41 KM |
| Haselbridge Children'S Centre | Children's Centre | 0.43 KM | |
| Leesland Church Of England Controlled Junior School | Voluntary Controlled School | Good | 0.87 KM |
| Leesland Church Of England Controlled Infant School | Voluntary Controlled School | Good | 0.93 KM |
| Alverstoke Church Of England Aided Junior School | Voluntary Aided School | Good | 1.06 KM |
Images
Nearby Streets
| Name | Average Price | Average Sqft | Distance |
|---|---|---|---|
| Park Road | £ 348,333 | 0 | 0.00 KM |
| Cleveland Road | £ 0 | 0 | 0.00 KM |
| Beechcroft Road | £ 647,500 | 0 | 0.00 KM |
| Nelson Road | £ 0 | 0 | 0.00 KM |
| Anglesey Road | £ 0 | 0 | 0.00 KM |
Nearby Transport
| Name | NLC | TLC | Distance |
|---|---|---|---|
| Portsmouth Harbour | 5540 | PMH | 3.62 KM |
| Portsmouth And Southsea | 5537 | PMS | 5.48 KM |
| Ryde Pier Head | 5541 | RYP | 5.91 KM |
| Ryde Esplanade | 5542 | RYD | 6.54 KM |
| Portchester | 5928 | PTC | 6.96 KM |
Nearby Listings
| Address | Price | Type | Score | Distance |
|---|---|---|---|---|
| Alecto Road, Alverstoke, Gosport | £ 260,000 | BUY | 7 / 10 | 0.00 KM |
| Alecto Road, Gosport | £ 260,000 | BUY | 6 / 10 | 0.00 KM |
| Alecto Road, Alverstoke, Hampshire, PO12 | £ 260,000 | BUY | 7 / 10 | 0.00 KM |
| Alecto Road, Alverstoke, Hampshire, PO12 | £ 279,000 | BUY | 7 / 10 | 0.01 KM |
| Alecto Road, Alverstoke | £ 267,000 | BUY | 6 / 10 | 0.02 KM |
Nearby Properties
| Address | Price | Distance |
|---|---|---|
| 4 Alecto Road | £ 149,995 | 0.01 KM |
| 6 Alecto Road | £ 130,000 | 0.01 KM |
| 15 Alecto Road | £ 168,000 | 0.01 KM |
| 9 Alecto Road | £ 163,000 | 0.01 KM |
| 11 Alecto Road | £ 198,500 | 0.01 KM |