Harlands Road, Harlands House Harlands Road, RH16
By Mansell McTaggart
£ 240,000
Reviews
3 out of 5 stars
Mansell McTaggart says ..
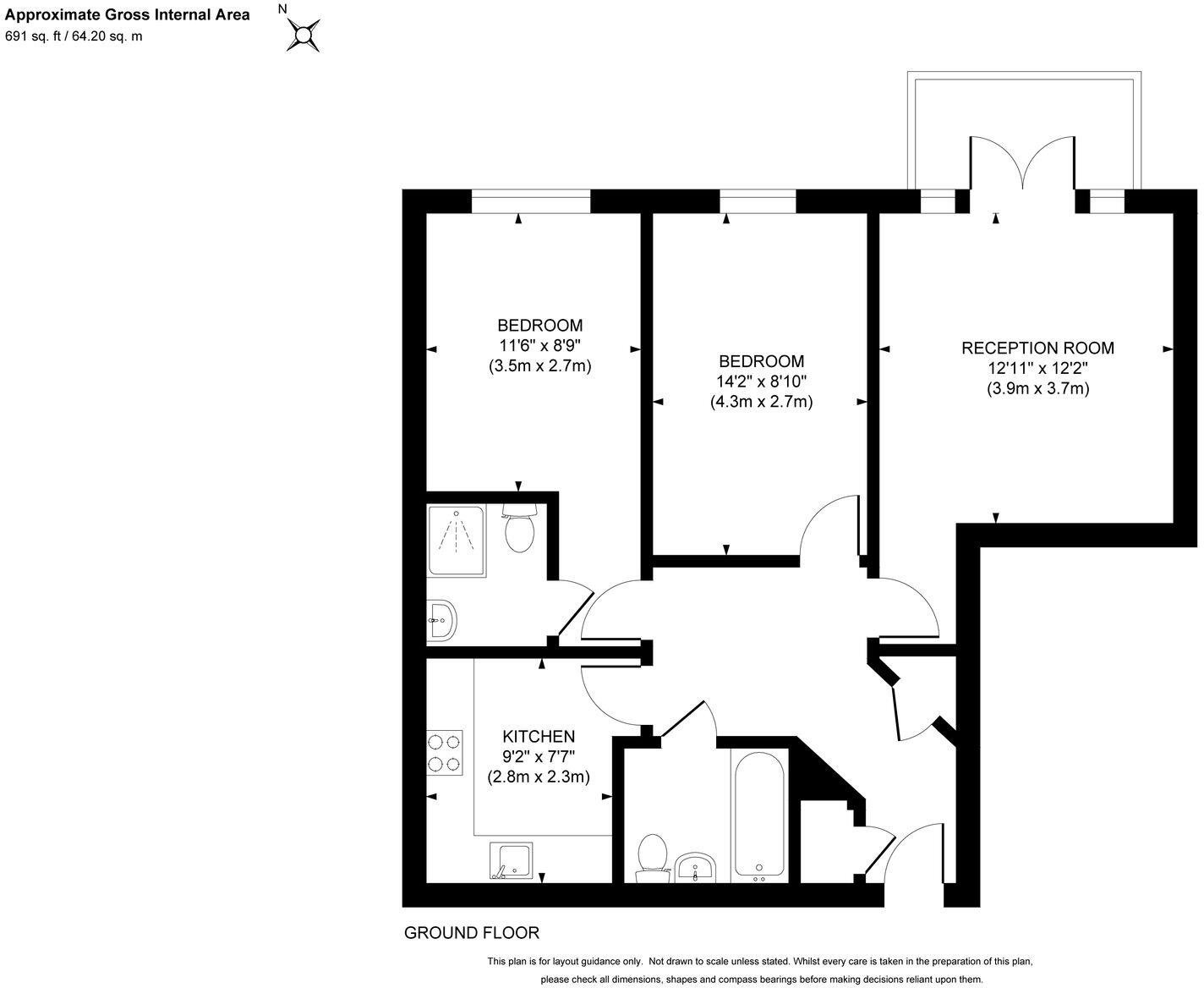
GUIDE PRICE … £240,000-£250,000 PLEASE WATCH THE VIDEO BEFORE BOOKING AN APPOINTMENT A 2nd floor 2 double bedroom, 2 bathroom apartment with balcony and lift service in this modern block presented for sale in very clean and tidy decorative order throughout with an allocated parking space behind, ...
Property Oracle says ..
This is a 2-bedroom apartment located on Harlands Road in Haywards Heath. The property is listed for £240,000. It is in a good location, close to the train station and local schools. The apartment appears to be in generally good condition, although the bathrooms could benefit from modernisation. The property has a small balcony and access to communal gardens. Considering the location and condition, the price seems reasonable, although the price per sqft is higher than the average for the area. The property is modern in style.
Therefore, we give this property 6 / 10. *Disclaimer: This is our option and does constitute a recommendation or financial advice. Do your own research. *
- Price
- 8
- Condition
- 7
- Location
- 7
- Land
- 3
- Bedrooms
- 2
- Bathrooms
- 2
- Sqft (est)
- 454.00
The heatmap indicates the level of crime in the area. The color of the heatmap indicates the crime severity and recency.
Metrics Year-on-Year
- Average area value
- 395,542.00 £Decreased by 7.24 %
- Est sale value
- 187,048.00 £Increased by 23.72 %
- Average area rental value
- 1,529.00 £/moIncreased by 9.14 %
- Est letting value
- 454.00 £/moUnchanged by 0.00 %
- Est rental Yield
- 4.64 %Increased by 17.77 %
- Crime Rate
- 17.00 %Unchanged by 0.00 %
Agent Activity
Mansell McTaggart created the listing.
Nearby Schools
| Name | Type | Ofsted | Distance |
|---|---|---|---|
| Central Education Ltd | Other Independent Special School | Requires improvement | 0.31 KM |
| My Choice School - Oak House | Other Independent Special School | Requires improvement | 0.61 KM |
| Harlands Primary School | Academy Converter | Good | 0.62 KM |
| St Joseph'S Catholic Primary School | Academy Converter | 1.32 KM | |
| Warden Park Primary Academy | Academy Sponsor Led | Good | 1.40 KM |
Images
Nearby Streets
| Name | Average Price | Average Sqft | Distance |
|---|---|---|---|
| Perrymount Road | £ 0 | 0 | 0.00 KM |
| Church Road | £ 0 | 0 | 0.00 KM |
| Oakwood Road | £ 0 | 0 | 0.00 KM |
| Bankside | £ 0 | 0 | 0.00 KM |
| Alder Way | £ 1,250,000 | 0 | 0.00 KM |
Nearby Transport
| Name | NLC | TLC | Distance |
|---|---|---|---|
| Haywards Heath | 5490 | HHE | 0.39 KM |
| Wivelsfield | 5341 | WVF | 4.85 KM |
| Burgess Hill | 5483 | BUG | 6.20 KM |
| Balcombe | 5492 | BAB | 6.33 KM |
| Hassocks | 5489 | HSK | 9.97 KM |
Nearby Listings
| Address | Price | Type | Score | Distance |
|---|---|---|---|---|
| Harlands Road, Harlands House Harlands Road, RH16 | £ 250,000 | BUY | 6 / 10 | 0.00 KM |
| Harlands Road, Harlands House Harlands Road, RH16 | £ 240,000 | BUY | 6 / 10 | 0.00 KM |
| Harlands Road, Harlands House Harlands Road, RH16 | £ 265,000 | BUY | 6 / 10 | 0.00 KM |
| Harlands Road, Haywards Heath, RH16 | £ 260,000 | BUY | 7 / 10 | 0.00 KM |
| Harlands Road, Haywards Heath, RH16 | £ 250,000 | BUY | Unknown | 0.01 KM |
Nearby Properties
| Address | Price | Distance |
|---|---|---|
| 6 Turners Mill Road | £ 244,000 | 0.19 KM |
| 18 Turners Mill Road | £ 410,000 | 0.19 KM |
| 24 Turners Mill Road | £ 220,000 | 0.19 KM |
| 60 Turners Mill Road | £ 417,000 | 0.19 KM |
| 26 Turners Mill Road | £ 267,000 | 0.19 KM |