18 Stuart Avenue, Burnside , Glasgow, G73
PA

18 Stuart Avenue, Burnside , Glasgow, G73

By Pacitti Jones

£ 350,000

Reviews

3 out of 5 stars

Pacitti Jones says ..

A substantially extended, detached period home with a beautiful interior, set upon a generous south-facing garden plot in one of the area’s most desirable addresses. EPC - D.

Property Oracle says ..

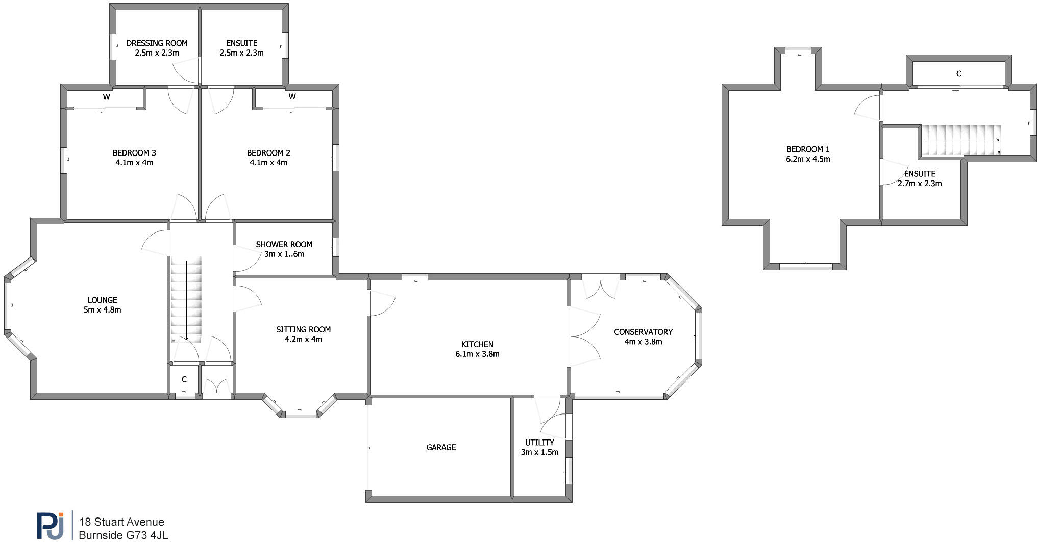
This is a detached property located on Stuart Avenue in Burnside, Glasgow. It features three bedrooms and three bathrooms. The property is listed for £350,000. The house includes a garden and is conveniently located near transportation and schools. While generally well-maintained, some areas could benefit from modernisation. The property includes a utility room and a patio, adding to its functionality and appeal.

Therefore, we give this property 6 / 10. *Disclaimer: This is our option and does constitute a recommendation or financial advice. Do your own research. *

Price
7
Condition
7
Location
7
Land
6
Bedrooms
3
Bathrooms
3
Sqft (est)
1,796.39

The heatmap indicates the level of crime in the area. The color of the heatmap indicates the crime severity and recency.

Metrics Year-on-Year

Average area value
300,000.00 £
Decreased by 54.85 %
from 664,444.00 £
Est sale value
914,362.51 £
Increased by 92.08 %
from 476,043.35 £
Average area rental value
1,007.00 £/mo
Decreased by 25.41 %
from 1,350.00 £/mo
Est letting value
1,796.39 £/mo
from 0.00 £/mo
Est rental Yield
4.03 %
Increased by 65.16 %
from 2.44 %
Crime Rate
0.00 %
from 0.00 %

Agent Activity

  • Pacitti Jones created the listing.

Images

2025091612020920.jpg 2025091612000417.jpg 2025091612000419.jpg 2025091612000420.jpg 202509161202090.jpg 202509161202092.jpg 202509161202093.jpg 202509161200041.jpg 202509161200042.jpg 2025091611580220.jpg 2025091611580215.jpg 2025091611580211.jpg 2025091611580213.jpg 2025091611580210.jpg 2025091611580218.jpg 202509161158026.jpg 202509161158027.jpg 202509161158028.jpg 202509161158029.jpg 2025091612000415.jpg 2025091612000414.jpg 2025091612000416.jpg 202509161200047.jpg 202509161200046.jpg 202509161200048.jpg 202509161200049.jpg 2025091612000410.jpg 2025091612000411.jpg 2025091612000412.jpg 2025091612000413.jpg 202509161200044.jpg 202509161200045.jpg 202509161202094.jpg 202509161202091.jpg 202509161202095.jpg 202509161202098.jpg 2025091612020910.jpg 2025091612020911.jpg 202509161202097.jpg 2025091612020915.jpg 2025091612020917.jpg 202509161202096.jpg 2025091612020912.jpg 2025091612020913.jpg 2025091612020914.jpg 202509161158023.jpg 202509161158024.jpg 202509161158025.jpg 2025091612020916.jpg

Nearby Streets

NameAverage PriceAverage SqftDistance
Stuart Avenue £ 000.00 KM
Golf Road £ 000.00 KM
Crawfurd Road £ 399,00000.00 KM
Douglas Avenue £ 460,00000.00 KM
Kirkriggs View £ 000.00 KM

Nearby Transport

NameNLCTLCDistance
Burnside (South Lanarkshire)9767BUI0.43 KM
Rutherglen9787RUT1.94 KM
Croftfoot9778CFF2.58 KM
Dalmarnock9790DAK3.36 KM
Cambuslang9768CBL3.62 KM

Nearby Listings

AddressPriceTypeScoreDistance
18 Stuart Avenue, Burnside , Glasgow, G73 £ 350,000BUY6 / 100.00 KM
Golf Road, Rutherglen, Glasgow £ 375,000BUY7 / 100.18 KM
Crawfurd Road, Glasgow, G73 £ 399,000BUY6 / 100.21 KM
Blairbeth Road, Rutherglen, Glasgow £ 385,000BUY7 / 100.24 KM
First Floor 5 Blairbeth Terrace, Burnside, Glasgow, G73 4JB £ 250,000BUY6 / 100.24 KM