Barn Close, Whiddon Down, Okehampton, Devon
By Bradleys
£ 100,000
Reviews
2 out of 5 stars
Bradleys says ..
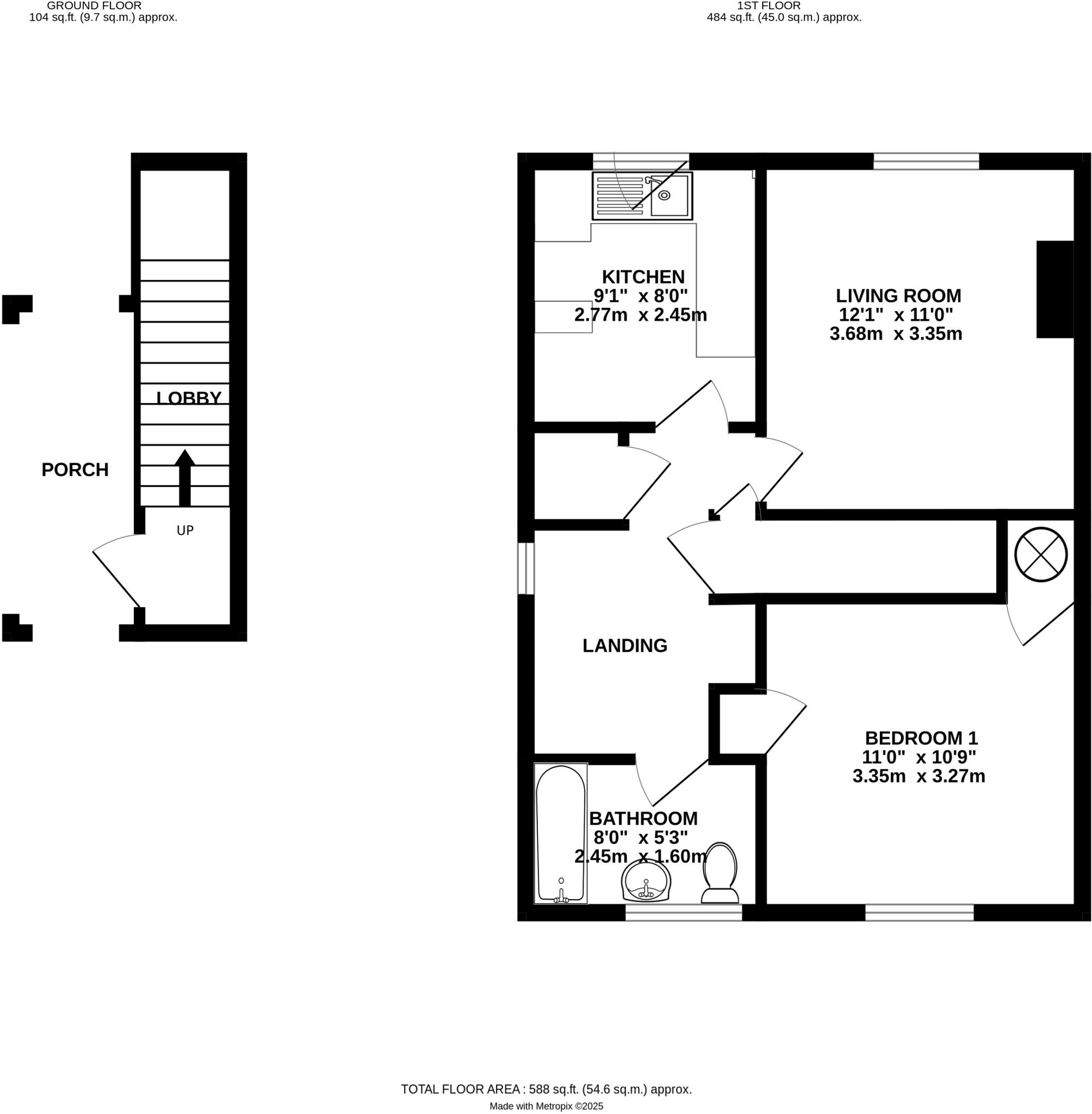
A Vacant first floor Maisonette with garden and parking. Tucked away on the northern edge of the spectacular Dartmoor National Park, Whiddon Down is a charming slice of rural Devon that offers both tranquillity and adventure. Surrounded by rolling hills, patchwork fields, and fresh coun...
Property Oracle says ..
This is a one-bedroom maisonette located in the rural village of Whiddon Down, Devon. The property requires renovation but has a garden. The listing price is £100,000. The property is 236.27 sqft. The maisonette is located in a rural area, which may appeal to those seeking a quiet lifestyle. However, it is important to note that the property is in need of renovation, and the square footage is below average for the area. The nearest school is 4.51KM away.
Therefore, we give this property 5 / 10. *Disclaimer: This is our option and does constitute a recommendation or financial advice. Do your own research. *
- Price
- 7
- Condition
- 4
- Location
- 6
- Land
- 6
- Bedrooms
- 1
- Bathrooms
- 1
- Sqft (est)
- 236.27
The heatmap indicates the level of crime in the area. The color of the heatmap indicates the crime severity and recency.
Metrics Year-on-Year
- Average area value
- 293,023.00 £Increased by 0.76 %
- Est sale value
- 68,045.76 £Decreased by 20.00 %
- Average area rental value
- 1,170.00 £/moIncreased by 31.61 %
- Est letting value
- 236.27 £/moUnchanged by 0.00 %
- Est rental Yield
- 4.79 %Increased by 30.52 %
- Crime Rate
- 280.00 %Unchanged by 0.00 %
Agent Activity
Bradleys created the listing.
Nearby Schools
| Name | Type | Ofsted | Distance |
|---|---|---|---|
| Spreyton School | Foundation School | Good | 4.51 KM |
| Chagford Church Of England Primary School | Academy Converter | 4.96 KM | |
| South Tawton Primary School | Academy Converter | 6.25 KM | |
| North Tawton Community Primary School And Nursery | Academy Converter | 9.94 KM |
Images
Nearby Streets
| Name | Average Price | Average Sqft | Distance |
|---|---|---|---|
| Turnpike Road | £ 0 | 0 | 0.00 KM |
Nearby Listings
| Address | Price | Type | Score | Distance |
|---|---|---|---|---|
| Barn Close, Whiddon Down, Okehampton, Devon | £ 100,000 | BUY | 5 / 10 | 0.00 KM |
| Barn Close, Whiddon Down, Okehampton, Devon | £ 175,000 | BUY | 6 / 10 | 0.05 KM |
| Chapel Hill, Whiddon Down | £ 180,000 | BUY | 4 / 10 | 0.10 KM |
| , Whiddon Down, Okehampton, Devon, EX20 | £ 82,500 | BUY | 5 / 10 | 0.73 KM |
| EX20 2QL | £ 24,995 | BUY | 7 / 10 | 0.73 KM |
Nearby Properties
| Address | Price | Distance |
|---|---|---|
| 3 Barn Close | £ 215,000 | 0.02 KM |
| 18 Barn Close | £ 140,000 | 0.02 KM |
| 2 Barn Close | £ 221,000 | 0.02 KM |
| 10 Barn Close | £ 220,000 | 0.02 KM |
| Southcott | £ 410,000 | 0.27 KM |