Romans says ..
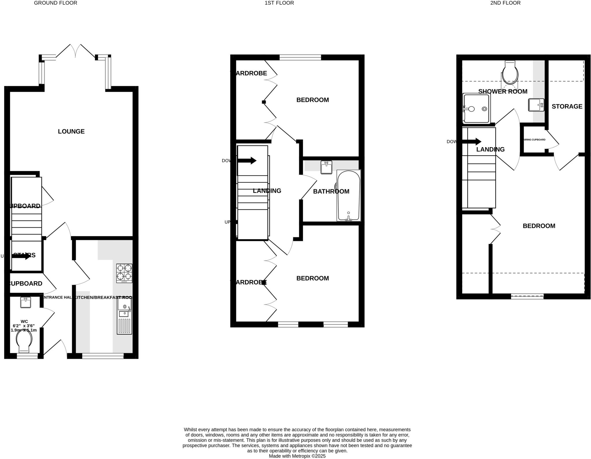
**NO ONWARD CHAIN** For sale is this three-bedroom terraced town house, located in the popular Abbey Meads area. It is ideally suited for first-time buyers, investors, and families. The property needs modernising, and boasts a reception room with large windows, a garden view, and acces...
Property Oracle says ..
This three-bedroom terraced house in Swindon, Wiltshire is listed at £270,000. The property is located in Abbey Meads, a relatively quiet residential area. It benefits from being within a reasonable distance of Abbey Meads Community Primary School (0.50 KM). The property itself is a standard three-bedroom terraced house with two bathrooms. The images suggest the property is in reasonable condition, although the carpets show some signs of wear and tear. The kitchen and bathrooms appear to be relatively modern. The property has a small, enclosed rear garden. Given the average house price in the area is significantly higher (£436,766), and the average price per sqft is £358, this property may represent good value for money, especially considering its proximity to local amenities and schools. However, the lack of plot size information is a notable omission.
Therefore, we give this property 6 / 10. *Disclaimer: This is our option and does constitute a recommendation or financial advice. Do your own research. *
- Price
- 8
- Condition
- 6
- Location
- 7
- Land
- 3
- Bedrooms
- 3
- Bathrooms
- 2
- Sqft (est)
- 710.00
The heatmap indicates the level of crime in the area. The color of the heatmap indicates the crime severity and recency.
Metrics Year-on-Year
- Average area value
- 424,643.00 £Increased by 10.49 %
- Est sale value
- 310,980.00 £Increased by 29.97 %
- Average area rental value
- 1,206.00 £/moIncreased by 0.50 %
- Est letting value
- 710.00 £/moUnchanged by 0.00 %
- Est rental Yield
- 3.41 %Decreased by 9.07 %
- Crime Rate
- 11.00 %Unchanged by 0.00 %
Agent Activity
Romans marked this listing as sold.
Romans created the listing.
Nearby Schools
| Name | Type | Ofsted | Distance |
|---|---|---|---|
| Abbey Meads Community Primary School | Academy Converter | 0.50 KM | |
| Seven Fields Primary School | Academy Converter | Requires improvement | 1.08 KM |
| Sure Start Pinehurst And Penhill Children'S Centre | Children's Centre | 1.13 KM | |
| Catherine Wayte Primary School | Academy Converter | 1.43 KM | |
| St Leonard'S Church Of England Primary Academy | Academy Converter | 1.72 KM |
Images
Nearby Streets
| Name | Average Price | Average Sqft | Distance |
|---|---|---|---|
| Gable Close | £ 246,667 | 0 | 0.00 KM |
| Latton Close | £ 0 | 0 | 0.00 KM |
| Amesbury Close | £ 0 | 0 | 0.00 KM |
| Farmer Crescent | £ 0 | 0 | 0.00 KM |
| Westwood Road | £ 0 | 0 | 0.00 KM |
Nearby Transport
| Name | NLC | TLC | Distance |
|---|---|---|---|
| Swindon (Wilts) | 3333 | SWI | 3.74 KM |
Nearby Listings
| Address | Price | Type | Score | Distance |
|---|---|---|---|---|
| Gable Close, Abbey Meads, Swindon | £ 270,000 | BUY | 6 / 10 | 0.00 KM |
| Gable Close, Swindon, Wiltshire | £ 230,000 | BUY | 7 / 10 | 0.03 KM |
| Warrener Close, Swindon, SN25 | £ 225,000 | BUY | 7 / 10 | 0.07 KM |
| Sawyer Road, Abbey Meads, Swindon, SN25 | £ 230,000 | BUY | 7 / 10 | 0.07 KM |
| Gable Close, Swindon, SN25 | £ 210,000 | BUY | 6 / 10 | 0.10 KM |
Nearby Properties
| Address | Price | Distance |
|---|---|---|
| 8 Gable Close | £ 153,000 | 0.07 KM |
| 24 Gable Close | £ 178,000 | 0.07 KM |
| 10 Gable Close | £ 151,500 | 0.07 KM |
| 38 Gable Close | £ 193,000 | 0.07 KM |
| 36 Gable Close | £ 165,000 | 0.07 KM |