RO
Sydenham Road, Sydenham, London, SE26
By Robinson Jackson
£ 375,000
Reviews
2 out of 5 stars
Robinson Jackson says ..
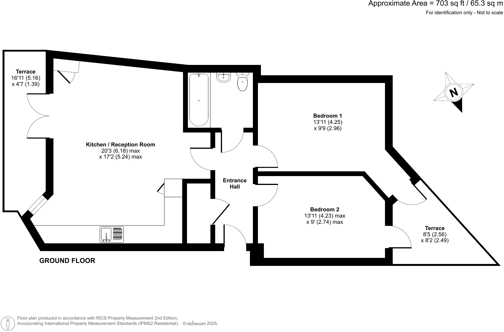
Built in 2018 is this well presented and spacious ground floor flat. Benefitting from two double bedrooms, front & rear courtyards, total floor area 65sqm, 20' lounge/kitchen area and long lease. Within walking distance of Lower Sydenham and Sydenham stations and Bell Green shopping...
Property Oracle says ..
Therefore, we give this property 5 / 10. *Disclaimer: This is our option and does constitute a recommendation or financial advice. Do your own research. *
- Price
- 5
- Condition
- 8
- Location
- 7
- Land
- 3
- Bedrooms
- 2
- Bathrooms
- 1
- Sqft (est)
- 755.81
The heatmap indicates the level of crime in the area. The color of the heatmap indicates the crime severity and recency.
Metrics Year-on-Year
- Average area value
- 460,000.00 £Increased by 19.19 %
- Est sale value
- 292,498.47 £Increased by 7.20 %
- Average area rental value
- 1,800.00 £/moDecreased by 3.49 %
- Est letting value
- 755.81 £/moUnchanged by 0.00 %
- Est rental Yield
- 4.70 %Decreased by 18.97 %
- Crime Rate
- 14.00 %Unchanged by 0.00 %
from 385,941.00 £
from 272,847.41 £
from 1,865.00 £/mo
from 755.81 £/mo
from 5.80 %
from 14.00 %
Agent Activity
Robinson Jackson created the listing.
Nearby Schools
| Name | Type | Ofsted | Distance |
|---|---|---|---|
| Haseltine Primary School | Community School | Good | 0.22 KM |
| Our Lady And St Philip Neri Roman Catholic Primary School | Voluntary Aided School | Good | 0.41 KM |
| St Michael'S Church Of England Primary School | Voluntary Aided School | Good | 0.42 KM |
| Adamsrill Primary School | Community School | Good | 0.42 KM |
| Brent Knoll School | Foundation Special School | Good | 0.43 KM |
Images
Nearby Streets
| Name | Average Price | Average Sqft | Distance |
|---|---|---|---|
| Thomas Dean Road | £ 625,000 | 0 | 0.00 KM |
| Carters Lane | £ 0 | 0 | 0.00 KM |
| Broseley Grove | £ 0 | 0 | 0.00 KM |
| Hatcham Street | £ 380,163 | 0 | 0.00 KM |
| Worsley Bridge Road | £ 403,571 | 0 | 0.00 KM |
Nearby Transport
| Name | NLC | TLC | Distance |
|---|---|---|---|
| Lower Sydenham | 5053 | LSY | 0.69 KM |
| New Beckenham | 5058 | NBC | 1.34 KM |
| Sydenham | 5437 | SYD | 1.75 KM |
| Kent House | 5080 | KTH | 1.95 KM |
| Penge East | 5072 | PNE | 2.02 KM |
Nearby Listings
| Address | Price | Type | Score | Distance |
|---|---|---|---|---|
| Sydenham Road, Sydenham, London, SE26 | £ 375,000 | BUY | 5 / 10 | 0.00 KM |
| Champion Road, London | £ 920,000 | BUY | 6 / 10 | 0.09 KM |
| Sydenham Road, Bell Green, SE26 | £ 250,000 | BUY | 5 / 10 | 0.09 KM |
| Castle Court, Sydenham, London, SE26 | £ 250,000 | BUY | 6 / 10 | 0.12 KM |
| Champion Road, Sydenham, London, SE26 | £ 250,000 | BUY | 6 / 10 | 0.13 KM |
Nearby Properties
| Address | Price | Distance |
|---|---|---|
| 4 Kirtley Road | £ 300,000 | 0.07 KM |
| 9 Holmshaw Close | £ 210,000 | 0.12 KM |
| 41 Holmshaw Close | £ 190,000 | 0.12 KM |
| 23 Holmshaw Close | £ 121,000 | 0.12 KM |
| 65 Holmshaw Close | £ 193,000 | 0.12 KM |