New Farm Drive, Abridge, RM4
By Hammond & Smith
£ 850,000
Reviews
3 out of 5 stars
Hammond & Smith says ..
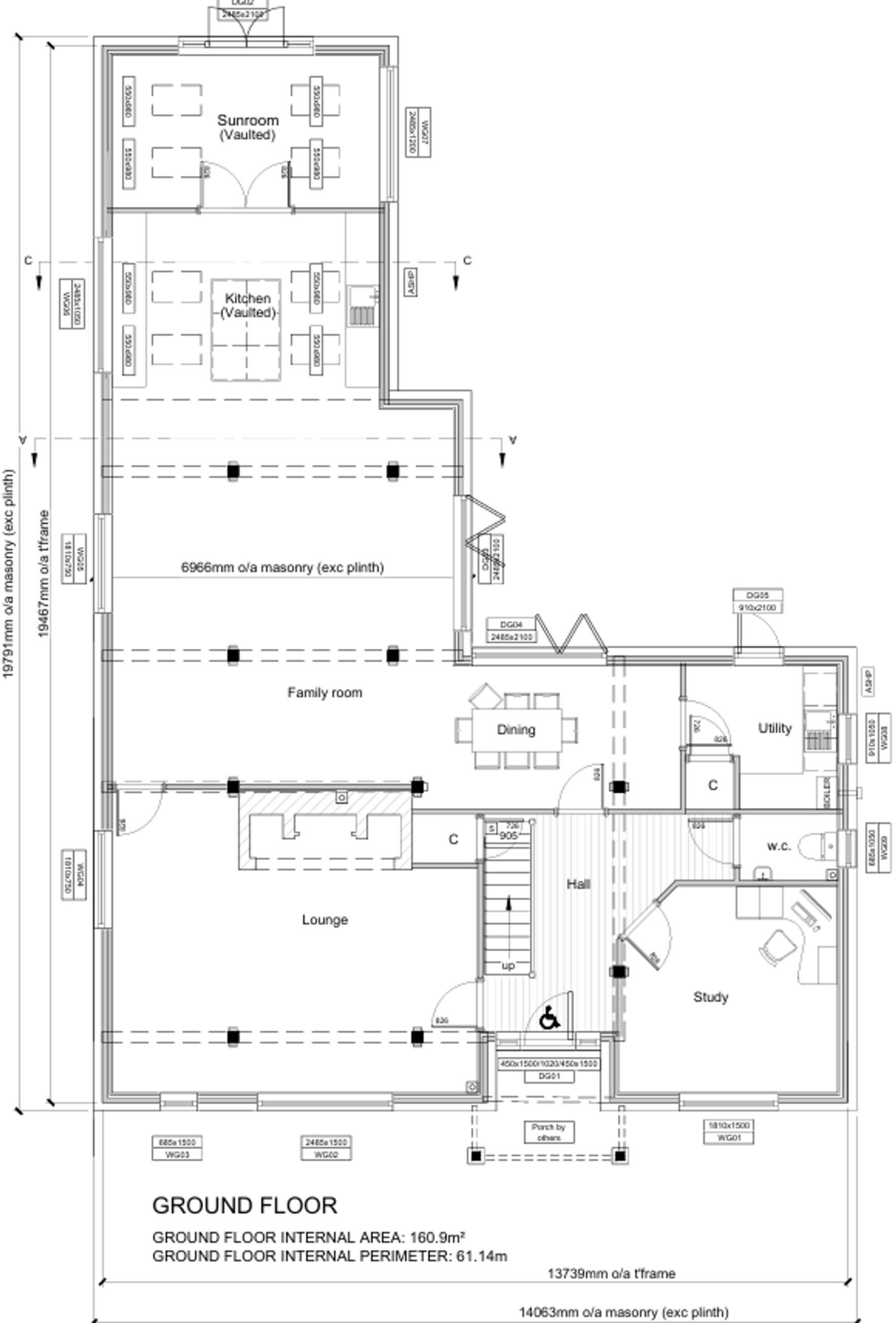
Land for sale to build your forever home in the peaceful setting of Abridge.Planning permission has been granted for a new four bedroom, three bathroom detached dwelling (EPF/0348/19), designed to the Potton style Gransden home specification.
Property Oracle says ..
The property is an off-plan four-bedroom house located in Abridge, Essex. The location is desirable, with proximity to local schools and green spaces, although transport links may require a car. The property itself appears modern and well-constructed, based on the provided images. The plot size is not specified, but images suggest a garden is included. The list price of £850,000 is significantly lower than the average price for the area (£2,472,500), however, more information on the property size and specifics is required to make a definitive judgment on value for money. Nearby properties vary in price, suggesting some market fluctuation.
Therefore, we give this property 7 / 10. *Disclaimer: This is our option and does constitute a recommendation or financial advice. Do your own research. *
- Price
- 6
- Condition
- 9
- Location
- 8
- Land
- 7
- Bedrooms
- 4
- Bathrooms
- 3
- Sqft (est)
- 1,731.91
The heatmap indicates the level of crime in the area. The color of the heatmap indicates the crime severity and recency.
Metrics Year-on-Year
- Average area value
- 626,772.00 £Decreased by 1.47 %
- Est sale value
- 1,146,524.42 £Increased by 71.50 %
- Average area rental value
- 2,367.00 £/moDecreased by 68.86 %
- Est letting value
- 3,463.82 £/moDecreased by 50.00 %
- Est rental Yield
- 4.53 %Decreased by 68.41 %
- Crime Rate
- 6.00 %Unchanged by 0.00 %
Agent Activity
Hammond & Smith created the listing.
Nearby Schools
| Name | Type | Ofsted | Distance |
|---|---|---|---|
| Lambourne Primary School | Academy Converter | 0.97 KM | |
| Chigwell Row Infant School | Academy Converter | 2.91 KM | |
| Coopersale Hall School | Other Independent School | 4.01 KM | |
| Debden Park High School | Academy Converter | Outstanding | 4.16 KM |
| Coppice Primary School | Community School | Good | 4.25 KM |
Images
Nearby Streets
| Name | Average Price | Average Sqft | Distance |
|---|---|---|---|
| White Hall | £ 0 | 0 | 0.00 KM |
| Silver Street | £ 824,995 | 0 | 0.00 KM |
Nearby Transport
| Name | NLC | TLC | Distance |
|---|---|---|---|
| Chadwell Heath | 6874 | CTH | 8.91 KM |
| Goodmayes | 6878 | GMY | 9.36 KM |
| Seven Kings | 6893 | SVK | 9.92 KM |
Nearby Listings
| Address | Price | Type | Score | Distance |
|---|---|---|---|---|
| New Farm Drive, Abridge, RM4 | £ 850,000 | BUY | 7 / 10 | 0.00 KM |
| New Farm Drive, Abridge, Romford | £ 50,000 | BUY | 5 / 10 | 0.47 KM |
| Spur Close, Romford, RM4 | £ 535,000 | BUY | 7 / 10 | 0.48 KM |
| Spur Close, Romford, RM4 | £ 550,000 | BUY | 7 / 10 | 0.49 KM |
| Spur Close, Romford, RM4 | £ 550,000 | BUY | 7 / 10 | 0.49 KM |
Nearby Properties
| Address | Price | Distance |
|---|---|---|
| 13 Middle Boy | £ 350,000 | 0.32 KM |
| 24 Middle Boy | £ 370,000 | 0.32 KM |
| 30 Middle Boy | £ 571,000 | 0.32 KM |
| 26 Middle Boy | £ 317,000 | 0.32 KM |
| 12 Middle Boy | £ 635,000 | 0.36 KM |